Najtańsza działka budowlana w Lublinie - 1475m²

Lublin

Działka
1475 m2

160 000 zł

Treść ogłoszenia

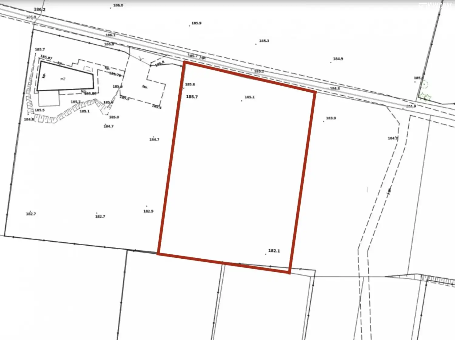
Sprzedam działkę budowlaną o powierzchni 1475m² położoną w dzielnicy Głusk w Lublinie.
Sprzedawany grunt znajduje się w pierwszej linii zabudowy przy drodze gminnej utwardzonej.

Wymiary działki:
- szerokość frontu - 32,5m,
- boki - 44,5m i 47m,
- szerokość tyłu - 32m.
Przy granicy działki znajduje się przyłącze elektryczne.
Na ten moment nie ma możliwości podłączenia wodociągu i kanalizacji, dlatego wymagane będzie zaprojektowanie studni oraz szamba.
Niska cena działki spowodowana jest przesuniętą od strony drogi linią zabudowy- możliwość postawienia budynku mieszkalnego jedynie w tylnej części działki.
Aktualne warunki zabudowy:
- powierzchnia zabudowy - 11,4%,
- szerokość elewacji frontowej max. 17m,
- górna krawędź elewacji frontowej max. 6m,
- górna krawędź kalenicy max. 9,5m,
- kąt nachylenia dachu od 15 do 45 stopni(dopuszcza się dach płaski o nachyleniu połaci dachu do 15 stopni, przy maksymalnej wysokości budynku 7,2m).
Marcin Stępniak 571-241-152
Biuro Nieruchomości KWADRAT


::oferta eksportowana z programu mediaRent::
Lokalizacja
Lublin
dzielnica Głusk
lubelskie
Informacje
Powierzchnia: 1475 m2
Numer oferty: 2305/BNK/DZS-238363
Kontakt
mai3ja_bnkwadrat
Marcin Stępniak
571241152

Podobne oferty

 Lublin

Działka przy Zalewie Zemborzyckim - 4797m²

Lublin

Na sprzedaż nieruchomość gruntowa położona w Lublinie przy ul. Krężnickiej przy Zalewie Zemborzyckim o powierzchni 4797m2. Ogólne: nieruchomość stanowi niezabudowana...

4797 m2
900 000 zł
188 zł/m2
 Lublin   Krężnicka

Działka na sprzedaż

Lublin, Krężnicka

Doskonale położona, kształtna działka nad Zalewem Zemborzycki m . Świetne sąsiedztwo a przy tym bl isko do linii brzegowej. Powierzchnia...

1742 m2
665 000 zł
382 zł/m2
 Lublin

Działka Budowlana Lublin

Lublin

Działka budowlana w pierwszej i drugiej linii zabudowy w Lublinie  o powierzchni 2500 m2. z udziałem w drodze. - dostępne...

2500 m2
270 000 zł
108 zł/m2