Nowoczesny dom 250 m² 3 m.postojowe Zasań

Zasań

Dom
250 m2
5 pokoi

2 199 000 zł

Treść ogłoszenia

PROMOCJA  Black Fridays do 10 grudnia 2025 cena 2.199.000zł
Zapraszam serdecznie do kontaktu i na prezentację tej wyjątkowej nieruchomości, która może stać się Twoim nowym, wymarzonym domem.

Nowoczesny dom o powierzchni 250 m², na działce 17 arów z ogrodem z licznymi nasadzeniami  roślin w tym przepiękną glicynią,  położony we wsi Zasań, gmina Myślenice, położona 50 minut jazdy autem od Krakowa.

Otoczenie domu to spokojna i przyjazna okolica z fajnymi sąsiadami, gdzie dominuje atmosfera spokoju i bezpieczeństwa. Nieruchomość znajduje się w gminie Myślenice, w sołectwie Zasani, zapewniając łatwy dostęp do lokalnej infrastruktury i atrakcji turystycznych.

Dzięki dużym przeszkleniom, dom jest bardzo słoneczny, co sprawia, że wnętrza są jasne i przyjemne. Dom wyposażony w wysokim standardzie. Na zewnątrz znajduje się przestronny ogród, idealny do relaksu i wypoczynku na świeżym powietrzu, rozciągający się na pięknie zagospodarowanej działce, która  stanowi również wybieg dla psów i dzięki temu nie ma kretów na działce.
Komfort termiczny w domu zapewnia nowoczesna pompa ciepła oraz fotowoltaika, co znacząco obniża koszty utrzymania. Dom zbudowany w 2020 roku z pustaka ceramicznego, ocieplony styropianem 15 cm, dachówka ceramiczna. Woda z wodociągu (najlepsza woda w Polsce Dolina Raby zbiornik wody blisko Dobczyc, można pić z kranu), szambo 6 kubików, okna 3szybowe, 4 komorowe, w domu brak gazu, prąd, siła,  internet radiowy (nie ma światłowodu, ale można doprowadzić), jest ogrzewanie podłogowe.



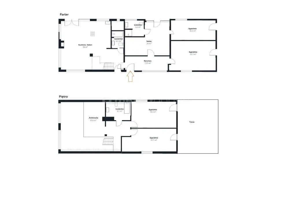
Dom jest idealnym miejscem dla tych, którzy cenią sobie spokój oraz bliskość natury, jednocześnie nie rezygnując z nowoczesnych technologii. Nieruchomość składa się z otwartej przestrzeni życiowej salon połączony z otwartą kuchnią (meble czarny mat no finger i AGD) i jadalnią, trzech łazienek ( na parterze 2 łazienki z kabiną prysznicową), co gwarantuje komfort i funkcjonalność nawet dla liczniejszej rodziny.  W domu jest osobna część domu wydzielona dla seniora domu i składa się z salonu z łazienką i sypialni. Na Piętrze jest antresola z ogromnym otwartym pokojem z częścią biurowo-czytelniczą, łązienka z wanną, sypialnia, garderoba i sypialnia obydwa pokoje mają wyjście na taras o powierzchni 40 m². ( bez balustrad, do zrobienia dla nowego włąściciela). Dużym atutem są również 3 miejsca postojowe, co jest szczególnie ważne dla rodzin posiadających więcej niż jeden samochód.


Sprzedaż nowoczesnego domu z 2020 roku za cenę 2 560 000 PLN, zlokalizowanego w gminie Myślenice, we wsi Zasań. Nieruchomość o powierzchni 250 m² , działki 17 arów oferuje przestronne i słoneczne wnętrza z widokiem na las. Dom wybudowany z pustaka, zapewnia doskonałą izolację oraz komfort użytkowania dzięki nowoczesnym rozwiązaniom takim jak pompa ciepła, fotowoltaika oraz klimatyzacja.
Do domu prowadzi droga gminna nie asfaltowa, ale jest możliwość że Gmina zrobi drogę asfaltową bo już powstały tu 3 domy obok.
LOKALIZACJA:
Zasań to malownicza wieś położona u stóp góry Kamienik otoczona lasami, która zapewnia spokój i relaks, a jednocześnie umożliwia dostęp do wszelkich niezbędnych usług.
Sołectwo Zasań w 2023 r otrzymało wyróżnienie w kategorii Nowatorska Małopolska Wieś z rąk marszałka małopolskiego.
W pobliżu znajdują się przystanki bus, sklep wielobranżowy, szkoła podstawowa, boisko oraz gabinety lekarskie jak i fryzjerskie.
Dojazd do Myślenic to tylko 15min. a do Krakowa to ok. 45min. samochodem



Czy wiesz, że możemy przygotować dla Ciebie prezentację on-line nieruchomości? Skontaktuj się z naszym Agentem i zapytaj o szczegóły.

Pomimo, iż Doradcy Metrohouse przykładają szczególną staranność do rzetelnego prezentowania informacji o nieruchomości, nie zawsze jest możliwa weryfikacja wszystkich danych przekazanych od osób trzecich. Niniejsza prezentacja oferty nie jest ofertą w rozumieniu Kodeksu Cywilnego i ma charakter wyłącznie informacyjny.
Lokalizacja
Zasań
niewybrano
Informacje
Powierzchnia: 250 m2
5 pokoje
Rok budowy: 2020
Numer oferty: SDJEBE810
Ogrzewanie
pompa ciepła
Dodatkowe zalety
meble
Wyposażenie
balkon/taras
Kontakt
METROHOUSE
Katarzyna Solarz Pióro
+48699585386