Mieszkanie 4 pokojowe Czechów Górny

Lublin

Mieszkanie
77 m2
3 pokoje

744 000 zł

Treść ogłoszenia

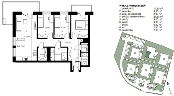
Dwupokojowe mieszkanie o powierzchni projektowej 77,50 m² na 1 piętrze w 3 piętrowym bloku.

Opis mieszkania
-Pokój dzienny o pow. 23,50 z wyjściem na balkon o pow. 11,00 m²,
-Pokój o pow. 9,00 m² ,
-Pokój o pow. 9,00 m²,
-Pokój o pow. 9,60 m²
-Garderoba 2,30 m²,
-Łazienka o pow. 5.30 m²,
-WC o pow. 1,60 m²,
-Przedpokój o pow. 14,20 m²
-Pomieszczenie gospodarcze 2,90 m²

Dodatkowe informacje:
Miejsce postojowego w garażu podziemnym lub miejsce postojowe zewnętrzne 
Komórka lokatorska około 2,5 m² - 8000 zł

MEDIA: 
piec dwufunkcyjnym, woda, prąd.

Termin realizacji: grudzień 2025

Lokalizacja:
Bardzo dobrze rozwinięta infrastruktura osiedla, w pobliżu sklepy, przedszkole, szkoła, punkty usługowe, przystanki komunikacji miejskiej (linie autobusowe nr 12,15,34,36,55,47)

*jeśli potrzebujesz pomocy eksperta w dobraniu finansowania zakupu nieruchomości, skontaktuj się z opiekunem oferty.

Ofertę przygotowała i prezentuje:
Patrycja Czarnik 791689906
Licencjonowany pośrednik nieruchomości
Franczewska Nieruchomości

Zapraszam do kontaktu oraz na prezentację nieruchomości!

Treść niniejszego ogłoszenia nie stanowi oferty handlowej w rozumieniu Kodeksu Cywilnego, ale jest zaproszeniem do współpracy. Dokładamy wszelkich starań, aby każda z ofert była rzetelnie sprawdzona oraz aktualna.
Więcej unikalnych ofert w podobnych kryteriach znajdą Państwo na naszej stronie.
Lokalizacja
Lublin
dzielnica Czechów górny
lubelskie
Informacje
Powierzchnia: 77 m2
3 pokoje
3 piętra w budynku
Rok budowy: 2025
Numer oferty: 646888
Zalety
domofon
Wyposażenie
balkon/taras
Kontakt
FRANCZEWSKA NIERUCHOMOŚCI ADRIANNA FRANCZEWSKA-KRUPA SPÓŁKA KOMANDYTOWA
Patrycja Czarnik
791 689 906

Podobne oferty

 Lublin

Mieszkanie 39 m² 2pok. LSM

Lublin

Sprzedam dwupokojowe mieszkanie o powierzchni 38,70 m2, znajdujące się na 5 piętrze w wieżowcu. Mieszkanie usytuowane na cichym i zielonym...

38 m2
2 pokoje
385 000 zł
10 132 zł/m2
 Lublin

3 pokoje blisko uczelni

Lublin

Prezentujemy Państwu ofertę sprzedaży mieszkania o pow. 60 m2.Nieruchomość znajduje się na VII piętrze w dziesięciopiętrowym budynku przy ulicy Nadbystrzyckiej...

60 m2
3 pokoje
575 000 zł
9 583 zł/m2
 Lublin

2 pokojowe mieszkanie z balkonem tarasem na dachu

Lublin

2 pokojowe mieszkanie o pow. 38,8 m2 na 3 p./3 p. blisko lubelskiego Starego Miasta.Na 38,8 m2 znajdują się:- pokój...

38 m2
2 pokoje
512 160 zł
13 478 zł/m2