Lokal

Wrocław , Grabiszyńska

Komercyjne
50 m2
2 pokoje

3 600 zł

Treść ogłoszenia

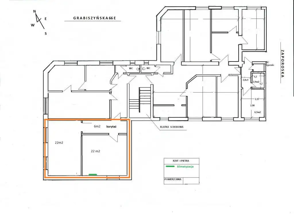
WYNAJMĘ LOKAL USŁUGOWY O POWIERZCHNI 50 M2 , MOŻE BYĆ JEDEN O POWIERZCHNI 25M 2
Dobra Lokalizacja skrzyżowanie Grabiszyńskiej z Zaporoską. Lokal może być na innego rodzaju usługi,kosmetyczny, fryzjer, lub biurowy
cena netto lokalu 1800 zł miesięcznie a 50 m 3600 zł.
Jeden z lokali jest klimatyzowany. Lokal jest pokazany na załączonym rzucie.
1 koszty dodatkowe media
W każdym z pomieszczeń jest umywalka z ciepłą woda
Energia elektryczna około 170 zł netto
Centralne ogrzewanie średnio miesięcznie 6 zł netto M2 = 50X6 300ZŁ (okres grzewczy 6-mcy)
woda i kanalizacja 50 zł netto = 25X 6=150 ZŁ

RAZEM 50 M2= 4050 ZŁ MIESIĘCZNIE A 25 M2= 2000 ZŁ MIESIĘCZNIE



Kontakt:
MARIAN LEWICKI
tel: 605318132
[Email protected]


Ogłoszenie wysłane z programu dla biur nieruchomości ASARI CRM (asaricrm.com)



Lokalizacja
Wrocław
dolnośląskie
Informacje
Powierzchnia: 50 m2
2 pokoje
1 piętro w budynku
Numer oferty: 2951/3186/OLW
Kontakt
AMK Portal Sp. z o.o.
MARIAN LEWICKI
605318132

Podobne oferty

 Wrocław   Jurija Gagarina

Lokal

Wrocław, Jurija Gagarina

Oferujemy do wynajęcia komfortowe powierzchnie biurowe. Powierzchnie o metrażach od 11 m2 do 170m2. Wysoki standard, dogodna lokalizacja w pobliżu...

11 m2
1 100 zł
100 zł/m2
 Wrocław   Zwycięska

Lokal

Wrocław, Zwycięska

Witam, mam do wynajęcia lokal użytkowy w nowoczesnej, jasnej i przestronnej aranżacji. Powierzchnia biurowa o metrażu 67,14 m2 położona na...

67 m2
4 600 zł
69 zł/m2
 Wrocław   Zwycięska

Lokal

Wrocław, Zwycięska

Witam, mam do wynajęcia lokal użytkowy w nowoczesnej, jasnej i przestronnej aranżacji. Powierzchnia biurowa o metrażu 67,14 m2 położona na...

67 m2
4 900 zł
73 zł/m2