Dom w zabudowie bliźniaczej - duża prywatność

Malcanów , Akacjowa

Dom
135 m2
5 pokoi

599 000 zł

Treść ogłoszenia

Dom w zabudowie bliźniaczej na działce 480 m²

3 piętra - 5 pokoi/sypialni - duży salon z aneksem kuchennym

około 400 m² ogrodu - prywatność

Ogrzewanie podłogowe, pompa ciepła - możliwość zmiany źródła ogrzewania (np. piec na pelet)

LOKALIZACJA
czas dojazdu autem:
Wiązowna - 7 min - około 6km
Otwock - 17 min - około 14 km
Warszawa (centrum) - 35min - około 33 km (czas dojazdu uzależniony od natężenia ruchu)

Dom
Trzy-piętrowy dom, w zabudowie bliźniaczej.
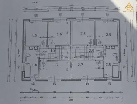
Na powierzchnię 145 m² składa się :
I kondygnacja (46 m²)
- salon z aneksem: 31 m²
- łazienka: 4,3 m²
- pomieszczenie gospodarcze: 6 m²
- korytarz, przedsionek: 4,6 m²
II kondygnacja (45 m²)
- pokój 1: 22 m² (przystosowany do podziału na dwa odrębne pokoje po 11 m²)
- pokój 2: 10,35 m²
- łazienka: 8,7 m²
- korytarz: 3,55 m²
III kondygnacja (45 m²)
Powierzchnia do własnej aranżacji, możliwość stworzenia 3 pokoi i łazienki

Dojazd do działki droga utwardzoną szutrową
Kanalizacja szambo (specyfikacja na tym etapie do uzgodnienia z deweloperem)
Woda - ujęcie własne (specyfikacja na tym etapie do uzgodnienia z deweloperem)

Zakup od Dewelopera
bez podatku PCC, bez prowizji, tylko koszt notariusza

Cena: 600.000 zł
zapraszam do kontaktu i na prezentację
Przemysław Daćko
533021120
[Email protected]">[Email protected]

Wsparcie przy uzyskaniu kredytu

Powyższa oferta ma charakter informacyjny i nie stanowi oferty handlowej w rozumieniu art. 66 §1 Kodeksu Cywilnego.
Lokalizacja
Malcanów
mazowieckie
Informacje
Powierzchnia: 135 m2
5 pokoje
3 piętra w budynku
Rok budowy: 2025
Numer oferty: 386770
Ogrodzenie
brak
Kontakt
Trygon Nieruchomości
Przemysław Daćko
533021120

Podobne oferty

 Malcanów

Luksusowe domy - nowoczesna bryła

Malcanów

0% Prowizji, bez podatku PCC! Mamy przyjemność zaprezentować Państwu atrakcyjną ofertę sprzedaży domów jednorodzinnych w zabudowie bliźniaczej, usytuowanych w malowniczej...

168 m2
5 pokoi
1 190 000 zł
7 083 zł/m2
 Malcanów   Akacjowa

Dom w zabudowie bliźniaczej - duża prywatność

Malcanów, Akacjowa

Dom w zabudowie bliźniaczej na działce 480 m23 piętra - 5 pokoi/sypialni - duży salon z aneksem kuchennymokoło 400 m2...

135 m2
5 pokoi
600 000 zł
4 444 zł/m2
 Malcanów   Akacjowa

Dom w zabudowie bliźniaczej - duża prywatność

Malcanów, Akacjowa

Dom w zabudowie bliźniaczej na działce 480 m23 piętra - 5 pokoi/sypialni - duży salon z aneksem kuchennymokoło 400 m2...

135 m2
5 pokoi
598 000 zł
4 430 zł/m2