Trzypokojowe w centrum miasta za 809000

Warszawa , Ogrodowa

Mieszkanie
56 m2
3 pokoje

809 000 zł

Treść ogłoszenia

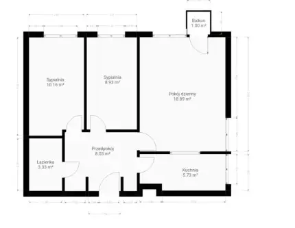
Oferuję do sprzedaży mieszkanie trzypokojowe 56.8 mkw.  w  ścisłym centrum miasta - bliska Wola, Mirów -  za 809.000 zł. 
Lokal widny, rozkładowy - do wszystkich pomieszczeń bezpośredni dostęp z obszernego 8-metrowego  przedpokoju z miejscem na dwie szafy wnękowe. Pokoje  19, 10 i 9 mkw., kuchnia  6mkw.   z oknem - możliwość  łatwego połączenia w formie aneksu z  przylegającym salonem.  Z pokoju dziennego wyjście na  niewielki balkon po stronie zachodniej, z widokiem na biznesowe centrum. Na podłogach w pokojach mozaika parkietowa, w kuchni i łazience terakota.  Mieszkanie wymaga remontu lub odświeżenia.  W budynku dwie windy.  Do mieszkania przynależy piwnica.
Lokal  w budynku z końca lat 60. wykonanym w technologii rama H, zarządzanym przez   prężną spółdzielnię mieszkaniową.  
Budynek w drugiej linii zabudowy, odsunięty do ruchliwych ulic. Cicho. 
Doskonała lokalizacja - wszędzie blisko.  Do przystanków tramwajowych i autobusowych 3 min pieszo.  Do stacji metra Ratusz- Arsenał dwa przystanki tramwajem.  W sąsiedztwie biznesowe centrum stolicy,   szkoły , przedszkola, urzędy, sklepy, punkty usługowe restauracje i bary.   Blisko bazarek pod Halą Mirowską  i Ogród Saski . 
Polecam i zapraszam na prezentację.

Lokalizacja
Warszawa
dzielnica Wola mirów
mazowieckie
Informacje
Powierzchnia: 56 m2
3 pokoje
10 pięter w budynku
Rok budowy: 1968
Numer oferty: INV312977
Zalety
domofon
Wyposażenie
balkon/taras
Kontakt
Biuro Obrotu Nieruchomościami INVESTOR
Krystyna Jełowicka
504 268 859

Podobne oferty

 Warszawa   Przeworska

Mieszkanie w stanie deweloperskim

Warszawa, Przeworska

Mieszkanie dostępne od zaraz w stanie deweloperskim. Posiada dwa pokoje przeznaczone na sypialnie, oddzielną garderobę, łazienkę, salon z wejściem do...

66 m2
3 pokoje
1 099 000 zł
16 652 zł/m2
 Warszawa

Kameralna Kawalerka Wysokie Piętro Klimatyzowana

Warszawa

MDP Partners Prezentuje:Nowoczesną kawalerkę o powierzchni użytkowej 30,44 m², znajdującą się na 10. piętrze (przedostatnim) nowoczesnego budynku. Mieszkanie położone jest...

30 m2
1 pokój
480 000 zł
16 000 zł/m2
 Warszawa   Wołoska

Nowa Inwestycja o Wysokim Standardzie Mokotów

Warszawa, Wołoska

Inwestycja dla ceniących codzienną wygodę oraz nowoczesność w komfortowym wydaniu.Zakup bezpośrednio od dewelopera, bez 2% podatku PCC i prowizji.Atuty inwestycji:- ...

39 m2
2 pokoje
991 699 zł
25 428 zł/m2