Piękny dom 141m² w wysokim standardzie - Rakowiska

Cicibór duży

Dom
141 m2
4 pokoje

927 000 zł

Treść ogłoszenia

Na sprzedaż piękny dom w zabudowie szeregowej, położony na przedmieściach Białej Podlaskiej, w miejscowości Rakowiska, niecałe 2km od granicy miasta.
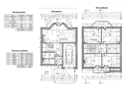
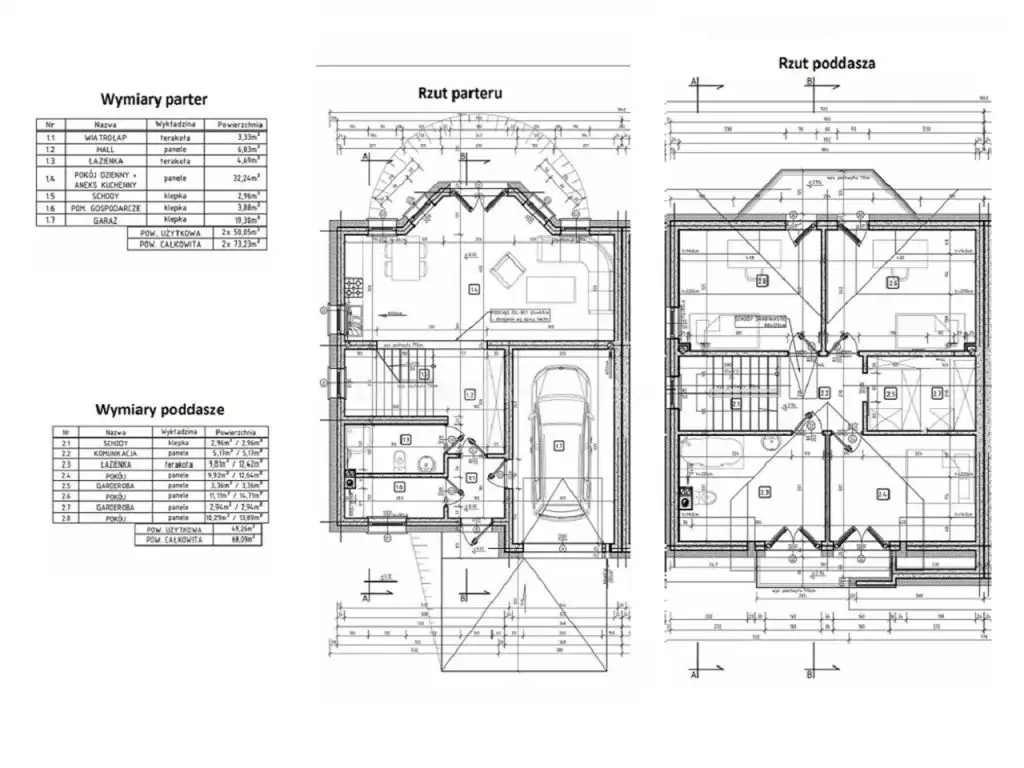
Nieruchomość posiada powierzchnię 141,32m², a w jej skład wchodzą:

PARTER:
-Przestronny salon z aneksem kuchennym, jadalnią i wyjściem na podwórko
-Łazienka
-Pom. gospodarcze
-Hall
-Wiatrołap
-Garaż w bryle budynku

PODDASZE UŻYTKOWE:
-3 sypialnie
-Łazienka główna
-Podwójna garderoba
-Komunikacja
-Schody
Do dyspozycji mamy również strych, który stanowi dodatkową przestrzeń do przechowywania rzeczy.

Dom z 2020 roku - został wykończony w wysokim standardzie, z wykorzystaniem dobrej jakości materiałów oraz z dbałością o detale.
Bardzo funkcjonalny i w pełni wyposażony. (może zostać sprzedany z większością mebli oraz sprzętów - kwestia porozumienia)

Nieruchomość ogrzewana za pomocą piecyka gazowego – w całym domu zostało zastosowane ogrzewanie podłogowe + dodatkowy grzejnik w łazience.

Oprócz tego na piętrze została zainstalowana klimatyzacja, dzięki czemu w gorące, letnie dni, możemy szybko obniżyć temperaturę w domu.

Media:
-gaz miejski
-wodociąg
-światłowód
-prąd

Z uwagi na środkowe położenie segmentu, dom jest bardziej ekonomiczny – cieplejszy zimą i chłodniejszy latem, co przekłada się na niższe rachunki za ogrzewanie – średnie, miesięczne opłaty za wszystkie media oprócz prądu wynoszą około 450-500 zł.

Działka ładnie zagospodarowana, ogrodzona, z bramą wjazdową na pilot, kostką na podjeździe + powiększonym tarasie z tyłu posesji.
Podjazd umożliwia zaparkowanie 5-ciu aut + 1 miejsce w garażu.

Dom idealnie nadaje się dla rodziny, która chciałaby cieszyć się własnym podwórkiem i spokojem, a jednocześnie korzystać ze wszystkich udogodnień dających bliska odległość od miasta, do którego prowadzą oświetlone chodniki i ścieżka rowerowa, a dostępność transportu publicznego zapewnia linia autobusowa "D".

W niedalekiej odległości znajdziemy między innymi sklepy spożywcze, przedszkole, kościół, a ok 2-2.5 km od działki m.in. szpital, szkoła, przychodnie, apteki, sklepy wielkopowierzchniowe i niezbędne usługi.

Cena podlega negocjacji.

Zapraszamy na prezentację tej wyjątkowej nieruchomości.


Czy wiesz, że możemy przygotować dla Ciebie prezentację on-line nieruchomości? Skontaktuj się z naszym Agentem i zapytaj o szczegóły.

Pomimo, iż Doradcy Metrohouse przykładają szczególną staranność do rzetelnego prezentowania informacji o nieruchomości, nie zawsze jest możliwa weryfikacja wszystkich danych przekazanych od osób trzecich. Niniejsza prezentacja oferty nie jest ofertą w rozumieniu Kodeksu Cywilnego i ma charakter wyłącznie informacyjny.
Lokalizacja
Cicibór duży
niewybrano
Informacje
Powierzchnia: 141 m2
4 pokoje
Rok budowy: 2020
Numer oferty: SDBUGI340
Kuchnia
z oknem
Dodatkowe zalety
meble
Kontakt
METROHOUSE
Tomasz Zalewski
+48699585372