Warsztat

Warszawa , al. Armii Krajowej

Lokal
659 m2

9 995 000 zł

Treść ogłoszenia

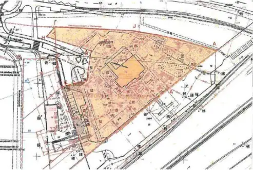
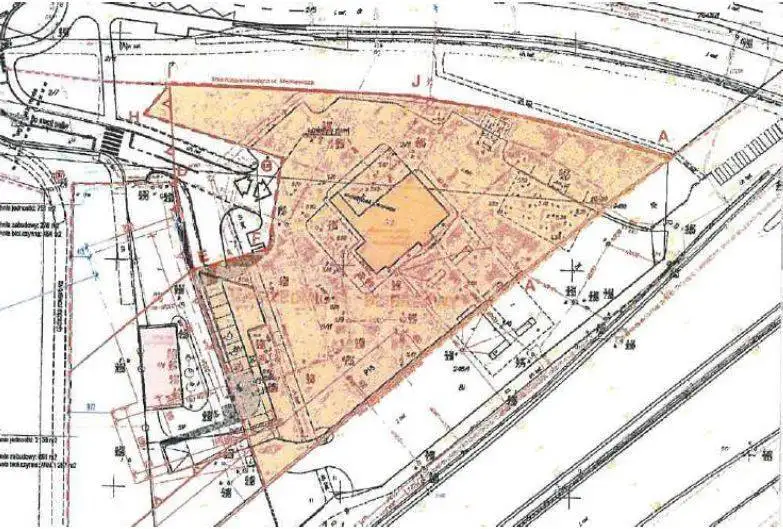
Syndyk masy upadłości spółki Projekt Rudzka Sp. z o.o. w upadłości z siedzibą w Warszawie przy ul. Grzybowskiej 5A, 00-132 Warszawa, KRS: 0000724217, ogłasza konkurs na sprzedaż prawa użytkowania wieczystego nieruchomości gruntowej położonej przy ul. al. Armii Krajowej 10/ul. Rudzkiej 3 w Warszawie w dzielnicy Bielany, stanowiącej działki gruntu o numerach ewidencyjnych 2/8 i 6/11, z obrębu 7-04-10 o powierzchni 7587 m², dla której Sąd Rejonowy dla Warszawy-Mokotowa w Warszawie, VI Wydział Ksiąg Wieczystych prowadzi księgę wieczystą o numerze WA1M/00497248/4, wraz z prawem własności następujących budynków:
a) 1 kondygnacyjnego budynku handlowo-usługowego pod adresem ul. al. Armii Krajowej 10 w Warszawie, nr ewidencyjny 6/2;1, o powierzchni zabudowy 147 m²;
b) 1 kondygnacyjnego budynku handlowo-usługowego pod adresem ul. al. Armii Krajowej 10 w Warszawie, nr ewidencyjny 6/2;2, o powierzchni zabudowy 247 m²;
c) 1 kondygnacyjnego budynku handlowo-usługowego pod adresem ul. al. Armii Krajowej 10 w Warszawie, nr ewidencyjny 6/2;3, o powierzchni zabudowy 265 m²;

za cenę nie niższą niż 9.995.000,00 zł netto (słownie: dziewięć milionów dziewięćset dziewięćdziesiąt pięć tysięcy złotych, 00/100). Warunkiem uczestnictwa w konkursie ofert jest wpłacenie wadium w wysokości 999.500,00 zł (słownie: dziewięćset dziewięćdziesiąt dziewięć tysięcy pięćset złotych 00/100).

Zainteresowani powinni składać oferty w nieprzekraczalnym terminie do dnia 21 listopada 2025 r. osobiście do depozytu Kancelarii Notarialnej Sądel-Bendkowska Perczyńska Konończuk Żuława spółka partnerska, ul. Okopowa 58/72 w Warszawie (budynek KLIF Tower, 3. piętro).

Otwarcie ofert nastąpi w dniu 26 listopada 2025 r. o godzinie 10:00 w ww. Kancelarii Notarialnej.

Dodatkowych informacji udziela syndyk pod nr. tel. 608-488-301, 501-541-541 lub adresem e-mail: [Email protected], [Email protected]



Kontakt:
Biuro syndyka
tel: 608488301
[Email protected]


Ogłoszenie wysłane z programu dla biur nieruchomości ASARI CRM (asaricrm.com)



Lokalizacja
Warszawa
dzielnica Bielany
mazowieckie
Informacje
Powierzchnia: 659 m2
1 piętro w budynku
Numer oferty: 10232/3186/OOS
Kontakt
AMK Portal Sp. z o.o.
Biuro syndyka
608488301

Podobne oferty

 Warszawa   Stryjeńskich

KONKURS OFERT - udział 356697 w nieruchomości

Warszawa, Stryjeńskich

Obwieszczenie o sprzedaży Syndyk Masy Upadłości Centrum Zarządzania Nieruchomościami Spółka z ograniczoną odpowiedzialnością w upadłości (KRS: 0000541419) w postępowaniu upadłościowym...

5638 m2
5 222 000 zł
926 zł/m2
 Warszawa   Stryjeńskich

KONKURS OFERT - udział 356697 w nieruchomości

Warszawa, Stryjeńskich

Obwieszczenie o sprzedaży Syndyk Masy Upadłości Centrum Zarządzania Nieruchomościami Spółka z ograniczoną odpowiedzialnością w upadłości (KRS: 0000541419), ogłasza sprzedaż z...

5638 m2
4 747 136 zł
842 zł/m2
 Warszawa   Starościńska

Obiekt

Warszawa, Starościńska

Sieć Badawcza Łukasiewicz - Instytut Chemii Przemysłowej imienia Profesora Ignacego Mościckiego 01-793 Warszawa, ul. Rydygiera 8 Ogłasza publiczny przetarg pisemny...

1235 m2
17 888 000 zł
14 484 zł/m2