Apartamenty Central Park sauna grota solna

Wrocław

Mieszkanie
41 m2
2 pokoje

719 000 zł

Treść ogłoszenia

2 pokojowego mieszkania zlokalizowanego w renomowanej inwestycji Apartamenty Central Park. To idealne miejsce dla osób chcących mieszkać w centrum tętniącego życiem miasta.

UWAGA! Sprzedaż tej nieruchomości odbywa się w procesie "otwartego ofertowania" czyli składania ofert zakupowych, podana cena jest ceną WYJŚCIOWĄ, którą nie należy się sugerować. Każdy może przyjść na dzień otwarty, zobaczyć nieruchomość i zaoferować swoją cenę zakupu nieruchomości.
Oferty będą zbierane do 20 lipca, można je składać, na miejscu, telefonicznie lub mailowo.

Atuty mieszkania na Kępie Mieszczańskiej:
- Lokalizacja w centrum miasta - blisko rynku, Ostrowa Tumskiego i najważniejszych atrakcji Wrocławia.
- Bliskość terenów zielonych - wyspa otoczona Odrą, oferuje promenadę i ścieżki spacerowe.
- Doskonała komunikacja - łatwy dostęp do tramwajów, autobusów oraz głównych arterii drogowych.
-Wysoka wartość inwestycyjna - atrakcyjny rynek najmu i duży potencjał wzrostu cen mieszkań.


Na terenie inwestycji znajduje się
- Siłownia 
- Strefa spa, a w niej: sauna sucha, sauna infrared, łaźnia parowa, tężnia solankowa
- Usługa concierge
- Postarzalnia win dla kolekcjonerów
- Całodobowy monitoring
- Stacja napraw dla rowerów

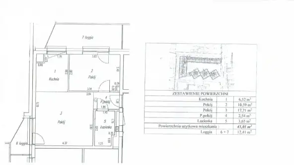
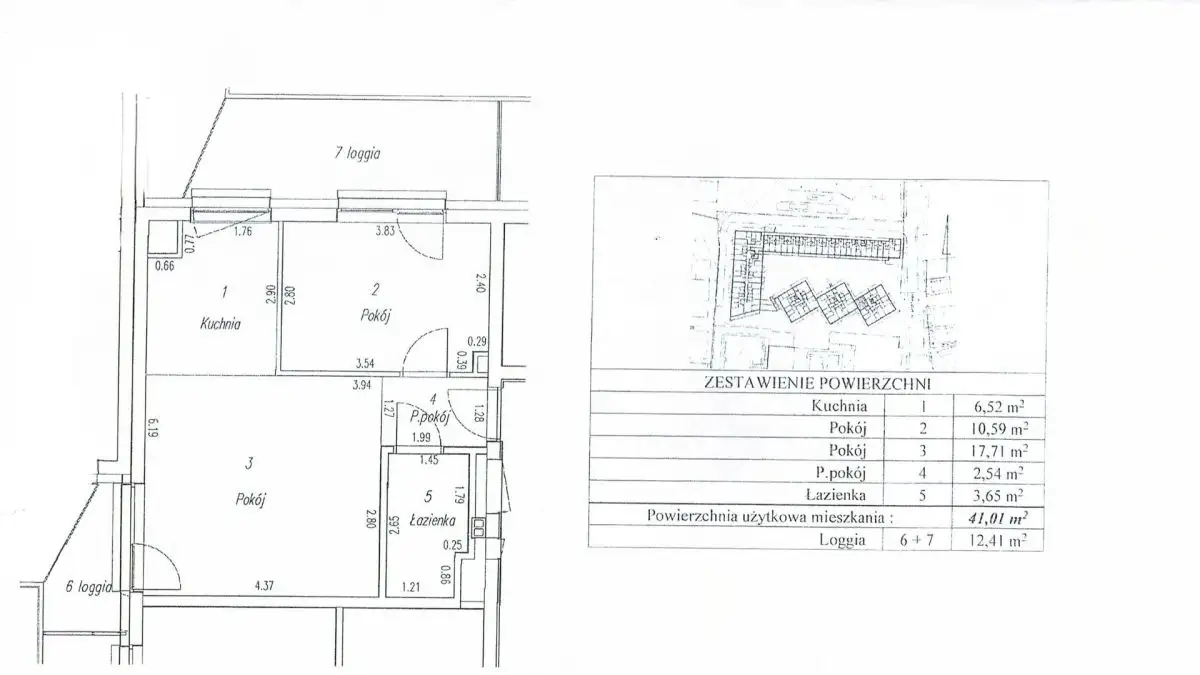
Układ mieszkania
- Salon 17,71m²
- Kuchnia 6,52m²
- Sypialnia 10,59m²
- Łazienka 3,65m² 
- Przedpokój 2,54m² 
- Dwie loggie o łącznej powierzchni 12,41m²

Mieszkanie wyposażone jest w ogrzewanie kanałowe i klimatyzację
Do mieszkania przynależy miejsce postojowe w garażu poziemnym

Dodatkowe informacje:
Osoby zainteresowane ofertą zapraszamy do kontaktu w celu umówienia się na prezentację oraz uzyskania szczegółowych informacji dotyczących nieruchomości.

Jest to świetny wybór zarówno dla osób szukających komfortowego miejsca do życia, jak i inwestorów. Nie zwlekaj - skontaktuj się z nami już dziś!


Michał Cepuch
Tel. 503-365-100



...
Oferta wystawiona przez Biuro nieruchomości Falcon Estate.
Prezentowane w serwisie oferty nie stanowią oferty handlowej w rozumieniu art. 66 Kodeksu Cywilnego i mogą być nieaktualne.
Lokalizacja
Wrocław
dzielnica Stare miasto
dolnośląskie
Informacje
Powierzchnia: 41 m2
2 pokoje
8 pięter w budynku
Rok budowy: 2023
Numer oferty: FE520338
Media
kanalizacja
Wyposażenie
balkon/taras
Kontakt
Falcon Estate
Michał Cepuch
503365100

Podobne oferty

 Wrocław   pl. Grunwaldzki

Mieszkanie

Wrocław, pl. Grunwaldzki

Kontakt telefoniczny: 733522952 Mieszkanie przy Pl. Grunwaldzkim pk.40m2 , dwa pokoje, aneks kuchenny, wc, kabina prysznicowa, podłoga drewniana, okna plastikowe...

40 m2
2 pokoje
650 000 zł
16 250 zł/m2
 Wrocław   Zemska

Mieszkanie na sprzedaż

Wrocław, Zemska

Mieszkanie 3-pokojowe na sprzedaż - Wrocław Nowy Dwór Lokalizacja : Wrocław, Nowy Dwór Piętro : 5 (winda) Rok budowy :...

61 m2
3 pokoje
695 000 zł
11 393 zł/m2
 Wrocław

Słoneczne 2 pokoje z pięknym widokiem blisko rynku

Wrocław

Niebanalna inwestycja? Piękne widoki? Duże profity? Wszystko to w tym jednym miejscu!0% PROWIZJI!!!WYJĄTKOWA INWESTYCJA PREMIUM! DRUGA NAJWYŻSZA INWESTYCJA WE WROCŁAWIU!Na...

52 m2
3 pokoje
998 830 zł
19 208 zł/m2