4 pokojowe mieszkanie o pow. 60 41 m² na Czechowie

Lublin

Mieszkanie
60 m2
4 pokoje

604 100 zł

Treść ogłoszenia

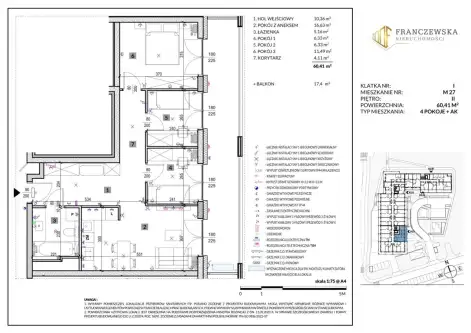
Czteropokojowe mieszkanie o powierzchni 60,41 m² na 2 piętrze w 7-piętrowym budynku na nowoczesnym osiedlu na Czechowie w Lublinie.
To idealna propozycja dla osób szukających komfortowego mieszkania w spokojnej, zielonej okolicy z doskonałym dostępem do miejskiej infrastruktury.

OPIS MIESZKANIA:
Pokój dzienny z aneksem kuchennym o powierzchni 16,63 m² z wyjściem na przestronny balkon ( 17,04 m²),
Pokój o powierzchni 6,33 m²,
Pokój o powierzchni 6,33 m²,
Pokój o powierzchni 11,49 m²,
Łazienka 5,16 m²,
Przedpokój 10,36 m²,

DODATKOWE INFORMACJE:
Cena miejsca postojowego w garażu podziemnym: 40 000 zł
Cena komórki lokatorskiej: 3 500 zł/m²

MEDIA:
pełne uzbrojenie - prąd, woda, kanalizacja, światłowód, kotłownia własna dla budynku

TERMIN REALIZACJI:
IV kwartał 2026 r.

DODATKOWE INFORMACJE:
- nowoczesny design, wysoką jakość wykonania
- cichobieżne windy, podziemny garaż dwupoziomowy, komórki lokatorskie,
- panele fotowoltaiczne, stacja ładowania pojazdów elektrycznych,
- monitoring, wideodomofony, światłowód,
- plac zabaw, strefa rekreacji i rowerownia,
- przestronne balkony nawet do 27 m².

LOKALIZACJA:
W pobliżu znajdują się sklepy, szkoły i nowy park handlowy, a także przystanki autobusowe linii 17, 18, 42, 57 i 904, zapewniające szybki dojazd do centrum. Lokalizacja umożliwia również bardzo szybki wyjazd na obwodnicę Lublina, co czyni to miejsce wyjątkowo praktycznym dla osób pracujących w różnych częściach miasta.
Jeśli potrzebujesz pomocy eksperta w dobraniu finansowania zakupu nieruchomości, skontaktuj się z opiekunem oferty.

Ofertę przygotowała i prezentuje:
Patrycja Czarnik: 791 689 906
Licencjonowany pośrednik nieruchomości
Franczewska Nieruchomości
Zapraszam do kontaktu oraz na prezentację nieruchomości!

Treść niniejszego ogłoszenia nie stanowi oferty handlowej w rozumieniu Kodeksu Cywilnego, ale jest zaproszeniem do współpracy. Dokładamy wszelkich starań, aby każda z ofert była rzetelnie sprawdzona oraz aktualna. W ofercie nie są przedstawione koszty obsługi transakcji, która wykonywana jest w profesjonalny sposób i zapewnia Państwu pełne bezpieczeństwo. Więcej unikalnych ofert w podobnych kryteriach znajdą Państwo na naszej stronie.
Lokalizacja
Lublin
dzielnica Czechów
lubelskie
Informacje
Powierzchnia: 60 m2
4 pokoje
7 pięter w budynku
Rok budowy: 2026
Numer oferty: 594459
Wyposażenie
balkon/taras
Kontakt
FRANCZEWSKA NIERUCHOMOŚCI ADRIANNA FRANCZEWSKA-KRUPA SPÓŁKA KOMANDYTOWA
Patrycja Czarnik
791 689 906

Podobne oferty

 Lublin

Mieszkanie 2 pokoje z balkonem Cyprysowa

Lublin

Oferta dostępna wyłącznie za pośrednictwem Franczewska Nieruchomości.Mieszkanie dwa  pokoje z balkonem o pow. 50  m2. Mieszkanie narożne, jasne,  zlokalizowane na...

50 m2
2 pokoje
500 000 zł
10 000 zł/m2
 Lublin

3 pokoje Lublin BronowiceFelin

Lublin

Lokal inwestycyjny o pow. 41,66 m2 na 2 p. / 5 p. okolice ul. Droga Męczenników Majdanka. Zestawienie powierzchni:Pomieszczenie dziennego...

41 m2
3 pokoje
415 500 zł
10 134 zł/m2
 Lublin

Apartament 97 m² Lublin Wysoki Standard

Lublin

Oferta dostępna wyłącznie za pośrednictwem Franczewska Nieruchomości.Na sprzedaż bezczynszowy apartament o pow. 97 m² na 1. piętrze (z II) w...

97 m2
4 pokoje
1 370 000 zł
14 124 zł/m2