3 Pokoje z Balkonem w Bloku po remoncie

Głogów , Aleja Wolności

Mieszkanie
48 m2
3 pokoje

299 000 zł

Treść ogłoszenia

Gotowe do wprowadzenia mieszkanie z 3 pokojami, balkonem i wszystkimi najważniejszymi remontami za sobą

Na sprzedaż ustawne, 3-pokojowe mieszkanie o powierzchni 47,40 m² w Głogowie. To absolutnie wyjątkowa okazja na rynku - podczas gdy inne mieszkania w tej cenie wymagają kosztownych prac, tutaj otrzymują Państwo lokal po wszystkich kluczowych remontach, z odnowionym budynkiem i pełnym wyposażeniem w cenie! Nieruchomość dostępna od zaraz, bez żadnego wkładu finansowego.

Lokalizacja
Mieszkanie położone jest w dobrze skomunikowanej części Głogowa, na spokojnym osiedlu z w pełni rozwiniętą infrastrukturą. W najbliższym sąsiedztwie znajdują się sklepy, punkty usługowe, szkoła, przedszkole oraz tereny zielone i place zabaw. Dogodny dojazd do centrum miasta oraz liczne miejsca parkingowe pod blokiem zapewniają komfort codziennego funkcjonowania. To idealna lokalizacja dla rodzin z dziećmi, par oraz osób ceniących sobie spokój i wygodę.

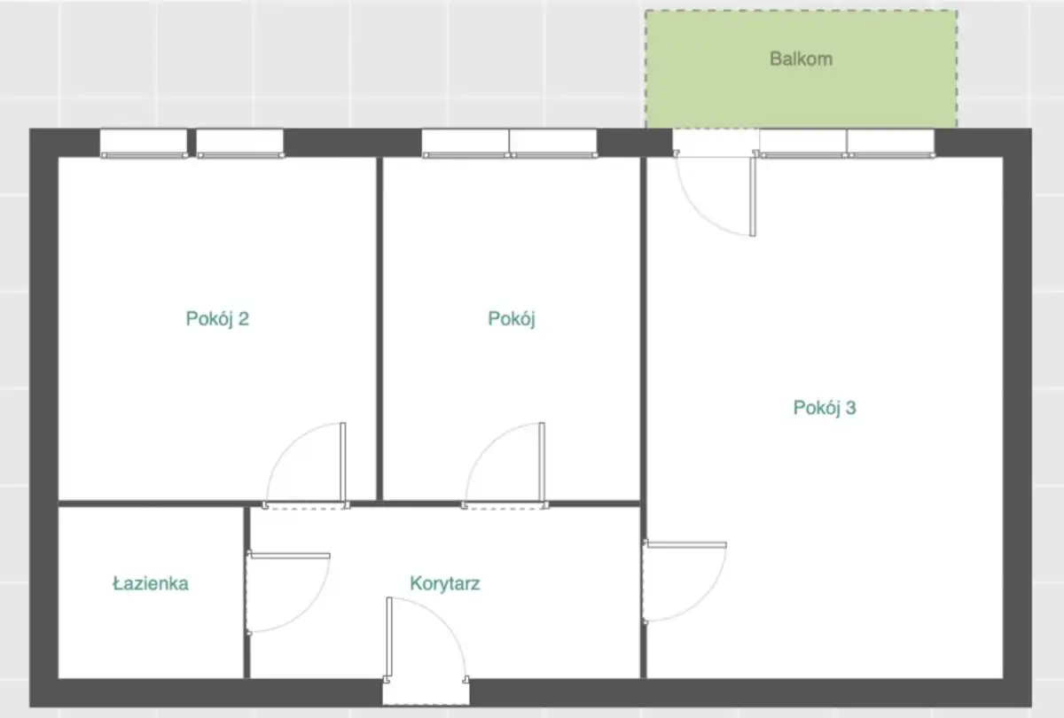
Rozkład i powierzchnia
Mieszkanie o powierzchni 47,40 m² oferuje kompaktowy i wyjątkowo funkcjonalny układ. Znajduje się na czwartym piętrze w ocieplonym bloku. W skład lokalu wchodzą trzy niezależne pokoje, które można swobodnie zaaranżować jako salon i dwie sypialnie, co stanowi rzadkość na takim metrażu. Uzupełnieniem jest kuchnia, łazienka z prysznicem i WC oraz przedpokój. Dużym atutem jest balkon, stanowiący idealne miejsce na relaks. Do mieszkania przynależy również piwnica o powierzchni około 3 m².

Wykończenie i stan techniczny
To największy atut tej nieruchomości! Mieszkanie oraz budynek są po remoncie. W lokalu wymieniono całą instalację elektryczną na miedzianą oraz kluczowe piony wodno-kanalizacyjne. Wstawiono nowe okna PCV. Sam budynek przeszedł w 2024 roku pełną termomodernizację, a klatka schodowa została świeżo wyremontowana (nowe płytki, malowanie), co gwarantuje wysoki komfort i nienaganną estetykę. Mieszkanie jest w pełni gotowe do zamieszkania, nie wymaga absolutnie żadnych nakładów remontowych.

Media i opłaty
Nieruchomość podłączona do wszystkich mediów miejskich. Ogrzewanie z sieci miejskiej, ryczałtowe, bez podzielników ciepła, co zapewnia stałe i przewidywalne koszty przez cały rok. Czynsz administracyjny do ZGM wynosi łącznie około 650 zł (490 zł czynsz podstawowy + 160 zł fundusz remontowy) i zawiera już zaliczki na ogrzewanie, wodę oraz opłaty eksploatacyjne.

Dodatkowe informacje
Trzypokojowe mieszkanie z balkonem w Głogowie, w bloku po termomodernizacji i remoncie klatki. Nieruchomość sprzedawana jest z pełnym wyposażeniem widocznym na zdjęciach - można wchodzić i mieszkać od pierwszego dnia! 

FREE HOME biuro nieruchomości Głogów
Serdecznie zapraszamy do kontaktu w sprawie tej niezwykle atrakcyjnej oferty! Trzy pokoje w cenie dwóch, po wszystkich kluczowych remontach i z pełnym wyposażeniem to okazja, która nie będzie długo czekać. Idealne dla osób, które chcą uniknąć stresu i kosztów związanych z pracami remontowymi. Nie czekaj - przy tak korzystnej cenie i stanie technicznym liczy się szybkość decyzji!
Lokalizacja
Głogów
dolnośląskie
Informacje
Powierzchnia: 48 m2
3 pokoje
4 piętra w budynku
Rok budowy: 1976
Numer oferty: FH966299
Zalety
domofon
Dodatkowe zalety
piwnica
Wyposażenie
balkon/taras
Kontakt
FREE HOME nieruchomości
Daria Łukasik
+48518092404

Podobne oferty

 Głogów   Słowiańska

3 pok na Zamkniętym Osiedlu. Garaż i ogródek

Głogów, Słowiańska

Dostępne tylko U nas Wyjątkowe Mieszkanie z Ogródkiem i garażem na zamkniętym Osiedlu w Centrum GłogowaFREE HOME biuro Nieruchomości Głogów...

60 m2
3 pokoje
770 000 zł
12 833 zł/m2
 Głogów   Obrońców Pokoju

Mieszkanie 3 POK z balkonem w bloku do wejścia

Głogów, Obrońców Pokoju

Oferujemy na sprzedaż trzypokojowe mieszkanie idealne dla rodziny, w cichej i spokojnej okolicy na osiedlu Obrońców Pokoju. Mieszkanie jest gotowe...

48 m2
3 pokoje
299 000 zł
6 229 zł/m2
 Głogów   Gwiaździsta

Mieszkanie 2 POK z balkonem do własnej aranżacji

Głogów, Gwiaździsta

Na sprzedaż 2-pokojowe mieszkanie na ulicy Gwiaździstej w Głogowie - idealna okazja dla osób szukających lokalu do własnej aranżacji!Mieszkanie o...

44 m2
2 pokoje
243 000 zł
5 523 zł/m2