Nowe od dewelopera 25 min do centrum Warszawy

Słomin

Dom
87 m2
4 pokoje

780 822 zł

Treść ogłoszenia

Nowoczesne osiedle, 25 min autem do centrum Warszawy

ZAKUP BEZ PODATKU PCC // BEZ PROWIZJI // OD DEWELOPERA
W OFERCIE ZOSTAŁO JESZCZE PONAD 20 DOMÓW - RÓŻNE ROZKŁADY I POWIERZCHNIE - NAPISZ LUB ZADZWOŃ JAKIEGO DOMU POSZUKUJESZ PRZEŚLĘ OFERTĘ - 533021120
 
Lokalizacja
osiedle domów w zabudowie szeregowej zlokalizowane nieopodal Lesznowoli, bardzo dobre połączenie z trasą S7 - około 25 min autem do centrum Warszawy. Pozostałe lokalizacje:
- Biedronka i żabka - 8 min pieszo
- Stacja paliw ze sklepem całodobowa - 10 min pieszo
- Janki - centrum handlowe - 10 min autem
- Lotnisko Chopina - 10 min autem
- Piaseczno - 10 min autem

Dom
Dwu-piętrowe domy, na osiedlu składającym się z 148 segmentów domów w zabudowie szeregowej i bliźniaczej. Segmenty o powierzchni 95 m², 106 m² oraz 135 m².
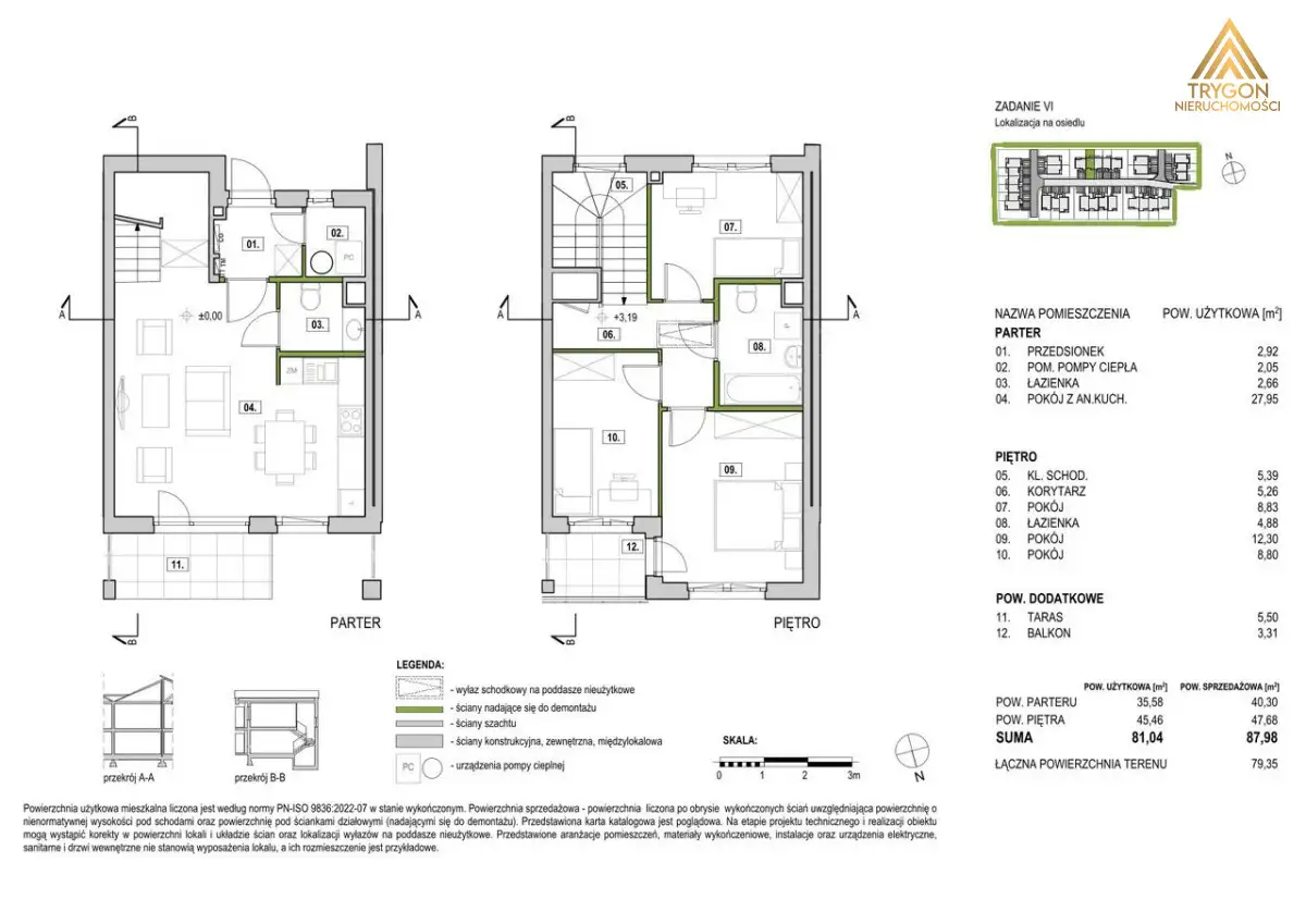
Aktualna oferta dotyczy segmentu o powierzchni 106,43 m² składający się na :
I kondygnacja
- pokój z aneksem 27,95 m²
- łazienka 
- klatka chodowa, korytarz, przedsionek, 
II kondygnacja
- pokój 1 - 8,8 m² + balkon 3,31 m²
- pokój 2 - 12,3 m² 
- pokój 3 -  8,8 m²
- łazienka 1 - 4,88 m²
- klatka chodowa, korytarz

Ogrzewania podłogowe na całej powierzchni
Rekuperacja
Pompa ciepła
Powierzchnia ogródka 35 m²

wirtualny spacer
https://tours.3destate.pl/spring-view-4-i-6a/1.zb11.g1.3d

Zapraszam na prezentację
Przemysław Daćko
533021120
[Email protected]">[Email protected]

Potrzebujesz kredytu ? zadzwoń zajmeimy się wszystkim, darmowa usługa przy zakupie nieruchomości z naszej oferty.
Lokalizacja
Słomin
mazowieckie
Informacje
Powierzchnia: 87 m2
4 pokoje
1 piętro w budynku
Rok budowy: 2025
Numer oferty: 897092
Ogrzewanie
pompa ciepła
Media
kanalizacja
Wyposażenie
balkon/taras
Kontakt
Trygon Nieruchomości
Przemysław Daćko
533021120

Podobne oferty

 Słomin

Zielona okolicaBlisko lasuwłasny ogródek

Słomin

Zakup bezpośrednio od dewelopera 0% prowizji i brak podatku PCCPrzedmiotem ogłoszenia jest 4-pokojowy dom w miejscowości Słomin powiat pruszkowski, gmina...

106 m2
4 pokoje
920 620 zł
8 685 zł/m2
 Słomin

Nowe od dewelopera 25 min do centrum Warszawy

Słomin

Nowoczesne osiedle, 25 min autem do centrum WarszawyZAKUP BEZ PODATKU PCC // BEZ PROWIZJI // OD DEWELOPERA Lokalizacjaosiedle domów w...

101 m2
4 pokoje
910 000 zł
9 010 zł/m2
 Słomin

Nowe od dewelopera 25 min do centrum Warszawy

Słomin

Nowoczesne osiedle, 25 min autem do centrum WarszawyZAKUP BEZ PODATKU PCC // BEZ PROWIZJI // OD DEWELOPERA Lokalizacjaosiedle domów w...

101 m2
4 pokoje
910 000 zł
9 010 zł/m2