Mieszkanie 2-pok. w nowej inwestycji nad Odrą

Szczecin , Celna

Mieszkanie
35 m2
2 pokoje

525 543 zł

Treść ogłoszenia

Zamieszkaj nad Odrą – nowoczesność i natura w idealnej harmonii

Lokalizacja, która zachwyca:
To wyjątkowa inwestycja położona tuż przy brzegu Odry – idealne miejsce dla tych, którzy cenią spokój, piękne widoki i miejski styl życia. Z mieszkania rozpościera się boczny widok na rzekę, a w bezpośrednim sąsiedztwie znajdują się nowe, malownicze aleje spacerowe – idealne na poranny jogging, spacer z psem czy wieczorny relaks na świeżym powietrzu.

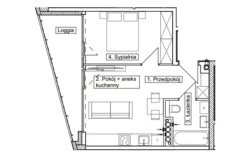
Układ mieszkania (8. piętro w 8-piętrowym budynku):
Pokój dzienny z aneksem kuchennym – 15,96 m²
Loggia - 6,64 m²
Sypialnia - 11,56 m²
Łazienka – 4,49 m²
Przedpokój – 3,64 m²

Dlaczego warto?
Nowoczesna, elegancka architektura – połączenie estetyki z funkcjonalnością
Kameralna okolica nad rzeką, z szybkim dojazdem do centrum miasta


Idealne dla:
Singla, pary lub inwestora szukającego atrakcyjnej nieruchomości pod wynajem.

Szukasz mieszkania o innych parametrach? Zadzwoń teraz!




Powyższe ogłoszenie ma wyłącznie charakter informacyjny. Nie stanowi ono oferty w myśl art. 66 i n. ustawy z dnia 23.04.1964r. Kodeks cywilny (Dz.U. 1964r. Nr 16, poz. 93, ze zm.).
Lokalizacja
Szczecin
dzielnica łasztownia
zachodniopomorskie
Informacje
Powierzchnia: 35 m2
2 pokoje
8 pięter w budynku
Rok budowy: 2027
Numer oferty: 473/10212/OMS
Zalety
domofon
Okolica
fitness
szkoła podstawowa
Kuchnia
w aneksie
Przeznaczenie
mieszkalny
Dodatkowe zalety
alarm
monitoring
Kontakt
VIP Nieruchomości
Szymon Mazurek
+ 48 531146851

Podobne oferty

 Szczecin

Nowe dwupokojowe standard deweloperski - Pomorzany

Szczecin

Na sprzedaż nowa nieruchomość w stanie deweloperskim, znajdująca się w dzielnicy Pomorzany Mieszkanie o powierzchni 42m2 usytuowane jest na parterze...

42 m2
2 pokoje
490 000 zł
11 667 zł/m2
 Szczecin   Filaretów

Mieszkanie na sprzedaż

Szczecin, Filaretów

Mieszkanie 3 pokojowe o powierzchni 82,73m2 na wysokim parterze w willi na działce na Pogodnie z lat 30tych XXw. Budynek...

82 m2
3 pokoje
699 000 zł
8 524 zł/m2
 Szczecin   Marii Dąbrowskiej

Mieszkanie

Szczecin, Marii Dąbrowskiej

Ustawne mieszkanie do odświeżenia, usytuowane w budynku położonym w spokojnej, prawobrzeżnej części miasta. Niskie natężenie ruchu samochodowego i pieszego. Dostępność...

49 m2
2 pokoje
425 000 zł
8 673 zł/m2