Lokal na wynajem 256 9m² Gródki Pierwsze Turobin

Gródki pierwsze

Komercyjne
256 m2

8 000 zł

Treść ogłoszenia

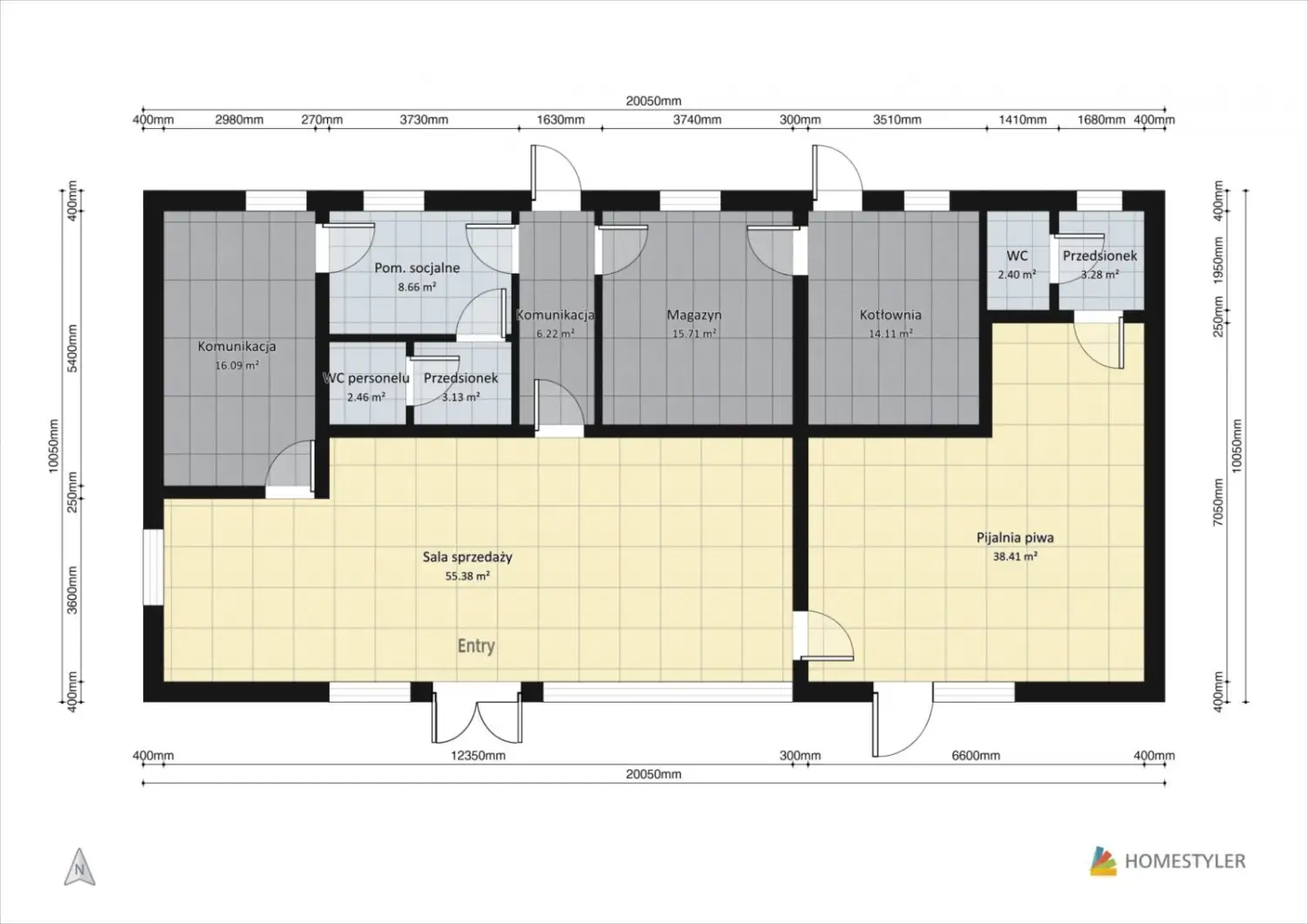
Do wynajęcia atrakcyjny lokal handlowo-usługowy o powierzchni 256,9 m², usytuowany w wolnostojącym budynku z poddaszem użytkowym znajdujący się w miejscowości Gródki Pierwsze gm. Turobin . Nieruchomość położona jest na działce o powierzchni 430 m², a dodatkowym atutem jest 1000 m² utwardzonej kostki brukowej, idealnej pod miejsca parkingowe, plac manewrowy czy przestrzeń dla klientów. Budynek posiada dwie niezależne klatki wejściowe, duże witryny od frontu oraz przestronne, jasne pomieszczenia, które można dowolnie zaaranżować pod działalność usługową, handlową lub biurową. Dzięki swojemu układowi i lokalizacji obiekt może być wykorzystywany w bardzo szerokim zakresie - od sklepu, gastronomii czy biur, aż po specjalistyczne usługi.
Atuty lokalu: :
powierzchnia całkowita: 256,9 m²
działka 430 m² , 1000 m² wyłożone kostką brukową
liczne miejsca parkingowe dla klientów/pacjentów
dwa wejścia do budynku + witryny od strony frontowej
poddasze użytkowe - możliwość adaptacji na biura, gabinety lub zaplecze
klimatyzacja, instalacja grzewcza, media (prąd, woda, kanalizacja)
spokojna okolica, piękne widoki i komfortowy dojazd
właściciel otwarty na modernizacje i dostosowanie lokalu do potrzeb najemcy
Możliwość wynajmu pod PRZYCHODNIĘ / OŚRODEK Ze względu na metraż, układ pomieszczeń oraz duży plac parkingowy, lokal doskonale sprawdzi się również jako: - przychodnia zdrowia, - centrum rehabilitacji, - gabinety lekarskie lub stomatologiczne, - ośrodek medyczny lub diagnostyczny.
Możliwe przeznaczenie:
sklep lub market,
lokal gastronomiczny (restauracja, kawiarnia),
gabinety i usługi medyczne,
biura, siedziba firmy,
działalność edukacyjna (np. przedszkole, szkoła językowa, fitness).
Warunki najmu:
- czynsz:8000 zł miesiąc
- dodatkowe opłaty: media wg zużycia
- kaucja: 16000 zł
Zapraszam na prezentację
Dawid Tołysz
690-470- 275



:: Oferta wysłana z programu mediaRent (media-rent.eu) ::
Lokalizacja
Gródki pierwsze
lubelskie
Informacje
Powierzchnia: 256 m2
Rok budowy: 2010
Numer oferty: 287/BNK/LW-240596
Kontakt
mai3ja_bnkwadrat
Dawid Tołysz
690470275