Twój dom nad jeziorem zaczyna się tutaj

Mirachowo

Działka
800 m2

64 000 zł

Treść ogłoszenia

Na sprzedaż działka budowlana 800 m² w sercu Kaszub - Mirachowo, zaledwie 200 metrów od jeziora

Oferujemy na sprzedaż atrakcyjną działkę budowlaną o powierzchni 800 m², położoną w miejscowości Mirachowo, w województwie pomorskim, gmina Kartuzy. Nieruchomość zlokalizowana jest w wyjątkowym otoczeniu - w bezpośrednim sąsiedztwie jeziora oraz terenów leśnych, co czyni ją idealnym miejscem na realizację projektu domu wakacyjnego lub całorocznego.

Opis działki:
• Powierzchnia: 800 m²
• Działka z lekkim wzniesieniem, sucha, dobrze nasłoneczniona
• Dojazd drogą utwardzoną, prywatna droga, współudział
• Działka nieogrodzona

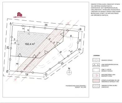
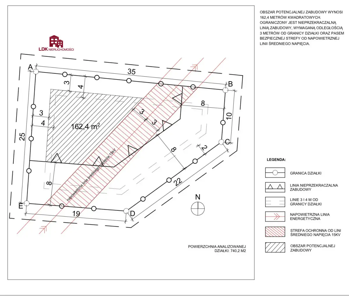
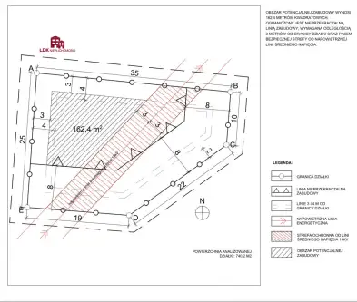
Na podstawie wykonanej analizy chłonności terenu ustalono możliwość zabudowy działki domem o powierzchni zabudowy do 65 m², z dachem dwuspadowym oraz dwiema kondygnacjami - parterem i poddaszem użytkowym. Taka forma zabudowy doskonale wpisuje się w charakter otaczającego krajobrazu kaszubskiego, oferując funkcjonalność przy zachowaniu harmonii z naturą.

Media:
• Energia elektryczna - na działce
• Woda - w drodze
• Kanalizacja - konieczność wykonania szamba lub przydomowej oczyszczalni ścieków

Lokalizacja i otoczenie:
Mirachowo to malownicza wieś położona na terenie Kaszubskiego Parku Krajobrazowego, znana z urokliwych jezior, lasów i szlaków turystycznych. Nieruchomość oddalona jest o zaledwie 200 metrów od linii brzegowej jeziora, co zapewnia wyjątkowe warunki do rekreacji - kąpieli, wędkowania, pływania łódką czy spędzania czasu na łonie natury.

W niedalekiej odległości znajdują się sklepy, punkty usługowe i przystanki komunikacji publicznej, co pozwala połączyć komfort życia codziennego z wyjątkowym spokojem oferowanym przez tę lokalizację.

Atuty nieruchomości:
• Atrakcyjna lokalizacja w sercu Kaszub
• Bliskość jeziora - tylko 200 metrów
• Możliwość realizacji domu z poddaszem użytkowym
• Ciche, zielone otoczenie - idealne do wypoczynku lub inwestycji

Działka doskonale sprawdzi się zarówno jako miejsce pod budowę domu wakacyjnego, jak i jako inwestycja pod wynajem krótkoterminowy, coraz bardziej popularny w regionie kaszubskim.
Lokalizacja
Mirachowo
pomorskie
Informacje
Powierzchnia: 800 m2
Numer oferty: LDK859324
Ogrodzenie
brak
Dojazd
polny
Kontakt
LDK NIERUCHOMOŚCI
Karolina Lenarczyk
+48 731103634