2 pok balkon blisko centrum

Poznań

Mieszkanie
45 m2
2 pokoje

552 720 zł

Treść ogłoszenia

Ogłoszenie sprzedaży 2 pokojowego mieszkania w stanie deweloperskim, Poznań

Promocja

To mieszkanie w cenie 552760 zł kupisz tylko do końca sierpnia.
Zadzwoń i umów się na obejrzenie inwestycji +48798601102

Bezpośrednio od dewelopera
Brak PCC
Bez prowizji

Lokalizacja

Starołęka, to ceniona przez mieszkańców okolica, blisko centrum i terenów zielonych.



  • tramwaj - 1 minuta

  • przychodnia - 5 minut

  • tereny zielone - 5 minut

  • szkoła - 5 minut

  • sklepy - 5 minut





Szukasz miejsca w którym poczujesz się naprawdę u siebie? Ten budynek został stworzony z myślą o Tobie i Twoich najbliższych.

Na dachu czeka na Ciebie taras widokowy - idealny, by odpocząć po ciężkim dniu pracy i nacieszyć się widokiem miasta. Jeśli masz dzieci, z pewnością docenisz plac zabaw tuż obok budynku - bezpieczny i pełen przestrzeni do zabawy.

Na co dzień możesz liczyć na wygodę dzięki windom obsługującym wszystkie piętra.
Do dyspozycji masz także rowerownię i wózkownię. Mamy także dla Ciebie podziemne i naziemne miejsca postojowe.

Twoje bezpieczeństwo to dla nas priorytet. W budynku znajduje się wideodomofon, drzwi antywłamaniowe, a całości dopełnia ochrona, która czuwa 24/7.

To miejsce, które daje Ci spokój, komfort i codzienną wygodę.


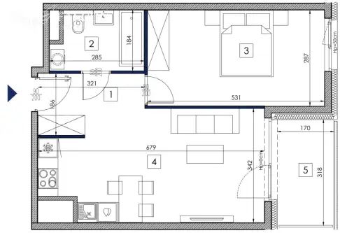
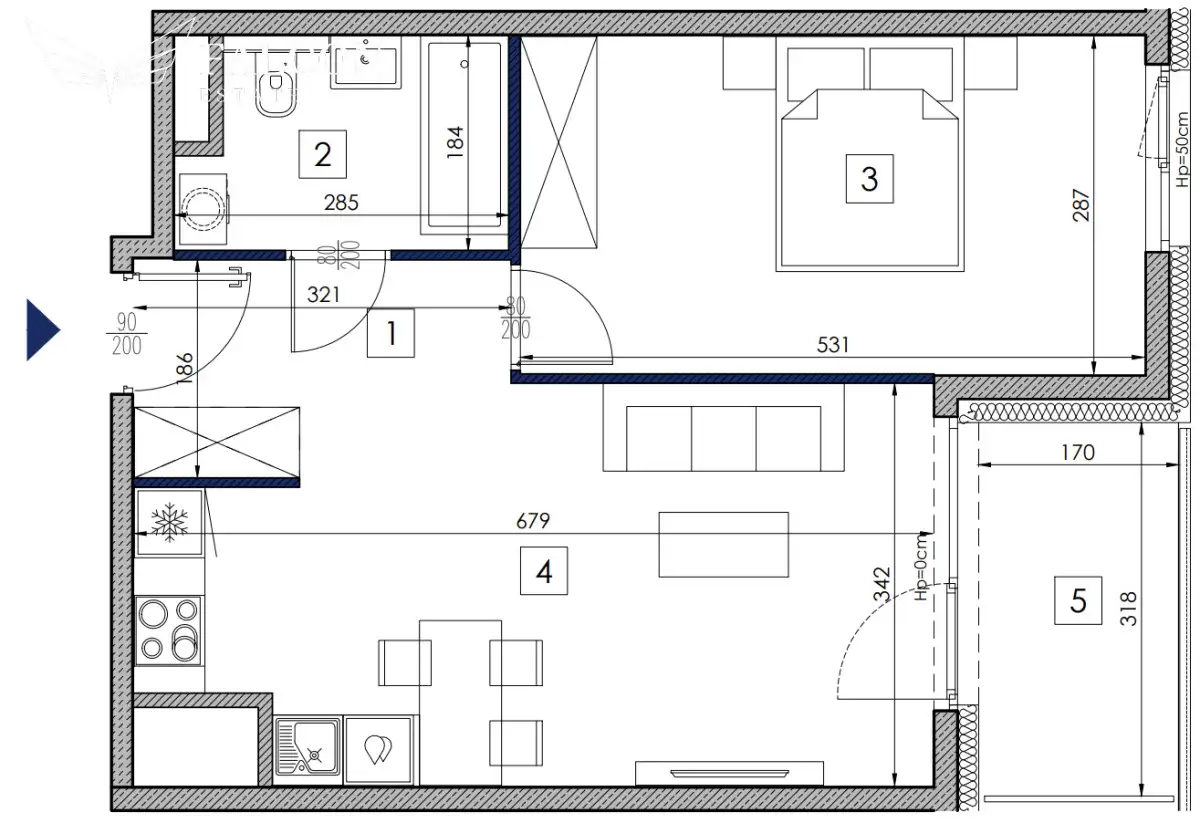
Układ mieszkania



  • salon z aneksem kuchennym - 20,69 m²

  • sypialnia - 15,23 m²

  • łazienka - 4,80 m²

  • hol - 4,87 m²

  • loggia - 5,40 m²


Mieszkania są już gotowe. Dostępne są jeszcze mieszkania 2 i 3 pokojowe.

Dla wybranych mieszkań 3 pokojowych miejsce postojowe gratis do końca sierpnia.


Spełnij marzenia o nowym mieszkaniu.
Nie czekaj, zarezerwuj mieszkanie do końca sierpnia.

Dodatkowo



  • pomagamy bezpłatnie w uzyskaniu najkorzystniejszej oferty kredytu hipotecznego,

  • możliwość wykończenia mieszkania pod klucz.



Monika Skotarczak. +48798601102

ZERO prowizji, brak PCC.

...
Oferta wystawiona przez Biuro nieruchomości Falcon Estate.
Prezentowane w serwisie oferty nie stanowią oferty handlowej w rozumieniu art. 66 Kodeksu Cywilnego i mogą być nieaktualne.
Lokalizacja
Poznań
dzielnica Starołęka
wielkopolskie
Informacje
Powierzchnia: 45 m2
2 pokoje
16 pięter w budynku
Rok budowy: 2926
Numer oferty: FE631670
Zalety
domofon
Media
kanalizacja
Kontakt
Falcon Estate
Monika Skotarczak
798601102

Podobne oferty

 Poznań   Rembertowska

Piękne mieszkanie na Grunwaldzie

Poznań, Rembertowska

OPIS INWESTYCJI: Mieszkanie znajduje się na wyjątkowym i kameralnym osiedlu usytuowanym bezpośrednio przy Parku Jasińskiego na poznańskim Grunwaldzie. Został tutaj...

62 m2
3 pokoje
831 072 zł
13 404 zł/m2
 Poznań   Smolna

Mieszkanie na zamkniętym osiedlu w Poznaniu

Poznań, Smolna

Na sprzedaż 2-pokojowe mieszkanie przy ul. Smolna 13, Zawady, Poznań.Komfortowe, funkcjonalne i nowocześnie wykończone mieszkanie o powierzchni 44 m², położone...

43 m2
2 pokoje
640 000 zł
14 884 zł/m2
 Poznań   Naramowicka

kawalerka z ogródkiem dobry dojazd do centrum

Poznań, Naramowicka

Ogłoszenie sprzedaży kawalerki z ogródkiem w Poznaniu Bezpośrednio od dewelopera Brak PCC Bez prowizji LokalizacjaNaramowice, to doskonale miejsce, jeśli cenisz...

29 m2
1 pokój
338 300 zł
11 666 zł/m2