Jasne słoneczne mieszkanie 3-pokojowe Ruczaj

Kraków

Mieszkanie
54 m2
3 pokoje

689 000 zł

Treść ogłoszenia

Zakup mieszkania bez prowizji i podatku pcc.
Inwestycja jest gotowa, zapraszam na prezentację 7 dni w tygodniu.


Oferuję do sprzedaży gotowe mieszkanie 3-pokojowe w budynku 2-piętrowym na Ruczaju.
Inwestycja ulokowana jest na kameralnym i cichym osiedlu z wygodnym dojazdem do pozostałych dzielnic Krakowa. Budynki cechują się przemyślanym i spójnym projektem z zadbaną zielenią w częściach wspólnych.


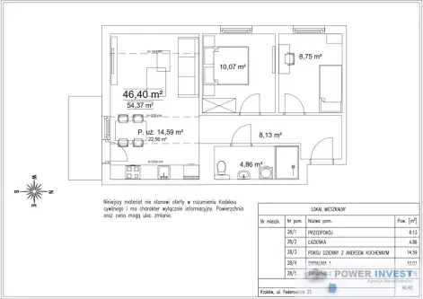
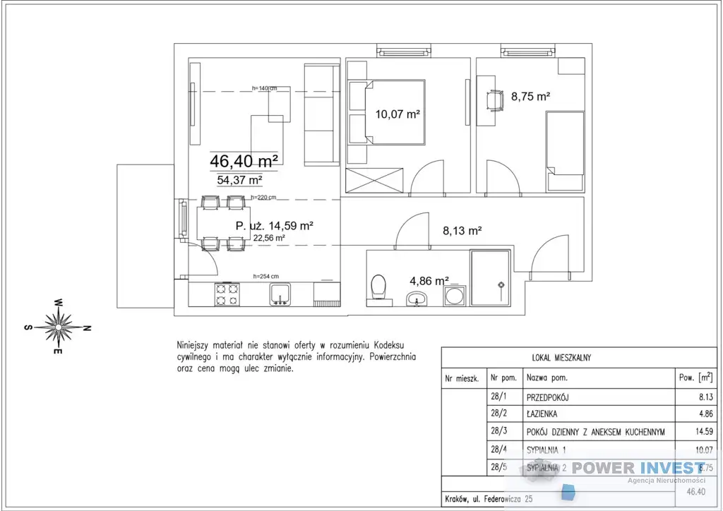
Mieszkanie znajduje się na 2 pietrze. Lokal ma powierzchnię 54,37 m powierzchni po podłodze (46,40m² powierzchni użytkowej) i składa się z:

- salonu z aneksem kuchennym
- sypialni
- sypialni
- łazienki
- przedpokoju
- balkonu


Mieszkanie jest w stanie deweloperskim, do własnej aranżacji*
*Współpracujemy z renomowanymi firmami wykończeniowymi. Zachęcamy do skorzystania z bezpłatnej konsultacji.



Dodatkowe informacje dotyczące mieszkania oraz całej inwestycji:

- w każdym mieszkaniu ogrzewanie podłogowe, brak grzejników
- klimatyzacja wraz z jednostkami zewnętrzną oraz wewnętrzną w salonie
- okna 3-szybowe z filtrami antysmogowymi
- pierwszorzędny standard wykończenia części wspólnych z użyciem wysokiej jakości materiałów budowlanych
- w garażu podziemnym nie ma platform, wszystkie miejsca są wyznaczone na płycie garażowej


Lokalizacja:

- doskonały dostęp do komunikacji miejskiej (200 m do przystanku autobusowego "Bunscha", 1 przystanek autobusowy do zajezdni tramwajowo-autobusowej "Czerwone Maki")
- w pobliżu liczne supermarkety - Lidl, Market Point, kompleks handlowy Atut Czerwone Maki, siłownia a także restauracje,
- 4 przystanki komunikacją miejską do Kampusu UJ
- w okolicy bogate zaplecze dydaktyczne - żłobki i przedszkola, szkoła podstawowa
- w sąsiedztwie tereny zielone oraz rekreacyjne
- cicha i spokojna okolica, w sąsiedztwie niska zabudowa mieszkalna



Do każdego mieszkania przynależy miejsce postojowe w garażu podziemnym - zakup obligatoryjny (ceny od 40 000 zł).
Istnieje możliwość zakupu komórki lokatorskiej.


Nasi eksperci finansowi z Power Finance chętnie pomogą w uzyskaniu najlepszego kredytu na rynku.


Przedstawiona oferta ma charakter informacyjny i nie stanowi oferty handlowej w rozumieniu Art.66 par.1 Kodeksu Cywilnego.


W razie dodatkowych pytań pozostaję do dyspozycji.
Angelina Rojkowicz



Ogłoszenie wysłane z programu dla biur nieruchomości ASARI CRM (asaricrm.com)



Lokalizacja
Kraków
dzielnica Ruczaj
małopolskie
Informacje
Powierzchnia: 54 m2
3 pokoje
2 piętra w budynku
Rok budowy: 2024
Numer oferty: 27043/7649/OMS
Garaż
miejsce parkingowe
Zalety
domofon
teren ogrodzony
Okolica
centrum handlowe
przedszkole
plac zabaw
szkoła podstawowa
restauracja
Kuchnia
w aneksie
Przeznaczenie
mieszkalny
Dodatkowe zalety
monitoring
Kontakt
POWER HOLDING Sp. z o.o.
Angelina Rojkowicz
+48 575 222 841

Podobne oferty

 Kraków   Odlewnicza

Gotowe nowa inwestycja 3 pokoje ogród

Kraków, Odlewnicza

Przedstawiam Państwu kameralną inwestycje realizowaną na krakowskiej Krowodrzy. 12 trzykondygnacyjnych budynków mieszkalnych, w sąsiedztwie niskiej zabudowy jednorodzinnej oraz licznych terenów...

85 m2
3 pokoje
1 699 000 zł
19 988 zł/m2
 Kraków

Mieszkanie 4 pokojowe na Zabłociu z dużym ogrodem

Kraków

Mieszkanie do kupienia od IV kwartału 2025 roku, ustawne mieszkanie w świetnej lokalizacji w stanie deweloperskim. W ofercie, również inne...

78 m2
4 pokoje
1 571 286 zł
20 145 zł/m2
 Kraków   Litewska

Przytulne 3-pokojowe mieszkanie po remoncie

Kraków, Litewska

Przytulne 3-pokojowe mieszkanie po remoncie, Kraków, Krowodrza Na sprzedaż przytulne i bardzo ustawne mieszkanie o powierzchni 46,12 m², położone przy...

46 m2
3 pokoje
759 000 zł
16 500 zł/m2