3 pokojowe mieszkanie z balkonem i loggia

Lublin

Mieszkanie
62 m2
3 pokoje

778 876 zł

Treść ogłoszenia

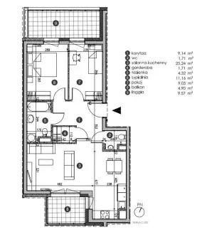
Trzypokojowe mieszkanie o powierzchni projektowej 62,36 m² na 4 piętrze w 10 piętrowym bloku na Czechowie.

Opis mieszkania:
-Pokój dzienny o pow. 25,24 m² z wyjściem na loggie o pow. 4,90 m²
-2 Pokoje o pow. 11,16 m² , 9,05 m² z wyjściem na balkon o pow. 9,57 m²
-Łazienka o pow. 4,32 m²
-Przedpokój o pow. 9,14 m²
-WC o pow. 1,71 m²
-Garderoba o pow. 1,71 m² 

Dodatkowe informacje:
Miejsce postojowego w garażu podziemnym w cenie 50 000 zł, miejsce podwójne 80 000 zł

MEDIA:
ogrzewanie sieć miejska, woda, prąd

Termin realizacji: kwiecień 2026

Atuty inwestycji:
- nowoczesna architektura, technologia i ergonomiczne rozwiązanie,
- certyfikat BREEAM - wiodące na świecie pakiet systemów oceny i ceryfikacji budynków. Zapewnia spójną weryfikację wszystkich typów aktywów pod kątem zrównoważonego rozwoju i wpływu na środowisko.
- inteligentne mieszkania SMART HOME: oświetlenie, czujki, ruchu, dymu, zalania,
- zaplecze handlowo - usługowe.
- 1 hektar parku
- lobby z recepcją
- obiekt monitorowany

Lokalizacja:
Bardzo dobrze rozwinięta infrastruktura osiedla, w pobliżu uczelnie wyższe, szkoły, przedszkola, żłobki, sklepy spożywcze, galerie handlowe, przychodnie lekarskie, przystanki autobusowe oraz tereny zielone.

*jeśli potrzebujesz pomocy eksperta w dobraniu finansowania zakupu nieruchomości, skontaktuj się z opiekunem oferty.

Ofertę przygotowała i prezentuje:
Patrycja Czarnik 791689906
Licencjonowany pośrednik nieruchomości
Franczewska Nieruchomości

Zapraszam do kontaktu oraz na prezentację nieruchomości!

Treść niniejszego ogłoszenia nie stanowi oferty handlowej w rozumieniu Kodeksu Cywilnego, ale jest zaproszeniem do współpracy. Dokładamy wszelkich starań, aby każda z ofert była rzetelnie sprawdzona oraz aktualna.
W ofercie nie są przedstawione koszty obsługi transakcji, która wykonywana jest w profesjonalny sposób i zapewnia Państwu pełne bezpieczeństwo. Więcej unikalnych ofert w podobnych kryteriach znajdą Państwo na naszej stronie.
Lokalizacja
Lublin
lubelskie
Informacje
Powierzchnia: 62 m2
3 pokoje
10 pięter w budynku
Rok budowy: 2026
Numer oferty: 340437057
Wyposażenie
balkon/taras
Kontakt
FRANCZEWSKA NIERUCHOMOŚCI ADRIANNA FRANCZEWSKA-KRUPA SPÓŁKA KOMANDYTOWA
Patrycja Czarnik
791 689 906

Podobne oferty

 Lublin   Młodej Polski

23 Pokoje Blisko UM-56m²-Czechów z dużym balkonem

Lublin, Młodej Polski

Ofertą sprzedaży jest 2 pokojowe mieszkanie na Czechowie znajdujące się na 4 piętrze w niskim bloku o powierzchni 56,00 m2...

56 m2
2 pokoje
465 000 zł
8 304 zł/m2
 Lublin   Słowicza

Mieszkanie 3 pokojowe 59 5m² z ogródkiem PARTER.

Lublin, Słowicza

Zapraszamy do zapoznania się z ofertą mieszkań z rynku pierwotnego w Lublinie - Bronowice ul. Słowicza. Nowa inwestycja: - osiedle...

59 m2
3 pokoje
565 250 zł
9 581 zł/m2
 Lublin   Lesława Pagi

Mieszkanie na sprzedaż

Lublin, Lesława Pagi

0% PROWIZJI OD KUPUJĄCEGO! Mieszkanie 4-pokojowe o pow. 65,31m2 z zachodnim balkonem o pow. 5,99m2. Stan developerski zostanie oddany w...

65 m2
4 pokoje
698 817 zł
10 751 zł/m2