Szukasz okazji poniżej ceny rynkowej? Zobacz

Głogów , Gustawa Morcinka

Mieszkanie
44 m2
2 pokoje

229 000 zł

Treść ogłoszenia

HIT CENOWY! 2 POKOJE Z POTENCJAŁEM NA CHROBRYM - ZNACZNIE PONIŻEJ CENY RYNKOWEJ!

Prezentujemy Państwu absolutny hit cenowy i wyjątkową okazję inwestycyjną! Na sprzedaż 2-pokojowe mieszkanie o powierzchni 44,20 m² w cenie znacznie poniżej wartości rynkowej. Lokal położony jest na komfortowym, 5. piętrze w 10-piętrowym wieżowcu przy ul. Gustawa Morcinka, w sercu osiedla Chrobry. To idealny materiał na start lub na flipa - diament, który czeka na oszlifowanie!

Lokalizacja - Topowe Osiedle Chrobry
Osiedle Chrobry to jedna z najbardziej pożądanych i lubianych lokalizacji w Głogowie. Mieszkanie przy ul. Morcinka to gwarancja dostępu do pełnej infrastruktury: liczne sklepy, szkoły, przedszkola, parki oraz przystanki komunikacji miejskiej - wszystko to w zasięgu kilku kroków.

Nieruchomość i Ogromny Potencjał
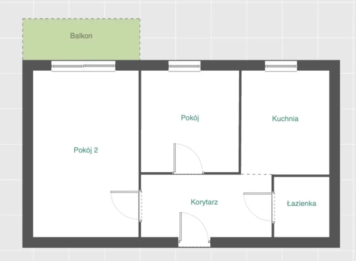
Lokal o powierzchni 44,20 m² składa się obecnie z dwóch pokoi, kuchni, łazienki oraz przedpokoju. Do mieszkania przynależy również balkon. Jego największym atutem jest doskonały, elastyczny układ, który daje nieograniczone możliwości aranżacyjne. Z łatwością można połączyć pomieszczenia, tworząc nowoczesną, otwartą strefę dzienną, lub całkowicie przearanżować wnętrze według własnego pomysłu.

Stan Techniczny i Budynek
Mieszkanie jest przeznaczone do generalnego remontu, co jest jego ogromną zaletą - pozwala nowemu właścicielowi na stworzenie wnętrza idealnie dopasowanego do własnego gustu, bez płacenia za czyjeś staromodne wykończenie. Największym atutem jest jednak sam budynek! Wieżowiec jest w doskonałej kondycji technicznej - został ocieplony (po termomodernizacji), co gwarantuje niskie koszty ogrzewania, a w klatce schodowej działają DWIE NOWE, WYMIENIONE WINDY, co zapewnia codzienny komfort.

Skontaktuj się z nami - OKAZJA DLA ZDECYDOWANYCH!
Zapraszamy do kontaktu z biurem FREE HOME biuro nieruchomości Głogów. To bez wątpienia najtańsza oferta 2-pokojowa z takim potencjałem w tej lokalizacji. Nieruchomości poniżej ceny rynkowej, w tak dobrych blokach, znikają jako pierwsze. Nie czekaj - zadzwoń i umów się na prezentację!
Lokalizacja
Głogów
dolnośląskie
Informacje
Powierzchnia: 44 m2
2 pokoje
10 pięter w budynku
Rok budowy: 1988
Numer oferty: FH617248
Dodatkowe zalety
piwnica
Wyposażenie
balkon/taras
Kontakt
FREE HOME nieruchomości
Grzegorz Łukasik
+48 537 264 666

Podobne oferty

 Głogów   Bartosza Głowackiego

Mieszkania

Głogów, Bartosza Głowackiego

Park Głowackiego to nowa inwestycja COVERS Jacek Wojciechowski, któremu zaufało już wielu Głogowian. Wszystkie dotychczasowe realizacje dewelopera wyróżniają się wysokim...

44 m2
2 pokoje
373 632 zł
8 492 zł/m2
 Głogów   Jana Długosza

2 pokojowe mieszkanie po remoncie INWESTYCJA

Głogów, Jana Długosza

Na sprzedaż umeblowane 2 pokojowe mieszkanie o powierzchni 35,5m2 na os. Chrobry w Głogowie. Idealna inwestycja pod wynajem. Można też...

35 m2
2 pokoje
195 000 zł
5 571 zł/m2
 Głogów   Armii Krajowej

Jakość ma swoją cenę. Zobacz te 3 pok na 1 piętrze

Głogów, Armii Krajowej

PEREŁKA NA 1. PIĘTRZE! 3 POKOJE Z BALKONEM PO REMONCIE-MAJSTERSZTYK!Prezentujemy Państwu prawdziwy ewenement na głogowskim rynku nieruchomości! Mieszkanie 3-pokojowe na...

50 m2
3 pokoje
409 000 zł
8 180 zł/m2