2 pokoje Balkon Oddzielna kuchnia Blisko PKP Oliwa

Gdańsk , Bolesława Krzywoustego

Mieszkanie
38 m2
2 pokoje

540 000 zł

Treść ogłoszenia

| 2 POKOJE | OSOBNA KUCHNIA | GDAŃSK PRZYMORZE | INWESTYCJA | DO REMONTU |

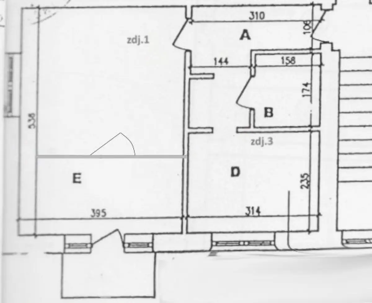
Na sprzedaż oferujemy 2- pokojowe, jasne mieszkanie o powierzchni 37,70 m², zlokalizowane w atrakcyjnej dzielnicy Przymorze Małe. Mieszkanie było wcześniej jednym przestronnym pokojem. Istnieje możliwość powrotu do pierwotnego układu. Budynek ocieplony, z ogrodzonym parkingiem dla mieszkańców. Klatka schodowa czysta i zadbana.

MIESZKANIE SKŁADA SIĘ Z:

- dwóch pokoi,
- oddzielnej kuchni z oknem,
- łazienki,
- przedpokoju z miejscem do przechowywania.

Do mieszkania przynależy przestronna piwnica o powierzchni ok. 5 m².

STAN MIESZKANIA:

Mieszkanie w stanie do remontu, dające szerokie możliwości aranżacyjne według własnego pomysłu i potrzeb. Obecnie w mieszkaniu znajduje się piecyk Junkers, wkrótce cała wspólnota zostanie podłączona do ogrzewania miejskiego.

LOKALIZACJA:

Mieszkanie położone jest w cichej i spokojnej dzielnicy. Idealna lokalizacja łączy spokój z bliskością morza i doskonałą komunikacją z centrum miasta. W bezpośrednim sąsiedztwie liczne sklepy i punkty usługowe. Zaraz obok znajduje się Zielony Rynek. Blisko Parku Oliwskiego i terenów zielonych. W pobliżu stacja PKP Oliwa, co zapewnia szybki dojazd do innych części Trójmiasta.

Dodatkowe atuty:

- 2 pokoje z możliwością powrotu do bardziej przestronnego układu - 1 dużego pokoju,
- cicha i spokojna okolica z dużą ilością zieleni,
- pod blokiem ogrodzony, prywatny parking,
- niskie koszty utrzymania, czynsz wynosi około 500 zł/ mc.

Mieszkanie dostępne od zaraz!

Zapraszam do kontaktu i na prezentację!
Magdalena Bruska
Doradca ds. Nieruchomości i Inwestycji
[Email protected]
505 400 672
KUP Z NAMI - KORZYSTNIE I BEZPIECZNIE!
- bezpieczny zakup z polisą OC Pośrednika w PZU S.A.,
- najlepsza cena zakupu,
- skuteczna i bezpłatna pomoc w uzyskaniu kredytu hipotecznego,
- jesteśmy do Twojej dyspozycji 7 dni w tygodniu! Zapraszamy do kontaktu telefonicznego i mailowego,
- preferencyjne warunki czynności notarialnych oraz bezpłatna weryfikacja stanu prawnego nieruchomości.
Przedstawiona oferta ma charakter informacyjny, nie stanowi oferty handlowej w rozumieniu Art. 66 par.1 Kodeksu Cywilnego.


:: Oferta wysłana z programu mediaRent (media-rent.eu) ::
Lokalizacja
Gdańsk
dzielnica Przymorze
pomorskie
Informacje
Powierzchnia: 38 m2
2 pokoje
3 piętra w budynku
Rok budowy: 1959
Numer oferty: 795/BTH/MS-1070
Dojazd
asfalt
Dodatkowe zalety
meble
Wyposażenie
balkon/taras
Kontakt
BALTIC HOUSE NIERUCHOMOŚCI
Magdalena Bruska
+48505400672

Podobne oferty

 Gdańsk   Szara

Ładna Kawalerka na Siedlcach ul. Szara

Gdańsk, Szara

Mieszkanie dobrze skomunikowane z Centrum Gdańska 15 minut spacerem do Starówki. Komfortowe mieszkanie po kapitalnym remoncie ( nie wymaga wkładu...

31 m2
1 pokój
450 000 zł
14 516 zł/m2
 Gdańsk   Józefa Wieniawskiego

Apartament 4 pokojowy na Siedlcach

Gdańsk, Józefa Wieniawskiego

Zamieszkaj u bram Śródmieścia i odkryj własną perspektywę na GdańskWyjątkowa inwestycja mieszkaniowa zaprojektowana w dolinie potoku Siedleckiego, która prowadzi ulicą...

68 m2
4 pokoje
1 385 678 zł
20 378 zł/m2
 Gdańsk   Na Zaspę

2 pokoje Blisko Morza Balkon Nowy Port Gdańsk

Gdańsk, Na Zaspę

DOBRA INWESTYCJA BLISKO MORZA Na sprzedaż oferujemy dwupokojowe mieszkanie znajdującą się w jednej z najbardziej pożądanej dzielnicy Gdańska - Nowy...

48 m2
2 pokoje
560 000 zł
11 667 zł/m2