3 pokoje dla rodziny z klimatyzacją i ogródkiem

Kraków

Mieszkanie
54 m2
3 pokoje

786 528 zł

Treść ogłoszenia

Zakup mieszkania bez prowizji i podatku pcc.
Inwestycja jest na zaawansowanym etapie budowy, zapraszam na prezentację mieszkania.


Oferuję do sprzedaży mieszkanie 3-pokojowe w budynku 3-piętrowym z windą zlokalizowanym na Ruczaju.
Inwestycja ulokowana jest na kameralnym i cichym osiedlu z wygodnym dojazdem do pozostałych dzielnic Krakowa. Budynki cechują się przemyślanym i spójnym projektem z zadbaną zielenią w częściach wspólnych.


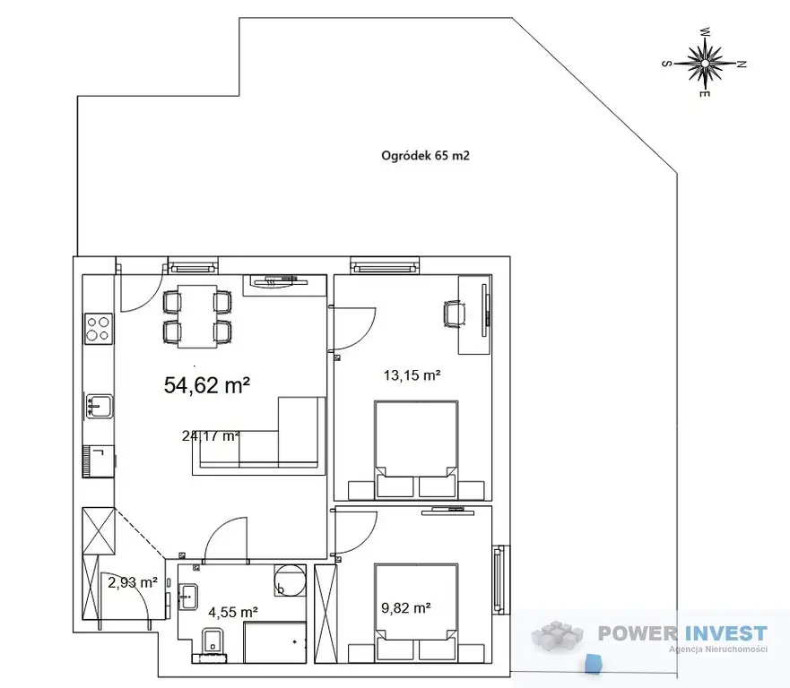
Mieszkanie znajduje się na parterze. Lokal ma powierzchnię 54,62 m² składa się z:

- salonu z aneksem kuchennym
- sypialni
- sypialni
- łazienki
- przedpokoju
- ogródka 65 m²


Mieszkanie jest w stanie deweloperskim, do własnej aranżacji*
*Współpracujemy z renomowanymi firmami wykończeniowymi. Zachęcamy do skorzystania z bezpłatnej konsultacji.


Lokalizacja:

- doskonały dostęp do komunikacji miejskiej (200 m do przystanku autobusowego "Bunscha", 1 przystanek autobusowy do pętli tramwajowo-autobusowej "Czerwone Maki")
- w pobliżu liczne supermarkety - Lidl, Market Point, kompleks handlowy Atut Czerwone Maki, siłownia a także restauracje
- 4 przystanki komunikacją miejską do Kampusu UJ
- w okolicy bogate zaplecze dydaktyczne - żłobki i przedszkola, szkoła podstawowa
- w sąsiedztwie tereny zielone oraz rekreacyjne
- cicha i spokojna okolica,


Dodatkowe informacje dotyczące mieszkania oraz całej inwestycji:

- w każdym mieszkaniu ogrzewanie podłogowe, brak grzejników
- klimatyzacja wraz z jednostkami zewnętrzną oraz wewnętrzną w salonie
- cichobieżna winda
- okna 3-szybowe z filtrami antysmogowymi
- pierwszorzędny standard wykończenia części wspólnych z użyciem wysokiej jakości materiałów budowlanych
- w garażu podziemnym nie ma platform, wszystkie miejsca są wyznaczone na płycie garażowej
- zadbana zieleń na terenie osiedla
- plac zabaw na terenie osiedla
- brama wjazdowa na pilot



Do każdego mieszkania przynależy miejsce postojowe w garażu podziemnym - zakup obligatoryjny (ceny od 40 000 zł).
Istnieje możliwość zakupu komórki lokatorskiej.


Nasi eksperci finansowi z Power Finance chętnie pomogą w uzyskaniu najlepszego kredytu na rynku.


Przedstawiona oferta ma charakter informacyjny i nie stanowi oferty handlowej w rozumieniu Art.66 par.1 Kodeksu Cywilnego.


W razie dodatkowych pytań pozostaję do dyspozycji.
Angelina Rojkowicz





Ogłoszenie wysłane z programu dla biur nieruchomości ASARI CRM (asaricrm.com)



Lokalizacja
Kraków
dzielnica Ruczaj
małopolskie
Informacje
Powierzchnia: 54 m2
3 pokoje
3 piętra w budynku
Rok budowy: 2025
Numer oferty: 27201/7649/OMS
Garaż
miejsce parkingowe
Zalety
domofon
teren ogrodzony
Okolica
bank/bankomat
centrum handlowe
przedszkole
plac zabaw
szkoła podstawowa
restauracja
Kuchnia
w aneksie
Przeznaczenie
mieszkalny
Dodatkowe zalety
alarm
monitoring
Kontakt
POWER HOLDING Sp. z o.o.
Angelina Rojkowicz
+48 575 222 841

Podobne oferty

 Kraków   Józefa Wybickiego

Nowe mieszkanie z balkonem – Krowodrza

Kraków, Józefa Wybickiego

Nowe mieszkanie z balkonem – Kraków, Krowodrza, ul. Wybickiego Bez prowizji i podatku PCC! Już gotowe do oddania! Mieszkanie składa...

41 m2
2 pokoje
696 000 zł
16 976 zł/m2
 Kraków

2 pokoje z balkonem w Centrum przy tramwaju

Kraków

Oferuję do sprzedaży mieszkanie 2-pokojowe w stanie deweloperskim*,  w budynku 7-piętrowym zlokalizowanym w dzielnicy Krowodrza. Nieruchomość znajduje się na 6...

40 m2
2 pokoje
770 000 zł
19 250 zł/m2
 Kraków   Wita Stwosza

40 3m² ul. Wita Stwosza INWESTYCYJNIECentrum

Kraków, Wita Stwosza

Na sprzedaż mieszkanie BEZPOŚREDNIO OD DEWELOPERA, BEZ PROWIZJIIdealna propozycja dla inwestorów - mieszkanie doskonałe pod krótkoterminowy oraz długoterminowy wynajem, jak...

40 m2
2 pokoje
787 437 zł
19 686 zł/m2