Sprzedaż z wolnej ręki - salon samochodowy

Kalisz , Wrocławska

Lokal
1045 m2

3 700 000 zł

Treść ogłoszenia

OBWIESZCZENIE O SPRZEDAŻY

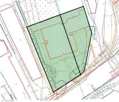
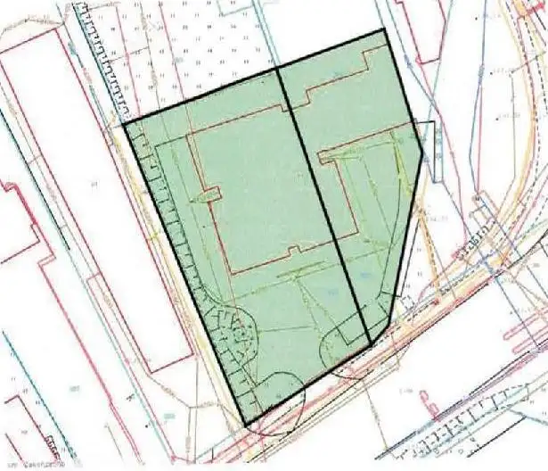
NIERUCHOMOŚCI GRUNTOWYCH W KALISZU PRZY UL. WROCŁAWSKIEJ 89-91/UL. TYLNEJ 18,

ZABUDOWANYCH SALONEM SAMOCHODOWYM WRAZ Z CZĘŚCIĄ WARSZTATOWĄ I MAGAZYNOWĄ

WRAZ Z WYPOSAŻENIEM



Syndyk Masy Upadłości „TRANS-POZ” Spółka Akcyjna w upadłości (KRS 0000058154) w postępowaniu upadłościowym prowadzonym przez Sąd Rejonowy Poznań Stare-Miasto w Poznaniu XI Wydział Gospodarczy ds. Upadłościowych i Restrukturyzacyjnych pod sygn. akt PO1P/GUp/6/2024, ogłasza łączną sprzedaż z wolnej ręki w trybie publicznego konkursu ofert składników masy upadłości (Przedmiotu sprzedaży) w postaci:

a) prawa własności dwóch nieruchomości gruntowych, w tym jednej zabudowanej salonem samochodowym wraz z częścią warsztatową i magazynową, stanowiących ekonomiczną całość, położonych w Kaliszu przy ul. Wrocławskiej 89-91/ul. Tylnej 18, dla których Sąd Rejonowy w Kaliszu, VI Wydział Ksiąg Wieczystych prowadzi akta księgi wieczystej pod numerem KZ1A/00015409/3 oraz KZ1A/00045190/3,

b) ruchomości, w postaci zapasów magazynowych oraz środków trwałych, stanowiących wyposażenie ww. salonu samochodowego wraz z częścią warsztatową i magazynową,.



Cena wywołania za Przedmiot sprzedaży wynosi 3.700.000,00 zł netto (słownie: trzy miliony siedemset tysięcy złotych netto).



Wyciąg z Regulaminu sprzedaży:

1. Oferty należy składać w nieprzekraczalnym terminie do dnia 8 grudnia 2025 r. do godz. 12:00 w kancelarii Syndyka Masy Upadłości – Kancelaria Radców Prawnych i Doradców Restrukturyzacyjnych GRENDA, 61-729 Poznań, ul. Młyńska 5a/1 lub przesłać listem poleconym na ww. adres Kancelarii w Poznaniu.

2. Oferta wraz z wymaganymi dokumentami powinna być sporządzona zgodnie z Regulaminem sprzedaży i złożona w zamkniętej kopercie zaadresowanej do Kancelarii Syndyka – Kancelarii Radców Prawnych i Doradców Restrukturyzacyjnych GRENDA, adres: 61-729 Poznań, ul. Młyńska 5a/1 wraz z podaniem sygnatury akt PO1P/GUp/6/2024 oraz dopiskiem: „NIE OTWIERAĆ – OFERTA KONKURSOWA w postępowaniu upadłościowym TRANS-POZ S.A. w upadłości” oraz zawierać dokładne oznaczenie składającego ofertę.

3. Oferta powinna zawierać w szczególności dokładne oznaczenie składającego ofertę oraz oferowaną cenę nabycia netto za Przedmiot sprzedaży. Oferta musi spełniać wszystkie wymogi wynikające z Regulaminu sprzedaży.

4. Warunkiem uczestnictwa w Konkursie jest wpłata wadium w kwocie 370.000,00 zł (słownie: trzysta siedemdziesiąt tysięcy złotych) na rachunek bankowy masy upadłości TRANS-POZ S.A. w upadłości, prowadzony w Santander Bank Polska S.A. o numerze 66 1090 1362 0000 0001 5701 8423, z dopiskiem "Wadium – sygn. akt PO1P/GUp/6/2024", najpóźniej do dnia poprzedzającego datę dzienną zakreśloną jako termin składania ofert, przy czym liczy się faktyczny termin uznania kwoty ww. wadium na ww. rachunku bankowym masy upadłości.

5. Regulamin sprzedaży w pełnej wersji dostępny jest do wglądu w kancelarii Syndyka, na stronie www.kancelariagrenda.pl, a nadto może zostać przesłany drogą elektroniczną po uprzednim skierowaniu zapytania w powyższym zakresie na adres e-mail: [Email protected].

6. Więcej informacji można uzyskać telefonicznie pod nr 61 670 73 73 od poniedziałku do piątku w godz. od 9.00 do 17.00 bądź drogą mailową.

7. Syndyk zastrzega na swoją rzecz prawo do bezodszkodowawczego odstąpienia od procedury konkursowej lub sprzedaży na każdym jej etapie.





Kontakt:
Syndyk Patrycja Grenda
tel: 61 670 73 73
[Email protected]


Ogłoszenie wysłane z programu dla biur nieruchomości ASARI CRM (asaricrm.com)



Lokalizacja
Kalisz
wielkopolskie
Informacje
Powierzchnia: 1045 m2
Numer oferty: 10326/3186/OOS
Kontakt
AMK Portal Sp. z o.o.
Syndyk Patrycja Grenda
61 670 73 73

Podobne oferty

 Kalisz   Wierzbowa

Warsztat

Kalisz, Wierzbowa

Syndyk masy upadłości osoby nieprowadzącej działalności gospodarczej sprzeda 1/6 udziałów w nieruchomości położonej w Kaliszu, dla której Sąd Rejonowy w...

293 m2
87 700 zł
299 zł/m2
 Kalisz   Wrocławska

Sprzedaż z wolnej ręki - salon samochodowy

Kalisz, Wrocławska

OBWIESZCZENIE O SPRZEDAŻY nieruchomości gruntowych w Kaliszu przy ul. Wrocławskiej 89-91/ul. Tylnej 18, zabudowanych salonem samochodowym wraz z częścią warsztatową...

1045 m2
4 600 000 zł
4 402 zł/m2
 Kalisz   Wrocławska

Sprzedaż z wolnej ręki - salon samochodowy

Kalisz, Wrocławska

OBWIESZCZENIE O SPRZEDAŻY nieruchomości gruntowych w Kaliszu przy ul. Wrocławskiej 89-91/ul. Tylnej 18, zabudowanych salonem samochodowym wraz z częścią warsztatową...

1045 m2
4 100 000 zł
3 923 zł/m2