4 działki z WZ w Koleczkowie

Koleczkowo , Spokojna

Działka
1443 m2

288 600 zł

Treść ogłoszenia

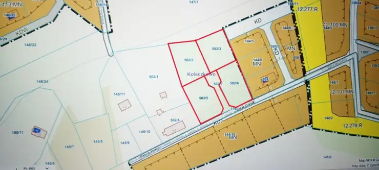
Na sprzedaż 4 pod zabudowę jednorodzinną położone w Koleczkowie, przy ulicy Spokojnej, w powiecie wejherowskim, w gminie Szemud.
Powierzchnie działek:
- nr ewidencyjny 502/6 - pow. 1443 m²,
- nr ewidencyjny 502/5 - pow. 1568 m²,
- nr ewidencyjny 502/3 - pow. 1478 m²,
- nr ewidencyjny 502/2 - pow. 1588 m².
Dojazd do poszczególnych posesji odbywa się drogą wewnętrzną poprzez działkę nr 502/7, w której przyszły nabywca nabędzie udziały w cenie.
Na każdą z działek zostały wydane Warunki Zabudowy, między innymi:
- budynek parterowy z poddaszem użytkowym, bądź nieużytkowym z możliwością podpiwniczenia,
- wysokość budynku max. 9 m,
- dach dwuspadowy, kąt  od 30 do 45 stopni,
- powierzchnia zabudowy -przyjęto do 200 m² .
MEDIA:
-prąd - skrzynka energetyczna na każdej działce,
-wodociąg gminny ok. 300 m od działek,
-możliwość wykopania własnego ujęcia wody.

Ładne widoki, działki w kształcie prostokątów, dojazd drogą utwardzoną.
Łatwy dojazd do Trójmiasta, w pobliżu domy jednorodzinne, sklep, stacja paliw i inne.

Serdecznie zapraszam na prezentację!
Pośrednik odpowiedzialny za realizację umowy upr. zaw. Nr 16346. OFERUJEMY POMOC W UDZIELANIU KREDYTÓW. PORÓWNAJ OFERTĘ 26 BANKÓW. ZADZWOŃ ! !
Lokalizacja
Koleczkowo
pomorskie
Informacje
Powierzchnia: 1443 m2
Numer oferty: EC554866
Ogrodzenie
siatka
Kontakt
Biuro Nieruchomości Gruszka
Mariusz Gruszka
698454484

Podobne oferty

 Koleczkowo

Działka w fantastycznej lokalizacji Koleczkowa

Koleczkowo

Działka o pow.9600m2 w Koleczkowie tuż przy granicy z Bojanem.Fantastycznie usytuowana, z dala od miejskiego zgiełku, blisko głównej drogi a...

9600 m2
1 999 000 zł
208 zł/m2
 Koleczkowo   Wczasowa

Zbuduj dom w malowniczym Koleczkowie.

Koleczkowo, Wczasowa

LOVE AT HOME PREZENTUJE!Z naszym biurem tylko bezpieczna sprawdzona transakcja!Sprawdź opinie o mojej firmie na stronie www.loveathome.plW ofercie sprzedaży urokliwa,...

1360 m2
320 000 zł
235 zł/m2
 Koleczkowo

Atrakcyjna działka o pow. 1895 m² Koleczkowo

Koleczkowo

Na sprzedaż działka budowlana (wydane warunki zabudowy) o powierzchni 1895 m² położona w Koleczkowie, gmina Szemud.Nieruchomość w kształcie rozszerzającego się...

1895 m2
265 000 zł
140 zł/m2