Apartamenty Central Park sauna grota solna

Wrocław

Mieszkanie
41 m2
2 pokoje

719 000 zł

Treść ogłoszenia

2 pokojowego mieszkania zlokalizowanego w renomowanej inwestycji Apartamenty Central Park. To idealne miejsce dla osób chcących mieszkać w centrum tętniącego życiem miasta.

UWAGA! Sprzedaż tej nieruchomości odbywa się w procesie "otwartego ofertowania" czyli składania ofert zakupowych, podana cena jest ceną WYJŚCIOWĄ, którą nie należy się sugerować. Każdy może przyjść na dzień otwarty, zobaczyć nieruchomość i zaoferować swoją cenę zakupu nieruchomości.

Atuty mieszkania na Kępie Mieszczańskiej:
- Lokalizacja w centrum miasta - blisko rynku, Ostrowa Tumskiego i najważniejszych atrakcji Wrocławia.
- Bliskość terenów zielonych - wyspa otoczona Odrą, oferuje promenadę i ścieżki spacerowe.
- Doskonała komunikacja - łatwy dostęp do tramwajów, autobusów oraz głównych arterii drogowych.
-Wysoka wartość inwestycyjna - atrakcyjny rynek najmu i duży potencjał wzrostu cen mieszkań.


Na terenie inwestycji znajduje się
- Siłownia 
- Strefa spa, a w niej: sauna sucha, sauna infrared, łaźnia parowa, tężnia solankowa
- Usługa concierge
- Postarzalnia win dla kolekcjonerów
- Całodobowy monitoring
- Stacja napraw dla rowerów

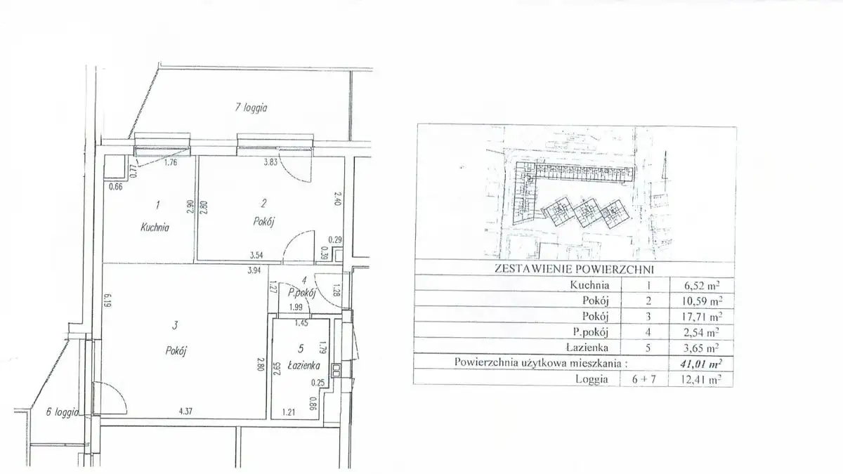
Układ mieszkania
- Salon 17,71m²
- Kuchnia 6,52m²
- Sypialnia 10,59m²
- Łazienka 3,65m² 
- Przedpokój 2,54m² 
- Dwie loggie o łącznej powierzchni 12,41m²

Mieszkanie wyposażone jest w ogrzewanie kanałowe i klimatyzację
Do mieszkania przynależy miejsce postojowe w garażu poziemnym

Dodatkowe informacje:
Osoby zainteresowane ofertą zapraszamy do kontaktu w celu umówienia się na prezentację oraz uzyskania szczegółowych informacji dotyczących nieruchomości.

Jest to świetny wybór zarówno dla osób szukających komfortowego miejsca do życia, jak i inwestorów. Nie zwlekaj - skontaktuj się z nami już dziś!


Michał Cepuch
Tel. 503-365-100



...
Oferta wystawiona przez Biuro nieruchomości Falcon Estate.
Prezentowane w serwisie oferty nie stanowią oferty handlowej w rozumieniu art. 66 Kodeksu Cywilnego i mogą być nieaktualne.
Lokalizacja
Wrocław
dzielnica Stare miasto
dolnośląskie
Informacje
Powierzchnia: 41 m2
2 pokoje
8 pięter w budynku
Rok budowy: 2023
Numer oferty: FE255501
Media
kanalizacja
Wyposażenie
balkon/taras
Kontakt
Falcon Estate
Dawid Sokół
795522532

Podobne oferty

 Wrocław   Poleska

Mieszkanie na sprzedaż

Wrocław, Poleska

Dzień Dobry mam do zaoferowania: Słoneczne dwupokojowe mieszkanie przy ul. Poleskiej we Wrocławiu Opis mieszkania: Na sprzedaż mieszkanie dwupokojowe o...

42 m2
2 pokoje
555 000 zł
13 214 zł/m2
 Wrocław

Nowa inwestycja słoneczne mieszkanie.

Wrocław

Zaufaj mi, jak wielu przed Tobą, a znajdę dla Ciebie nieruchomość Twoich marzeń! Oszczędzę Twój czas, nerwy i bezpiecznie doprowadzę...

28 m2
1 pokój
546 350 zł
19 513 zł/m2
 Wrocław

4 floor panorama miasta Panoramic view balcony

Wrocław

English below Prestiżowa lokalizacja - wieżowiec w samym centrum miasta. Malownicze bulwary Odry, zielone wielopoziomowe tarasy. Panoramiczne widoki na miasto....

71 m2
4 pokoje
1 692 417 zł
23 837 zł/m2