kawalerka z balkonem Podolany

Poznań , Jasielska

Mieszkanie
28 m2
1 pokój

359 647 zł

Treść ogłoszenia

Ogłoszenie sprzedaży 1 pokojowego mieszkania z balkonem w Poznaniu


Zadzwoń i umów się na obejrzenie inwestycji +48798601102




  • Bezpośrednio od dewelopera

  • Brak PCC

  • Bez prowizji





Lokalizacja

Podolany, to lokalizacja zapewniająca bliskość terenów zielonych, a jednocześnie jest dobrze skomunikowana z centrum.


  • autobus - 1 minuta

  • przychodnia - 5 minut

  • tereny zielone - 5 minut

  • szkoła - 5 minut

  • sklepy - 1 minuta




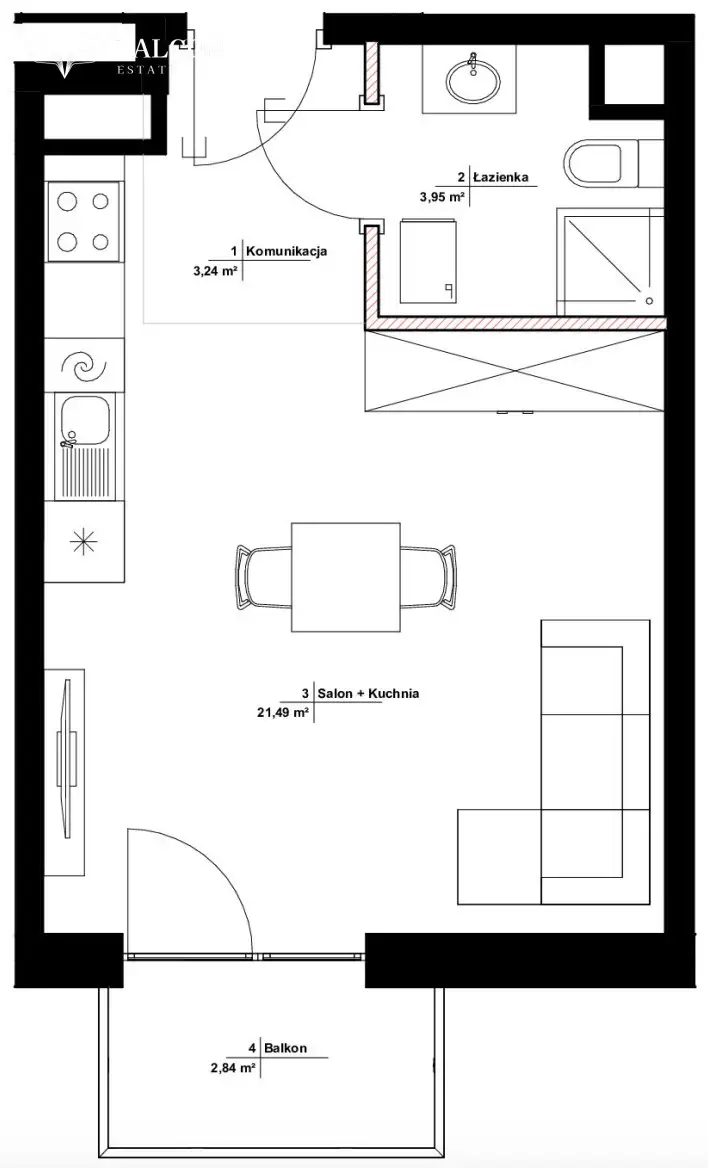
Układ mieszkania




  • Salon + Kuchnia 21,49 m²

  • Przedpokój 3,24 m²

  • Łazienka 3,95 m²

  • Balkon 2,84 m²




w inwestycji



  • windy

  • domofon

  • monitoring

  • wewnętrzny plac zabaw

  • CO miejskie




Mieszkanie będzie oddane do użytku  31.12.2025

Do ceny należy doliczyć miejsce postojowe w hali garażowej.




Spełnij marzenia o nowym mieszkaniu.
Zainteresowany? Zadzwoń , napisz

Monika Skotarczak. +48798601102

ZERO prowizji, brak PCC

...
Oferta wystawiona przez Biuro nieruchomości Falcon Estate.
Prezentowane w serwisie oferty nie stanowią oferty handlowej w rozumieniu art. 66 Kodeksu Cywilnego i mogą być nieaktualne.
Lokalizacja
Poznań
dzielnica Podolany
wielkopolskie
Informacje
Powierzchnia: 28 m2
1 pokoje
5 pięter w budynku
Rok budowy: 2025
Numer oferty: FE515776
Zalety
domofon
Media
kanalizacja
Wyposażenie
balkon/taras
Kontakt
Falcon Estate
Monika Skotarczak
798601102

Podobne oferty

 Poznań   Bukowska

Mieszkanie

Poznań, Bukowska

Sprzedam mieszkanie o powierzchni 45m2 usytowane w okolicy licznych placówek medycznych, przez co mieszkanie może stanowić zakup pod wynajem dla...

45 m2
2 pokoje
650 000 zł
14 444 zł/m2
 Poznań   Aleksandry Bielerzewskiej

Mieszkanie z wykończeniem i sprzętem AGD

Poznań, Aleksandry Bielerzewskiej

Nowe 3-pokojowe mieszkanie z parkingiem | Poznań - ul. BielerzewskiejLokalizacja: Poznań, ul. Aleksandry BielerzewskiejPowierzchnia: ok. 53 m²Pokoje: 3 (salon z...

52 m2
3 pokoje
730 000 zł
14 038 zł/m2
 Poznań   Smolna

Mieszkanie z osobną kuchnią Zamknięte osiedle

Poznań, Smolna

REZERWACJA! Zapraszam po kolejne oferty.Komfortowe, funkcjonalne i nowocześnie wykończone mieszkanie o powierzchni 44 m², położone na 5 piętrze w budynku...

43 m2
2 pokoje
600 000 zł
13 953 zł/m2