M-4 Zawiercie Żabki

Zawiercie , Józefa Piłsudskiego

Mieszkanie
58 m2
3 pokoje

345 000 zł

Treść ogłoszenia

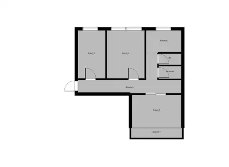
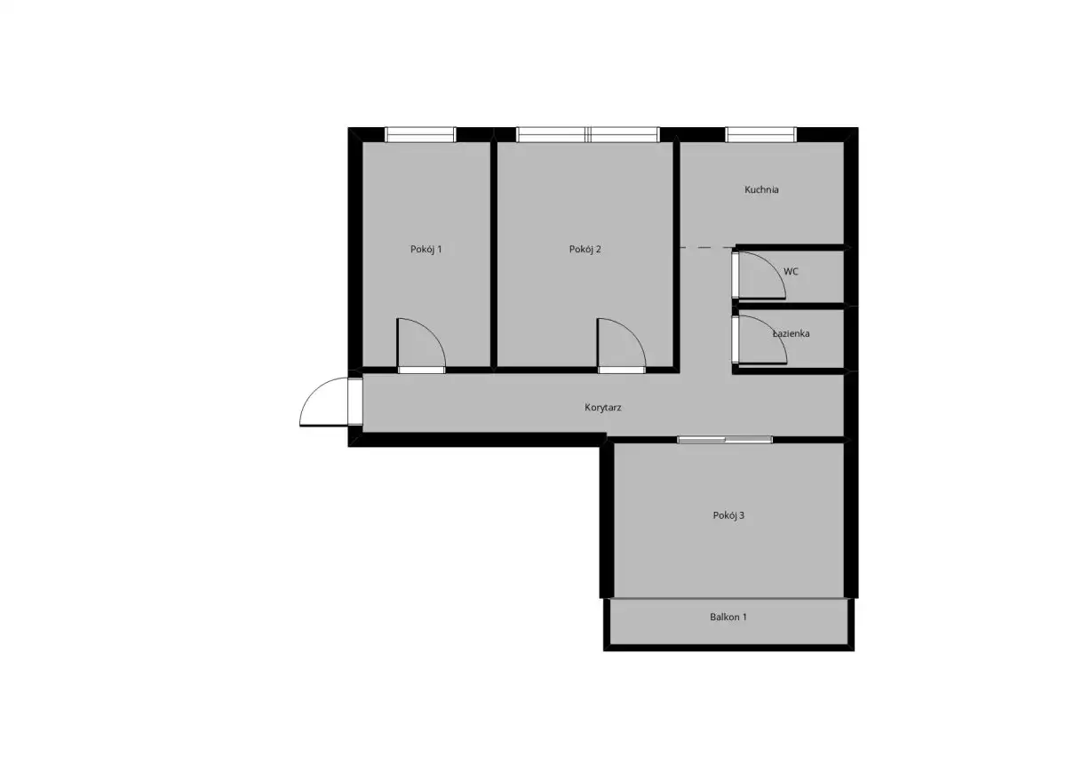
Biuro Nieruchomości Locatus ma przyjemność zaproponować Państwu na sprzedaż mieszkanie M-4 o powierzchni 58,5 m, zlokalizowane na IX piętrze w wieżowcu na osiedlu Żabki w Zawierciu.
 Układ i standard mieszkania :
- trzy ustawne i jasne pokoje
- osobna kuchnia
- łazienka i wc osobno
- balkon z pięknym widokiem
- piwnica
- na podłogach płytki, panele
- okna PCV
Mieszkanie jest do remontu, co daj przyszłemu właścicielowi możliwość dowolnej aranżacji i dostosowania przestrzeni do własnych potrzeb.
Budynek :
- blok po termomodernizacji
- spokojne sąsiedztwo
Lokalizacja :
Nieruchomość znajduje się w bardzo dobrej lokalizacji - w bezpośrednim sąsiedztwie znajdują się szkoły, przedszkola, sklepy oraz przystanki komunikacji miejskiej co zapewnia wygodę codziennego życia.
To idealna propozycja zarówno dla rodzin , jak i inwestorów poszukujących mieszkania do własnej aranżacji.

Serdecznie zapraszam na prezentację

Potrzebujesz pomocy w znalezieniu odpowiedniej formy finansowania zakupu, nasi zaprzyjaźnieni doradcy finansowi pomogą w doborze optymalnej formy kredytowania zakupu nieruchomości dopasowanej do Ciebie.

*Opis oferty zawarty na stronie internetowej sporządzany jest na podstawie oględzin nieruchomości oraz informacji uzyskanych od właściciela, może podlegać aktualizacji i nie stanowi oferty handlowej w rozumieniu art. 66 §1 Kodeksu Cywilnego.
Cicha i spokojna okolica
Lokalizacja
Zawiercie
śląskie
Informacje
Powierzchnia: 58 m2
3 pokoje
10 pięter w budynku
Numer oferty: 346318
Zalety
domofon
Media
kanalizacja
Dodatkowe zalety
piwnica
Wyposażenie
balkon/taras
Kontakt
LOCATUS Sp. z.o.o.
Aneta Skalska
695978141

Podobne oferty

 Zawiercie   Porębska

OGŁOSZENIE O PRZETARGU

Zawiercie, Porębska

Syndyk Moniki Dudek ogłasza przetarg pisemny na: • zbycie prawa własności nieruchomości lokalowej położonej w Zawierciu przy ul. Porębskiej 23...

61 m2
3 pokoje
308 000 zł
5 049 zł/m2
 Zawiercie   Macieja Rataja

Mieszkanie M-3 po Remoncie

Zawiercie, Macieja Rataja

Biuro Nieruchomości LOCATUS ma przyjemność zaproponować ofertę sprzedaży mieszkania M-3 o powierzchni 51m, na 4 piętrze w bloku 4 piętrowym,...

51 m2
2 pokoje
310 000 zł
6 078 zł/m2
 Zawiercie   Parkowa

3 pokoje z balkonem - Parkowa w Zawierciu-parter

Zawiercie, Parkowa

ŚWIETNA LOKALIZACJA UL. PARKOWA, ZAWIERCIE Na sprzedaż mieszkanie o powierzchni 60 m² położone na parterze z balkonem, w doskonałej lokalizacji...

60 m2
3 pokoje
369 000 zł
6 150 zł/m2