Dobra - nowoczesny dom o unikalnej architekturze

Dobra

Dom
170 m2
4 pokoje

1 239 000 zł

Treść ogłoszenia

Na sprzedaż dom w zabudowie bliźniaczej – Twoje miejsce w miejscowości Dobra!

Nieruchomość położona w spokojnej, zielonej okolicy, w otoczeniu nowej zabudowy jednorodzinnej. Idealna propozycja dla rodziny, pary, osób pracujących zdalnie czy inwestora poszukującego domu w świetnej lokalizacji pod wynajem.

Szukasz miejsca, które łączy ciszę i kontakt z naturą z szybkim dojazdem do miasta?

Tutaj znajdziesz ogród , funkcjonalne wnętrza i nowoczesne rozwiązania, które ułatwią codzienne życie.


PODSTAWOWE INFORMACJE

Dom w zabudowie bliźniaczej – 162 m²
Ogród usytuowany na południowej ścianie budynkuDziałka ok. 450 m² (dla każdej połówki)
Sypialnia z prywatnym tarasem4 pokoje (w tym przestronny salon z dwoma wyjściami na ogród + 3 sypialnie)
Otwarta kuchnia + pomieszczenie gospodarcze (spiżarnia)3 łazienkiGaraż z nowoczesnymi przeszkleniami + miejsca parkingowe
Stan: deweloperski
Oddanie: II kwartał 2026


TECHNOLOGIE I INSTALACJE

Ogrzewanie: gazowe (piec dwufunkcyjny)
Woda, gaz i kanalizacja: miejskie
Przygotowanie pod światłowód
Opcja montażu stacji ładowania EV i paneli fotowoltaicznych


LOKALIZACJA – DOBRA

Jedna z najbardziej cenionych podmiejskich lokalizacji w regionie: cisza, zieleń i pełna infrastruktura.
Centrum Szczecina – 10–15 min
Police – 15 min
Jezioro Głębokie (kąpielisko, lasy) – 6 min
W okolicy: szkoły, przedszkola, żłobki, sklepy (Biedronka, Lidl, Netto), przychodnie
Przystanek autobusowy – kilka minut pieszo

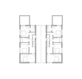
ROZKŁAD POMIESZCZEŃ

Parter:
Salon z jadalnią oraz otwartą kuchnią
Pomieszczenie gospodarczeŁazienkaGarderobaHol i komunikacja
Garaż
Piętro:
Sypialnia z garderobą/łazienką oraz wyjściem na duży taras z bajecznym widokiem
Dwie ustawne sypialnie
Duża łazienka z miejscem na wannę
Komunikacja

Zadzwoń lub napisz – pokażę plany, odpowiem na pytania i umówię prezentację.

Oferta dostępna wyłącznie w Blue Real Estate

Nie czekaj – zarezerwuj swój dom zanim ktoś zrobi to przed Tobą!




Treść niniejszego ogłoszenia nie stanowi oferty handlowej w rozumieniu Kodeksu Cywilnego. Treść ma charakter informacyjny i zalecamy ich osobistą weryfikację.
Bezpłatnie pomagamy w uzyskaniu kredytu.

Ogłoszenie wysłane z programu dla biur nieruchomości ASARI CRM (asaricrm.com)



Lokalizacja
Dobra
zachodniopomorskie
Informacje
Powierzchnia: 170 m2
4 pokoje
1 piętro w budynku
Rok budowy: 2025
Numer oferty: 169/14664/ODS
Okolica
przedszkole
szkoła podstawowa
las
Ogrzewanie
CO gazowe
Dodatkowe zalety
alarm
monitoring
Instalacje
elektryczna
gazowa
wodna
Kontakt
Blue Real Estate Bogacka & Gołębiowska
Michał Gołębiowski
786999903

Podobne oferty

 Dobra

Dobra - dom parterowy

Dobra

Oferta przedsprzedażowa – nowoczesny dom w Dobrej Promocyjna cena obowiązuje tylko do listopada 2025 r. Rezerwacja w pełni zabezpieczona zgodnie...

130 m2
6 pokoi
1 185 000 zł
9 115 zł/m2
 Dobra

Dom na nowym osiedlu przy lesie - już od 669.000zł

Dobra

Top oferta na sprzedaż – kameralne osiedle domów jednorodzinnych pod Szczecinem, w gminie Dobra! Wyłącznie w Blue Real Estate mamy...

98 m2
4 pokoje
799 000 zł
8 153 zł/m2
 Dobra

Dom jednorodzinny Dobra Wołczkowo

Dobra

Na sprzedaż nowoczesny dom w zabudowie bliźniaczej zlokalizowany w miejscowości Dobra (tuż przy Wołczkowie), na granicy Szczecina. Dom znajduje się...

102 m2
5 pokoi
829 000 zł
8 127 zł/m2