Ruczaj 3-pokojowe z klimatyzacją i ogródkiem 90m²

Kraków , Jana Kantego Federowicza

Mieszkanie
54 m2
3 pokoje

834 024 zł

Treść ogłoszenia

Zakup mieszkania bez prowizji i podatku pcc.
Inwestycja jest gotowa, zapraszam na prezentację.


Oferuję do sprzedaży gotowe mieszkanie 3-pokojowe w 2-piętrowym budynku z windą zlokalizowanym na Ruczaju z doskonałą infrastrukturą.
Inwestycja ulokowana jest na kameralnym i cichym osiedlu z wygodnym dojazdem do pozostałych dzielnic Krakowa.
Budynki cechują się przemyślanym i spójnym projektem z zadbaną zielenią w częściach wspólnych.


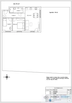
Mieszkanie znajduje się na parterze. Lokal ma powierzchnię 54,75 m i składa się z:

- salonu z aneksem kuchennym
- sypialni
- sypialni
- łazienki
- przedpokoju
- ogródka 90 m²


Mieszkanie jest w stanie deweloperskim, do własnej aranżacji*
*Współpracujemy z renomowanymi firmami wykończeniowymi. Zachęcamy do skorzystania z bezpłatnej konsultacji z projektantem wnętrz.


Dodatkowe informacje dotyczące mieszkania oraz całej inwestycji:

- w każdym mieszkaniu ogrzewanie podłogowe we wszystkich pomieszczeniach, brak grzejników
- klimatyzacja wraz z jednostkami zewnętrzną oraz wewnętrzną w salonie
- ekspozycja wschód-północ
- cichobieżna winda w budynku
- okna 3-szybowe z filtrami antysmogowymi
- plac zabaw na terenie osiedla
- pierwszorzędny standard wykończenia części wspólnych z użyciem wysokiej jakości materiałów budowlanych
- w garażu podziemnym nie ma platform, wszystkie miejsca są wyznaczone na płycie garażowej
- osiedle monitorowane


Lokalizacja:

- doskonały dostęp do komunikacji miejskiej (200 m do przystanku autobusowego "Bunscha", 1 przystanek autobusowy do zajezdni tramwajowo-autobusowej "Czerwone Maki")
- w pobliżu liczne supermarkety - Lidl, Market Point, kompleks handlowy Atut Czerwone Maki, siłownia a także restauracje,
- 4 przystanki komunikacją miejską do Kampusu UJ
- w sąsiedztwie tereny zielone oraz rekreacyjne
- cicha i spokojna okolica, w sąsiedztwie niska zabudowa mieszkalna
- w okolicy bogate zaplecze dydaktyczne - żłobki i przedszkola, szkoła podstawowa




Do każdego mieszkania przynależy miejsce postojowe w garażu podziemnym - zakup obligatoryjny (ceny od 44 000 zł).


Nasi eksperci finansowi z Power Finance chętnie pomogą w uzyskaniu najlepszego kredytu na rynku.


Przedstawiona oferta ma charakter informacyjny i nie stanowi oferty handlowej w rozumieniu Art.66 par.1 Kodeksu Cywilnego.


W razie dodatkowych pytań pozostaję do dyspozycji.
Angelina Rojkowicz





Ogłoszenie wysłane z programu dla biur nieruchomości ASARI CRM (asaricrm.com)



Lokalizacja
Kraków
dzielnica Ruczaj
małopolskie
Informacje
Powierzchnia: 54 m2
3 pokoje
2 piętra w budynku
Rok budowy: 2024
Numer oferty: 27289/7649/OMS
Garaż
miejsce parkingowe
Zalety
domofon
teren ogrodzony
Okolica
centrum handlowe
przedszkole
plac zabaw
szkoła podstawowa
restauracja
kościół
Kuchnia
w aneksie
Przeznaczenie
mieszkalny
Dodatkowe zalety
monitoring
Kontakt
POWER HOLDING Sp. z o.o.
Angelina Rojkowicz
+48 575 222 841

Podobne oferty

 Kraków   Rydlówka

Mieszkanie Kraków rynek pierwotny

Kraków, Rydlówka

Zamieszkaj tuż nad rzeką i poczuj dokąd płynie miasto. Prezentowane mieszkanie 3 pokojowe o łącznej powierzchni 50 m2 z przynależnym...

50 m2
3 pokoje
946 323 zł
18 926 zł/m2
 Kraków   Magnolii

3 pokojowe mieszkanie z ogródkiem. Ruczaj.

Kraków, Magnolii

Posiadam na sprzedaż mieszkanie trzypokojowe z ogródkiem.  Lokalizacja i udogodnienia: Inwestycja znajduje się przy ul. Magnolii Udogodnienia: winda, wyjątkowa lokalizacja...

57 m2
3 pokoje
857 400 zł
15 042 zł/m2
 Kraków   Turniejowa

Mieszkanie 3-pokojowe na Turniejowej

Kraków, Turniejowa

Przedstawiam Państwu ofertę nowoczesnego mieszkania o powierzchni 61,63 m², znajdującego się na 7. piętrze 10-piętrowego budynku z 2023 roku. To...

61 m2
3 pokoje
861 940 zł
14 130 zł/m2