Na wynajem hala magazynowa 348m²

Lublin

Komercyjne
348 m2

5 200 zł

Treść ogłoszenia

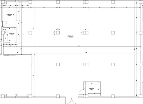
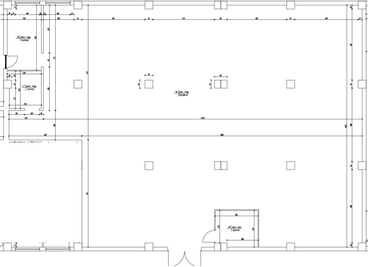
Na wynajem hala magazynowa o powierzchni 348 m² idealna na potrzeby składu lub powierzchni magazynowej. Wysokość hali:4,5 m. Nieruchomość położona w dzielnicy Wrotków z bezpośrednim dojazdem z drogi głównej , ogrodzona.

Główne cechy obiektu:
- wysokość hali 4,5 m 
- powierzchnia całkowita 348 m²
- rampa do załadunku 
- pomieszczenie socjalne ok. 12 m²

Media :
- prąd: podlicznik,
- ogrzewanie: hala jest nieogrzewana (zaplecze socjalne ogrzewanie na prąd lub alternatywne)

Cena najmu:5200 złotych netto 
Dodatkowo opłata za prąd.
Umowa na czas nieokreślony.
Kaucja:2 miesięczny czynsz.

Do wynajęcia także lokale biurowe o różnym standardzie.Zlokalizowane w bezpośrednim sąsiedztwie hali magazynowej.
Od 10 do 30 m². 

Ofertę przygotowała  i prezentuje: Justyna Kaliszyk-Kociuba 

Treść niniejszego ogłoszenia nie stanowi oferty handlowej w rozumieniu Kodeksu Cywilnego, ale jest zaproszeniem do współpracy. Zespół ekspertów z Franczewska Nieruchomości dokłada starań, aby każda z ofert była rzetelnie sprawdzona oraz aktualna.
Jako agencja nieruchomości pobieramy za usługę pośrednictwa wynagrodzenie.
Usługa jest wykonywana w profesjonalny sposób i zapewnia Państwu pełne bezpieczeństwo. Więcej unikalnych ofert w podobnych kryteriach znajdą Państwo na naszej stronie.

Pod działalność gospodarczą
Lokalizacja
Lublin
dzielnica Wrotków
lubelskie
Informacje
Powierzchnia: 348 m2
Numer oferty: 861247
Ogrodzenie
siatka
Dojazd
asfalt
Kontakt
FRANCZEWSKA NIERUCHOMOŚCI ADRIANNA FRANCZEWSKA-KRUPA SPÓŁKA KOMANDYTOWA
Justyna Kaliszyk-Kociuba
730 089 988

Podobne oferty

 Lublin

Lokal użytkowy o pow. 148 46 m²Śródmieście

Lublin

Oferuję do wynajęcia lokal użytkowy o powierzchni użytkowej 148,46 m2 (całkowitej 177,42 m2) znajdujący się na niskim parterze biurowca zlokalizowanego...

177 m2
1 pokój
7 400 zł
42 zł/m2
 Lublin

Lokal 80 m² Centrum 2800 netto

Lublin

Oferujemy Państwu Lokal do wynajęcia o pow. 80 m2 w dzielnicy Śródmieście. Lokal umiejscowiony jest na parterze w zadbanym budynku...

80 m2
5 pokoi
2 800 zł
35 zł/m2
 Lublin

Lokal na wynajem Al. Kraśnicka

Lublin

Polecam na wynajem lokal usługowy o pow. 200 m2. zlokalizowany na pierwszym piętrze w budynku wolnostojącym przy Al. Kraśnickiej w...

200 m2
4 000 zł
20 zł/m2