Kaszuby Zdunowice działka na sprzedaż.

Zdunowice

Działka
1783 m2

249 620 zł

Treść ogłoszenia

Na sprzedaż malownicza działka o pow. 1783 m kw. (nr z ewidencji gruntów 52/6 i 52/7), położona w sercu Kaszub, w miejscowości Zdunowice, gm. Sulęczyno przy lesie, blisko jeziora Gostkowo i 2 km od Kamienne Kręgi - Węsiory.

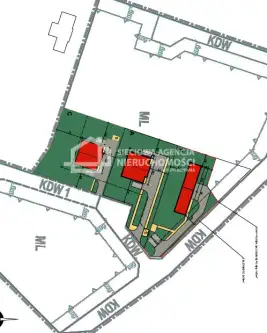
Idealna oferta pod inwestycję lub na wynajem  - z możliwością postawienia około 6 domków rekreacyjnych bądź domów w zabudowie bliźniaczej i domu wolnostojącego (koncepcja w zdjęciach).

Działka położona blisko lasu i jeziora Gostkowo ( jest własnością Skarbu Państwa), w cichym miejscu, z szybkim dostępem do kaszubskich jezior i atrakcji turystycznych.

Na tym terenie obowiązuje miejscowy plan zagospodarowania przestrzennego MPZP - przeznaczenie pod zabudowę letniskową parterową z poddaszem użytkowym, dach dwuspadowy lub wielospadowy o nachyleniu od 30 do 45 stopni, powierzchnia zabudowy do 150 m kw, szerokość elewacji frontowej do 16 m, dopuszczalna wysokość do 8 m.

Media: skrzynka energetyczna na działce, zaopatrzenie w wodę z własnego ujęcia.

Dogodny dojazd drogą gminną utwardzoną.

Istnieje możliwość zakupu działki sąsiedniej o pow. 1589 m kw.

Zdunowice to letniskowa wieś kaszubska w gminie Sulęczyno, w pobliżu jeziora, lasy, szlaki piesze, rowerowe, do Gdańska 70 km, do Kościerzyny 20 km, Sulęczyno 6 km.

Idealna oferta dla inwestorów szukających terenu pod domki letniskowe na wynajem, dla rodzin marzących o własnym domku letniskowym na Kaszubach, dla osób ceniących ciszę, naturę i wypoczynek z dala od miasta.

Nie przegap okazji - działki w tej lokalizacji rzadko trafiają na rynek, zadzwoń tel. 668861312

"Wszystkie przedstawione powyżej informacje dotyczące nieruchomości oraz wskazane ceny mają jedynie charakter informacyjny (poglądowy) i nie stanowią oferty handlowej w rozumieniu art. 66 par. 1 Kodeksu Cywilnego"













 
Lokalizacja
Zdunowice
pomorskie
Informacje
Powierzchnia: 1783 m2
Numer oferty: DJ891073
Ogrodzenie
brak
Kontakt
SIECIOWA AGENCJA NIERUCHOMOŚCI DJ Renoma
Wioletta Jóźwiak
668861312