Mieszkanie 3 pokojowe na 5 piętrze7

Lublin

Mieszkanie
49 m2
3 pokoje

529 864 zł

Treść ogłoszenia

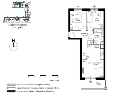
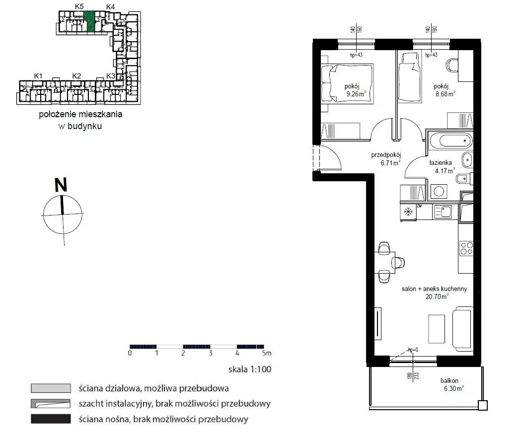
Trzypokojowe mieszkanie o powierzchni projektowej 49,52 m² na 5 piętrze w 7 piętrowym bloku na Czechowie.

Opis mieszkania:
Pokój dzienny z aneksem kuchennym o pow. 20,70 m² z wyjściem na balkon o pow. 6,30 m²,
Pokój o pow. 9,26 m² i 8,68 m²,
Łazienka o pow. 4,17 m²
Przedpokój o pow. 6,71 m²

Dodatkowe informacje:
Miejsce postojowego w garażu podziemnym w cenie 45 000 zł.
Komórka lokatorska na piętrzę 

MEDIA:
ogrzewanie sieć miejska, woda, prąd

Atuty inwestycji:
- nowoczesna architektura, technologia i ergonomiczne rozwiązanie,
- bliskość przyrody,
- plac zabaw,
- komunikacja,
- wewnętrzne patio,

Lokalizacja: bardzo dobrze rozwinięta infrastruktura osiedla, w pobliżu uczelnie wyższe, szkoły, przedszkola, żłobki, sklepy spożywcze, galerie handlowe, przychodnie lekarskie, przystanki autobusowe.

*jeśli potrzebujesz pomocy eksperta w dobraniu finansowania zakupu nieruchomości, skontaktuj się z opiekunem oferty.

Termin realizacji: grudzień 2026

Ofertę przygotowała i prezentuje:
Patrycja Czarnik 791689906
Licencjonowany Pośrednik Nieruchomości
Franczewska Nieruchomości

Zapraszam do kontaktu oraz na prezentację nieruchomości!

Treść niniejszego ogłoszenia nie stanowi oferty handlowej w rozumieniu Kodeksu Cywilnego, ale jest zaproszeniem do współpracy. Dokładamy wszelkich starań, aby każda z ofert była rzetelnie sprawdzona oraz aktualna.
W ofercie nie są przedstawione koszty obsługi transakcji, która wykonywana jest w profesjonalny sposób i zapewnia Państwu pełne bezpieczeństwo. Więcej unikalnych ofert w podobnych kryteriach znajdą Państwo na naszej stronie.
Lokalizacja
Lublin
dzielnica Czechów górny
lubelskie
Informacje
Powierzchnia: 49 m2
3 pokoje
7 pięter w budynku
Rok budowy: 2026
Numer oferty: 543627079
Wyposażenie
balkon/taras
Kontakt
FRANCZEWSKA NIERUCHOMOŚCI ADRIANNA FRANCZEWSKA-KRUPA SPÓŁKA KOMANDYTOWA
Patrycja Czarnik
791 689 906

Podobne oferty

 Lublin   Kwarcowa

Nowe 2 pokoje Czuby Węglinek

Lublin, Kwarcowa

2 pokojowe mieszkanie o powierzchni 33 m2, w nowym bloku z 2022 roku, wykończone i wyposażone, na 2 piętrze z...

33 m2
2 pokoje
478 000 zł
14 485 zł/m2
 Lublin

Trzy pokoje balkon piwnica Czuby

Lublin

Oferta dostępna wyłącznie za pośrednictwem Franczewska NieruchomościPrzestronne, trzypokojowe mieszkanie o pow. 66,90m2 na wysokim parterze / z III w bloku...

66 m2
3 pokoje
589 000 zł
8 924 zł/m2
 Lublin

Mieszkanie 4 pokoje Konstantynów

Lublin

Na sprzedaż 4 pokojowe mieszkanie o pow. użytkowej 78,96 m2 znajdujące się w dzielnicy Konstantynów Na nieruchomość składają sie:- pokój...

78 m2
4 pokoje
899 000 zł
11 526 zł/m2