Magazyn na wynajem Gdańsk Trakt Św.Wojciecha

Gdańsk

Komercyjne
710 m2

27 000 zł

Treść ogłoszenia

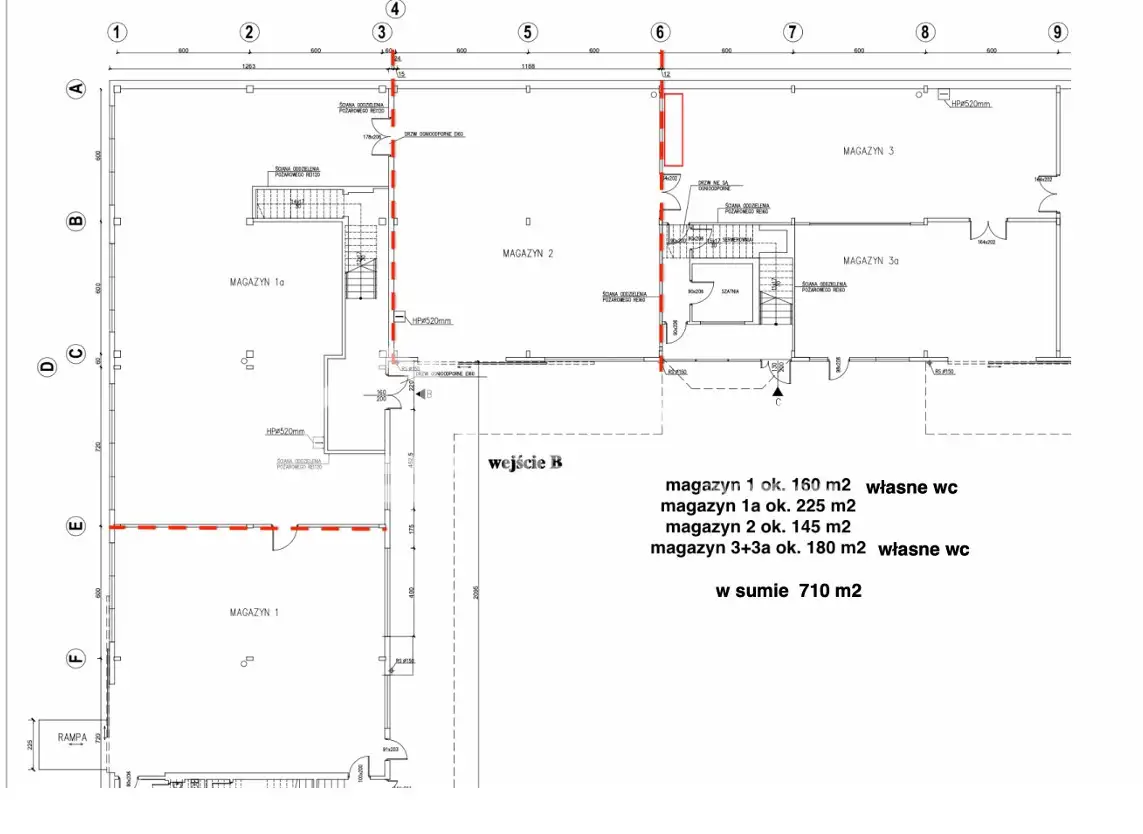
Magazyn na wynajem o powierzchni 710m² Gdańsk Orunia Trakt Św. Wojciecha

Dostępny Od 01 lutego 2026 roku.
Wysokość hali 4 metry. Posadzka antystatyczna. Ogrzewany i w części klimatyzowany. 
Istnieje możliwość podziału i wynajmu na mniejsze.
(160m², 225m², 145m²,180m² )
Dogodny dojazd TIR do obwodnicy.
Miejsca parkingowe.

Cena  27.000 netto 

Więcej informacji u Agenta prowadzącego,
Anna Rachoń
tel. 668 862 853
zapraszam na prezentację.


Lokalizacja
Gdańsk
dzielnica Orunia
pomorskie
Informacje
Powierzchnia: 710 m2
2 piętra w budynku
Numer oferty: DJ736673
Kontakt
SIECIOWA AGENCJA NIERUCHOMOŚCI DJ Renoma
Anna Rachoń
668862853

Podobne oferty

 Gdańsk

biuro na wynajem Gdańsk Wrzeszcz

Gdańsk

Biuro do wynajmu o powierzchni 40m2 Gdańsk Wrzeszcz.Pomieszczenie biurowe składa się z dwóch pokoi,W podstawowym standardzie. Ogólnodostępne toalety usytuowane na...

40 m2
2 000 zł
50 zł/m2
 Gdańsk

Biuro lub gabinet Gdańsk - Chełm

Gdańsk

Lokal użytkowy o pow. 120 mkw Gdańsk-Chełm.Lokal komercyjny z przeznaczeniem na placówkę banku, gabinet, biuro, kancelarię, usługi, handel.Dwupoziomowy lokal znajduje...

120 m2
6 000 zł
50 zł/m2
 Gdańsk

Halamagazyn z biurami na wynajem Gdańsk-Kokoszki

Gdańsk

Na wynajem obiekt 894m2 Gdańsk-Kokoszki.Nieruchomość o powierzchni całkowitej 894 m2.Na całość budynku składa się powierzchnia: magazynowa 400m2,biurowa 300 m2,oraz całe...

894 m2
19 000 zł
21 zł/m2