NoweDo własnej aranżacjiSpokojna okolicaGaraż

Warszawa

Mieszkanie
36 m2
2 pokoje

519 000 zł

Treść ogłoszenia

MDP Partners przedstawia:
Wyjątkowa Oferta!

Przestronne, jasne i funkcjonalne 2-pokojowe mieszkanie o powierzchni 36,98m² + balkon 4,57m², zlokalizowane na warszawskiej Białołęce.

Kameralne, spokojne i nowe osiedle z niską zabudową z 2025r

O MIESZKANIU
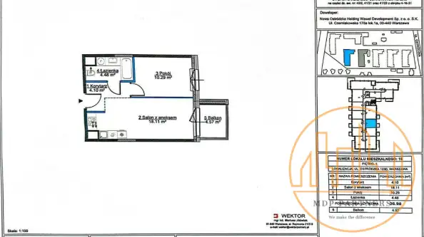
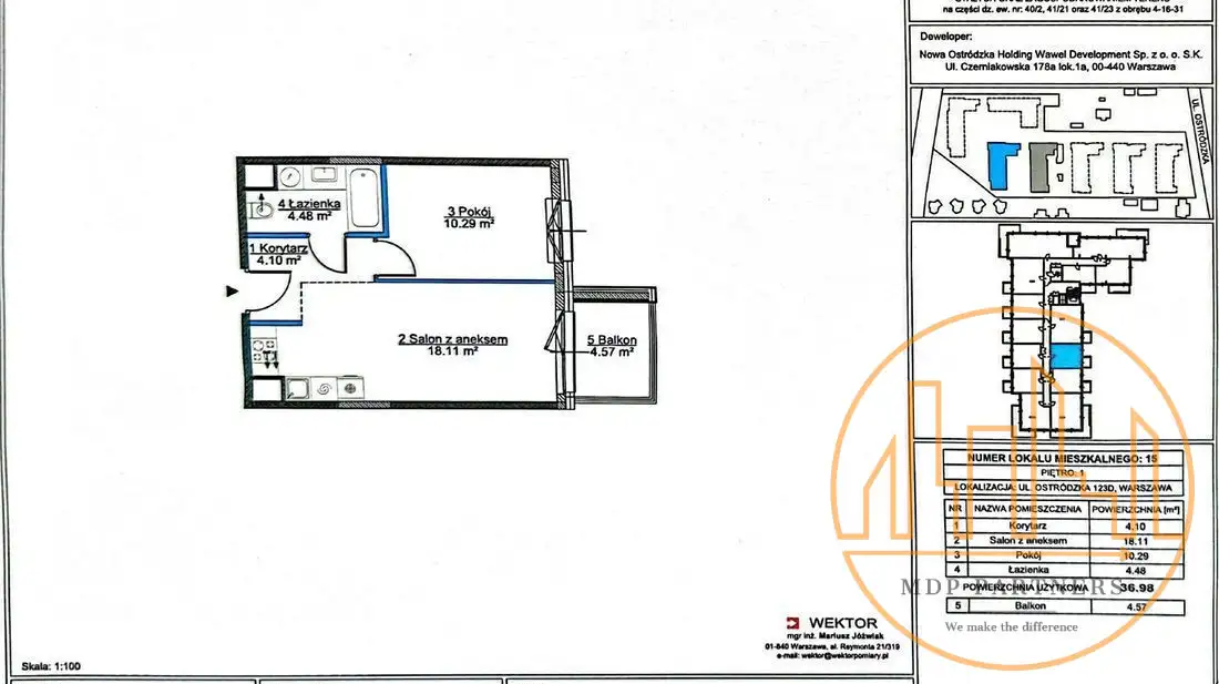
Mieszkanie znajduje się na 1-piętrze i składa się z:
✅ Przestronnego salonu połączonego z aneksem kuchennym (18,11 m²),
✅ Sypialni (10,29 m²),
✅ Łazienki (4,48 ²m) ,
✅ Przedpokoju (4,20 m²),
✅ Balkonu, idealnego na poranną kawę (4,57 m²).
---------------------------------------------------------
Rozkład pokoi zapewnia dużą prywatność i komfort mieszkania.

Dodatkowe udogodnienia:
*Miejsce parkingowe w garażu podziemnym (w cenie 40.000PLN)

Mieszkanie zostało już oddane do użytkowania jest gotowe do wykończenia i urządzenia według własnych potrzeb

Dzięki dużym oknom wnętrza są dobrze doświetlone.

Czynsz - 500zł

Mieszkanie sprzedawane w formie cesji praw z umowy deweloperskiej.


OKOLICA
Wszystkie potrzebne punkty w okolicy. Bliskość trasy S8 gwarantuje szybki i łatwy dostęp do innych części miasta. Okolica bardzo spokojna i zagospodarowana zielenią. Piękne tereny gdzie możesz spacerować, jeździć na rowerze czy po prostu cieszyć się spokojem natury.

Cena do negocjacji!

Zapraszamy do kontaktu i na prezentację:
Jakub Karwowski | MDP Partners

MDP Partners oferuje nabywcom obsługę prawną transakcji i jej bezpieczną finalizację, oraz pomoc w sfinansowaniu każdego rodzaju nieruchomości.
Lokalizacja
Warszawa
dzielnica Białołęka brzeziny
mazowieckie
Informacje
Powierzchnia: 36 m2
2 pokoje
4 piętra w budynku
Rok budowy: 2025
Numer oferty: 835373
Zalety
domofon
Media
kanalizacja
Wyposażenie
balkon/taras
Kontakt
MDP Partners
Jakub Karwowski
531 620 270

Podobne oferty

 Warszawa

M-2Saska Kępa P. SkaryszewskiStadion Narodowy

Warszawa

MDP Partners zaprasza do zakupu 2 pokojowego mieszkania w rewelacyjnej lokalizacji ,blisko Parku Skaryszewskiego i klimatycznej Saskiej Kępy  z widokiem...

37 m2
2 pokoje
640 000 zł
17 297 zł/m2
 Warszawa

nowe studio ponad dachami Warszawy balkon metro

Warszawa

for EN plese scroll down  Zapraszam do telefonicznego umawiania wizyt, także w dniu otwartym. Kupujący nie płacą prowizji! Nowe, w...

41 m2
1 pokój
815 000 zł
19 878 zł/m2
 Warszawa

Blisko Metra i Tramwaju Widok na zieleń

Warszawa

MDP Partners przedstawia:Na sprzedaż -  2-pokojowe mieszkanie w zadbanym budynku z windą. Zlokalizowane na warszawskim MokotowieTo idealna propozycja dla singla,...

44 m2
2 pokoje
690 000 zł
15 682 zł/m2