LOKAL NA WYNAJEM W STARYM SĄCZU

Stary sącz

Komercyjne
50 m2

4 000 zł

Treść ogłoszenia

Biuro KLIMCZAK Nieruchomości ma przyjemność przedstawić ofertę wynajmu atrakcyjnego lokalu użytkowego, zlokalizowanego w miejscowości Barcice !

Oferujemy wynajem nowoczesnego lokalu przystosowanego do prowadzenia działalności medycznej, idealnego dla lekarzy specjalistów, stomatologów, fizjoterapeutów oraz innych usług medycznych. Lokal sprawdzi się również dla działalności związanych z urodą i rekreacją, takich jak kosmetologia, fryzjerstwo, salony SPA, masaże, manicure & pedicure, a także studia fitness, jogi czy treningów personalnych. Dodatkowo istnieje możliwość wynajęcia lokalu pod usługi biurowe, takie jak biura rachunkowe, księgowe, geodezyjne oraz inne działalności administracyjne i usługowe.

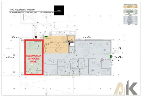
Lokal o powierzchni 211 m² znajduje się na pierwszym piętrze nowoczesnego budynku w centrum Barcic. To idealne miejsce dla większych placówek medycznych, które potrzebują przestrzeni dopasowanej do kompleksowych usług zdrowotnych, jak również dla mniejszych gabinetów i usług specjalistycznych, które mogą wynająć powierzchnie od 50 do 70 m².

Dodatkowo istnieje możliwość wynajmu dodatkowych powierzchni magazynowych o powierzchni około 200 m², znajdujących się w tym samym budynku. To doskonałe rozwiązanie dla firm biurowych lub usługowych, które potrzebują przestrzeni do przechowywania dokumentów, materiałów lub sprzętu, bez konieczności poszukiwania oddzielnego magazynu poza lokalizacją biura.

SZCZEGÓŁY OFERTY:



  • powierzchnia - 211 m² (możliwość wynajmu pod mniejsze gabinety o pow. 50/60/70 m²)

  • lokalizacja - I. piętro budynku

  • potencjalne przeznaczenie - działalność medyczna (np. przychodnia, gabinety lekarskie, stomatologia, fizjoterapia, rehabilitacja) oraz usługi związane ze zdrowiem i urodą (np. kosmetologia, fryzjerstwo, SPA, masaż, manicure & pedicure) i sportowa (np. fitness, joga, treningi personalne)

  • Możliwość wynajmu również pod działalność biurową (biura rachunkowe, księgowe, geodezyjne itp.).

  • stawka ofertowa najmu do propozycji



WARUNKI NAJMU:

  • Minimalny okres najmu - 5 lat.

  • Forma najmu - umowa długoterminowa.

  • Stan techniczny - lokal w bardzo dobrym stanie, możliwość adaptacji pod potrzeby najemcy.

  • Media - wszystkie media dostępne, rozliczenia według zużycia.



LOKALIZACJA:
Barcice to rozwijająca się okolica z rosnącym zapotrzebowaniem na usługi z zakresu zdrowia, rekreacji i sportu. Dogodny dojazd i dostęp do miejsc parkingowych.

Zapraszamy do kontaktu, celem uzyskania dodatkowych informacji i umówienia prezentacji!!
Anna Klimczak
Tel.: +48 789 454 842
KLIMCZAK NIERUCHOMOŚCI
Biuro sprzedaży: ul. Jagiellońska 48/2, Nowy Sącz
e-mail: [Email protected]


Opis oferty zawarty na stronie internetowej sporządzany jest na podstawie oględzin nieruchomości oraz informacji uzyskanych od właściciela, może podlegać aktualizacji i nie stanowi oferty określonej w art. 66 i następnych K.C.
Lokalizacja
Stary sącz
małopolskie
Informacje
Powierzchnia: 50 m2
1 piętro w budynku
Rok budowy: 2025
Numer oferty: KN722850534
Kontakt
KLIMCZAK NIERUCHOMOŚCI ANNA KLIMCZAK
Anna Klimczak
789454842

Podobne oferty

 Stary sącz   Os. Słoneczne

Lokal handlowo- usługowy na wynajem- Stary Sącz

Stary sącz, Os. Słoneczne

Przedmiotem najmu jest lokal handlowo- usługowy   o powierzchni 122 m2 znajdujący się w Starym Sączu os. Słoneczne.Nieruchomość zlokalizowana przy  świetnie...

122 m2
3 500 zł
29 zł/m2
 Stary sącz

LOKAL NA WYNAJEM W STARYM SĄCZU

Stary sącz

Biuro KLIMCZAK Nieruchomości ma przyjemność przedstawić ofertę wynajmu atrakcyjnego lokalu użytkowego, zlokalizowanego w miejscowości Barcice!Oferujemy wynajem nowoczesnego lokalu przystosowanego do...

50 m2
4 000 zł
80 zł/m2
 Stary sącz

LOKAL NA WYNAJEM W STARYM SĄCZU

Stary sącz

Biuro KLIMCZAK Nieruchomości ma przyjemność przedstawić ofertę wynajmu atrakcyjnego lokalu użytkowego, zlokalizowanego w miejscowości Barcice!Oferujemy wynajem nowoczesnego lokalu przystosowanego do...

50 m2
4 000 zł
80 zł/m2