3 pokoje z balkonem Sienkiewicza Rzeszów

Rzeszów , H. Sienkiewicza

Mieszkanie
53 m2
3 pokoje

489 000 zł

Treść ogłoszenia

Licencjonowane biuro Nieruchomości WMS ma przyjemność przedstawić Państwu na sprzedaż mieszkanie o powierzchni 53 m² zlokalizowane na parterze w bloku z windą. Mieszkanie składa się z trzech pokoi, oddzielnej kuchni, łazienki, osobnej toalety oraz balkonu typu loggia.
Dodatkowo do mieszkania przynależy piwnica oraz komórka.Ogrzewanie mieszkania zapewnia centralne ogrzewanie miejskie, a ciepłą wodę dostarcza wodociąg miejski. Czynsz wynosi zaledwie 650 złotych.
Mieszkanie wymaga remontu, co daje przyszłemu nabywcy możliwość aranżacji wnętrza według własnych preferencji. Doskonała lokalizacja oraz funkcjonalny układ pomieszczeń sprawiają, że to idealna propozycja dla rodzin z dziećmi czy osób poszukujących wygodnej przestrzeni do życia.

To świetna okazja, aby spełnić marzenia o własnym, nowym mieszkanie w centrum miasta!

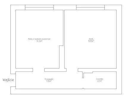
Układ mieszkania:
- 2 pokoje
- salon z balkonem
- łazienka
- WC
- kuchnia
- przedpokój

Do mieszkania przynależy dodatkowo:
- komórka na tym samym piętrze
- piwnica

W najbliższym otoczeniu Galeria Rzeszów, dworzec Rzeszów Główny

Cena nieruchomości: 489 000 zł do negocjacji!

Zainteresowany?
Nie zwlekaj i umów się na prezentację, zanim ktoś Cię ubiegnie!
W razie jakichkolwiek pytań zapraszam do kontaktu.
Pobieramy wynagrodzenie za sprzedaż nieruchomości.

Opiekun oferty :
Katarzyna Koryl
tel:885 025 377
e-mail: [Email protected]
NIERUCHOMOŚCI WMS
tel. 606 106 968
www.nieruchomosciwms.pl
Niniejsze ogłoszenie nie stanowi oferty w rozumieniu przepisów Kodeksu Cywilnego oraz innych właściwych przepisów prawnych, a dane w niej zawarte mają jedynie charakter informacyjny.


::oferta eksportowana z programu mediaRent::
Lokalizacja
Rzeszów
podkarpackie
Informacje
Powierzchnia: 53 m2
3 pokoje
Rok budowy: 1972
Numer oferty: 70/AWM/MS-321
Dodatkowe zalety
meble
Wyposażenie
lodówka
balkon/taras
Kontakt
Nieruchomości WMS
Katarzyna Koryl
885 025 377

Podobne oferty

 Rzeszów   Miejska

Mieszkanie 5 pokoi 96m² Budziwój Rzeszów

Rzeszów, Miejska

Licencjonowane Biuro Nieruchomości WMS ma przyjemność zaprezentować piękne i funkcjonalne, bezczynszowe mieszkanie na Osiedlu Budziwój. Nowe budownictwo, duża powierzchnia użytkowa...

96 m2
5 pokoi
699 000 zł
7 281 zł/m2
 Rzeszów   Al. Józefa Piłsudskiego

Gotowiec inwestycyjny w Śródmieściu Rzeszów

Rzeszów, Al. Józefa Piłsudskiego

W ofercie licencjonowanego biura Nieruchomości WMS na sprzedaż komfortowe i zadbane mieszkanie 2-pokojowe o powierzchni 46,70m2, zlokalizowane w ścisłym centrum...

46 m2
2 pokoje
510 000 zł
11 087 zł/m2
 Rzeszów   Hetmańska

Mieszkanie

Rzeszów, Hetmańska

Sprzedam mieszkanie 46,29 m przy ulicy Hetmańskiej w Rzeszowie, dzielnicy Śródmieście. Mieszkanie składa się z pokoju z aneksem kuchennym, sypialni,...

46 m2
2 pokoje
510 000 zł
11 087 zł/m2