Dom z zabudowie szeregowej 220m² - Turka - Zamiana

Turka

Dom
220 m2
5 pokoi

949 000 zł

Treść ogłoszenia

Na sprzedaż Dom z 2012 roku w zabudowie szeregowej zlokalizowany w miejscowości Turka osiedle Borek.
Możliwa zamiana za mieszkanie w Lublinie/Turce z dopłatą.
Powierzchnia całkowita : około 220m²
Powierzchnia użytkowa: 132,52m²
Technika budowy :

Murowany - Ściany zewnętrzne z gazobetonu 24cm docieplone styropianem 12cm
Dach pokryty dachówką ocieplony pianą oraz wełną akustyczną 23cm
W skład nieruchomości wchodzą:
Poziom 0 :

- Garaż dwustanowiskowy ocieplony (36,34m²)
- Pomieszczenie gospodarcze (10,98m²)
- Pomieszczenie gospodarcze (11,22m²)
- Pomieszczenie gospodarcze (11m²)
- Łazienka
Poziom 1 :
- Salon (35,20m²) z aneksem kuchennym (13,55m²)
- Łazienka (3,67m²)
- Wiatrołap (1,44m²)
- Przedpokój
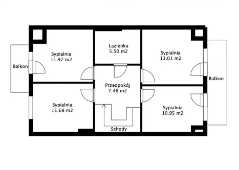
Poziom 2 :
-Sypialnia z szafą w zabudowie (9,77m²) i wyjściem na balkon
-Sypialnia (12,23m²) z wyjściem na balkon
-Sypialnia (10,06m²)
-Sypialnia (11,31m²) z wyjściem na balkon
- Łazienka (5,55m²)
- Przedpokój z szafą w zabudowie (7,48m²)
Dodatkowe informacje :
- W salonie znajduje się kominek opalany drzewem z rozprowadzeniem ciepła bezpośrednio do każdego z pokoi.
- W każdym pokoju wyjścia internetowe + TV oraz wyjścia na centralny odkurzacz.
- Ogrzewanie podłogowe strefowe w łazienkach, kuchni oraz przedpokoju
- Ogrzewanie strefowe z pieca gazowego sterowane komputerem z możliwością sterowania zdalnego.
- Plastikowe okna z szybami ciepłochronnymi typu Thermofloat.
- Kominek z możliwością łatwego przerobienia na węgiel dzięki poprowadzonym dodatkowym rurom wyprowadzającym.
- Przygotowana instalacja pod panele solarne.
- Rolety antywłamaniowe
- Parapety marmurowe
- System cichego alarmu
- Nieruchomość przeszła profesjonalną usługę mycia elewacji.
Działka :
- 284m² w kształcie prostokąta wyjście z salonu do ogródka obsadzonego tujami oraz trawą.
JEŻELI SZUKASZ FINANSOWANIA TEJ NIERUCHOMOŚCI, WSPÓŁPRACUJĘ ZE SKUTECZNYM DORADCĄ KREDYTOWYM,
USŁUGA KREDYTOWA JEST BEZPŁATNA.
Zapraszam na prezentację
Dawid Tołysz
690-470- 275



:: Oferta wysłana z programu mediaRent (media-rent.eu) ::
Lokalizacja
Turka
lubelskie
Informacje
Powierzchnia: 220 m2
5 pokoje
2 piętra w budynku
Rok budowy: 2012
Numer oferty: 3376/BNK/DS-239710
Dojazd
asfalt
Dodatkowe zalety
piwnica
Wyposażenie
lodówka
balkon/taras
Kontakt
mai3ja_bnkwadrat
BN Kwadrat
690470275