Wyjątkowy dom w malowniczej miejscowości Iwonicz

Iwonicz

Dom
160 m2
6 pokoi

889 000 zł

Treść ogłoszenia

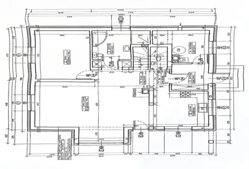
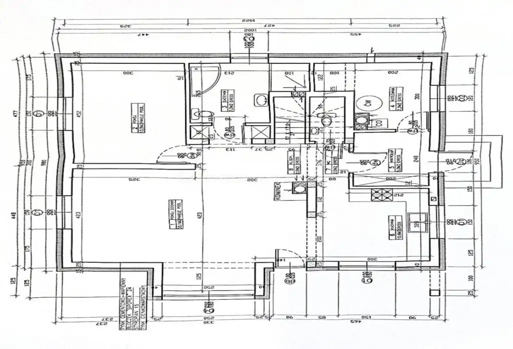
Przedstawiam ofertę wyjątkowego domu w malowniczej miejscowości Iwonicz. Dom o powierzchni użytkowej 126,8 m², posiada 2 kondygnacje:  przestronny parter oraz komfortowe piętro. W skład pomieszczeń wchodzą:
Parter: Przestronny salon z wyjściem na taras, pokój, nowoczesna kuchnia, łazienka, osobne WC, kotłownia, wiatrołap
Piętro: 4 pokoje, korytarz, łazienka



Wchodząc do środka, od razu poczujesz się jak u siebie nowoczesny design, ciepło i mnóstwo przestrzeni. Przestronny salon z wyjściem na taras to idealne miejsce na relaks przy porannej kawie lub wieczornym zachodzie słońca. Dach ocieplony pianą PUR, wnętrze jest wyjątkowo ciepłe i przytulne.

Dom zbudowany w latach 2021-2023 z wysokiej jakości materiałów solbetu, ocieplony styropianem 20 cm, natomiast na dachu położona jest dachówka ceramiczna. W środku komfort podnosi system ogrzewania podłogowego, który znajduje się na obu piętrach oraz rekuperacja, która dba o czyste powietrze wewnątrz.  W domu za ogrzewanie odpowiada piec dwufunkcyjny, który zapewnia wygodę użytkowania. Przygotowane jest również wyprowadzenie na pompę ciepła, co daje możliwość dalszej modernizacji i dostosowania do własnych potrzeb.

Do tego wszystkiego, na działce o powierzchni ponad 27,5 ara, znajduje się dwustanowiskowy garaż oraz budynek gospodarczy z przybudówką ogrodniczą przestrzeń na wszystko, czego potrzebujesz do ogrodu. A dla miłośników ekologii, pięć paneli fotowoltaicznych, które pomogą Ci zadbać o środowisko i zaoszczędzić na rachunkach. Nieruchomość posiada wszystkie media, oraz posiada miejską wodę i kanalizację. Dodatkowo jest możliwość podłączenia studni.

Działka jest przepięknie zagospodarowana wśród licznych kwiatów, roślin oraz młodych drzew owocowych (jabłka, wiśnia, czereśnia, śliwka, gruszka) znajdziesz także krzewy borówki, jeżyn i malin. Całość tworzy bajkowy klimat, idealny do odpoczynku i relaksu. Główne wymiary działki to 54x53 m. a jej widokowe położenie dodaje temu miejscu niepowtarzalnego uroku.

To miejsce to spokój, z dala od miejskiego zgiełku, jednocześnie z łatwym dostępem do infrastruktury codziennej. Dodatkowo w bliskiej odległości jedno z najstarszych Uzdrowisk, Iwonicz-Zdrój. Dom znajduje się zaledwie 15 km od Krosna miasta szkła, gdzie można cieszyć się wszystkimi udogodnieniami miejskimi oraz unikalną atmosferą tego malowniczego miejsca . Jeśli szukasz miejsca, które zapewni Ci komfort, bliskość natury oraz ciszę, to jest to dom idealny dla Ciebie i Twojej rodziny. 

Nie czekaj ten dom czeka na Ciebie!


Czy wiesz, że możemy przygotować dla Ciebie prezentację on-line nieruchomości? Skontaktuj się z naszym Agentem i zapytaj o szczegóły.

Pomimo, iż Doradcy Metrohouse przykładają szczególną staranność do rzetelnego prezentowania informacji o nieruchomości, nie zawsze jest możliwa weryfikacja wszystkich danych przekazanych od osób trzecich. Niniejsza prezentacja oferty nie jest ofertą w rozumieniu Kodeksu Cywilnego i ma charakter wyłącznie informacyjny.
Lokalizacja
Iwonicz
niewybrano
Informacje
Powierzchnia: 160 m2
6 pokoje
Rok budowy: 2021
Numer oferty: SDFIVE200
Dodatkowe zalety
meble
Kontakt
METROHOUSE
Julia Słabniak
+48699585122