2 pok. zieleń dobry dojazd do centrum

Poznań

Mieszkanie
40 m2
2 pokoje

471 079 zł

Treść ogłoszenia

Ogłoszenie sprzedaży 2 pokojowego mieszkania w stanie deweloperskim, Poznań


Zadzwoń i umów się na obejrzenie inwestycji +48798601102




  • Bezpośrednio od dewelopera

  • Brak PCC

  • Bez prowizji




Lokalizacja

Podolany, to lokalizacja zapewniająca bliskość terenów zielonych, a jednocześnie jest dobrze skomunikowana z centrum.



  • autobus - 1 minuta

  • przychodnia - 5 minut

  • tereny zielone - 5 minut

  • szkoła - 5 minut

  • sklepy - 1 minuta






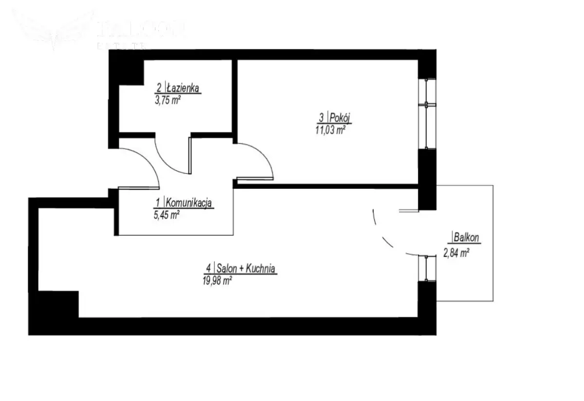
Układ mieszkania



  • Salon + Kuchnia 19,96 m²

  • Pokój 11,03 m²

  • Łazienka 3,74 m²

  • Przedpokój 5,34 m²

  • Balkon - 2,84 m²




W inwestycji



  • windy

  • domofon

  • monitoring

  • wewnętrzny plac zabaw

  • co miejskie




To miejsce, które daje Ci spokój, komfort i codzienną wygodę.

Mieszkania są już gotowe.


Spełnij marzenia o nowym mieszkaniu.
Nie czekaj, zarezerwuj mieszkanie już teraz.

Dodatkowo


  • pomagamy bezpłatnie w uzyskaniu najkorzystniejszej oferty kredytu hipotecznego

  • możliwość wykończenia mieszkania pod klucz



Monika Skotarczak. +48798601102

ZERO prowizji, brak PCC

...
Oferta wystawiona przez Biuro nieruchomości Falcon Estate.
Prezentowane w serwisie oferty nie stanowią oferty handlowej w rozumieniu art. 66 Kodeksu Cywilnego i mogą być nieaktualne.
Lokalizacja
Poznań
dzielnica Podolany
wielkopolskie
Informacje
Powierzchnia: 40 m2
2 pokoje
5 pięter w budynku
Rok budowy: 2025
Numer oferty: FE372874
Zalety
domofon
Media
kanalizacja
Wyposażenie
balkon/taras
Kontakt
Falcon Estate
Monika Skotarczak
798601102

Podobne oferty

 Poznań   Jana Henryka Dąbrowskiego

Nowe Jeżyce 4 pokoje duży balkon od południa

Poznań, Jana Henryka Dąbrowskiego

Paczkomat na osiedlu. Stacje ładowania e-samochodów. Twój smartfon otworzy bramę garażu, przywoła windę i wpuści do mieszkania rodzinę, która zapomniała...

75 m2
4 pokoje
882 568 zł
11 768 zł/m2
 Poznań   Maków Polnych

3 pokoje z balkonem niska zabudowa w Poznaniu

Poznań, Maków Polnych

Ogłoszenie sprzedaży 3 pokojowego apartamentu z balkonem w stanie deweloperskimBezpośrednio od deweloperaBrak PCCBez prowizjiLokalizacja:Poznań Umultowo - to doskonałe połączenie życia...

38 m2
3 pokoje
453 747 zł
11 941 zł/m2
 Poznań   Naramowicka

kawalerka z ogródkiem dobry dojazd do centrum

Poznań, Naramowicka

Ogłoszenie sprzedaży kawalerki z ogródkiem w Poznaniu Bezpośrednio od dewelopera Brak PCC Bez prowizji LokalizacjaNaramowice, to doskonale miejsce, jeśli cenisz...

29 m2
1 pokój
338 300 zł
11 666 zł/m2