4 pokoje 75 m² dwa ogródki hala garażowa

Gdańsk , Konrada Guderskiego

Mieszkanie
75 m2
4 pokoje

785 000 zł

Treść ogłoszenia

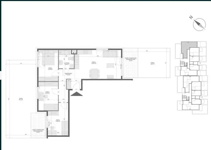
4-pokojowe mieszkanie 75 m² z dwoma ogródkami + komórka lokatorska 4,5 m²

Na sprzedaż mieszkanie o powierzchni 75 m², położone w budynku oddanym do użytku w 2023 roku. Lokal znajduje się w inwestycji z windą, z dostępem do hali garażowej.

Układ mieszkania
salon z aneksem kuchennym - 25,42 m²
sypialnia - 11,69 m²
sypialnia - 10,69 m²
sypialnia - 10,9 m²
łazienka - 5,9 m²
dwa ogródki: 49,2 m² i 26,4 m²
komórka lokatorska - 4,5 m² 

Do mieszkania przynależy miejsce postojowe w hali garażowej. Komórka lokatorska (15 tys. zł) oraz miejsce postojowe (35 tys. zł) - zakup obligatoryjny.

Standard i wyposażenie
mieszkanie odświeżone, gotowe do zamieszkania
kuchnia z pełnym wyposażeniem AGD: lodówka, zamrażarka, zmywarka, kuchenka, piekarnik, mikrofalówka
meble i wyposażenie widoczne na zdjęciach zawarte w cenie
drzwi antywłamaniowe
rolety antywłamaniowe sterowane elektrycznie, również z telefonu
Ekspozycja okien i ogródków
północny zachód - ogród i sypialnie
północny wschód - salon
południowy wschód - mniejszy ogródek i część salonu

Lokalizacja
W najbliższej okolicy znajduje się pełna infrastruktura handlowo-usługowa, szkoły i punkty gastronomiczne.
ok. 1 km do największego centrum handlowo-usługowego w Gdańsku
ok. 1 km do terenów rekreacyjnych: parku, stawów, ścieżek spacerowych i rowerowych
szybki dojazd do obwodnicy Trójmiasta (ok. 1 km)
do centrum Gdańska samochodem: ok. 10 min (w godzinach szczytu ok. 20 min)

Dodatkowe informacje
wysokość czynszu - ok. 675 zł/mc

Lokalizacja
Gdańsk
dzielnica Zakoniczyn
pomorskie
Informacje
Powierzchnia: 75 m2
4 pokoje
3 piętra w budynku
Rok budowy: 2023
Numer oferty: PH00604752
Zalety
domofon
Media
kanalizacja
Kontakt
PARTNER HOUSE NIERUCHOMOŚCI
Jacek Misan
720801890

Podobne oferty

 Gdańsk   Perłowa

Mieszkanie

Gdańsk, Perłowa

2017 (generalny remont wymiana elektryki i hydrauliki) Atuty : Bliskość Parku Oruńskiego, dogodna komunikacja miejska, ogólnodostępny parking, zaplecze handlowo –...

45 m2
3 pokoje
499 000 zł
11 089 zł/m2
 Gdańsk

Z potencjałem blisko plaży i Parku Reagana

Gdańsk

MDP Partners przedstawia:Na sprzedaż 2 pokojowe mieszkanie o powierzchni 38 m2, położone w malowniczym pasie nadmorskim w dzielnicy Przymorze (jednej...

38 m2
2 pokoje
499 000 zł
13 132 zł/m2
 Gdańsk   Starowiejska

Mieszkanie 3 pokojowe w Gdańsku - Letnica

Gdańsk, Starowiejska

Zapraszam do zapoznania się z ofertą mieszkania 3 pokojowego w Gdańsku. Nowoczesna dzielnica Letnica, przy ulicy Starowiejskiej. Lokalizacja i osiedle: ...

65 m2
3 pokoje
1 095 000 zł
16 846 zł/m2