3 pokoje z balkonem i tarasem

Poznań , Jasielska

Mieszkanie
67 m2
3 pokoje

658 182 zł

Treść ogłoszenia

Ogłoszenie sprzedaży 3 pokojowego mieszkania z antresolom, balkonem i tarasem w Poznaniu


Zadzwoń i umów się na obejrzenie inwestycji +48798601102




  • Bezpośrednio od dewelopera

  • Brak PCC

  • Bez prowizji





Lokalizacja

Podolany, to lokalizacja zapewniająca bliskość terenów zielonych, a jednocześnie jest dobrze skomunikowana z centrum.



  • autobus - 1 minuta

  • przychodnia - 5 minut

  • tereny zielone - 5 minut

  • szkoła - 5 minut

  • sklepy - 1 minuta






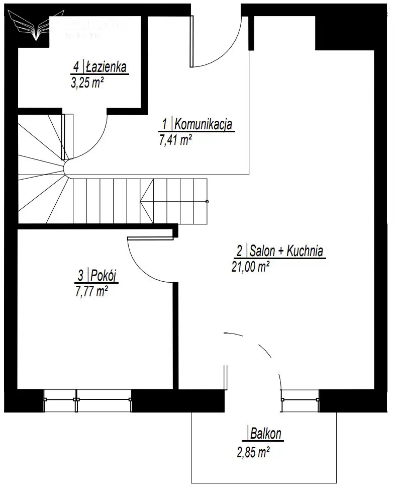
Układ mieszkania




  • Salon + Kuchnia 21,00 m²

  • Pokój 7,77 m²

  • Antresola 27,70 m²

  • Przedpokój 7,41 m²

  • Łazienka 3,25 m²

  • Balkon 2,85 m²

  • Taras 17,00 m²







w inwestycji



  • windy

  • domofon

  • monitoring

  • wewnętrzny plac zabaw

  • CO miejskie






Mieszkanie oddane do użytku.
To miejsce, które daje Ci spokój, komfort i codzienną wygodę.

Do ceny należy doliczyć miejsce postojowe w hali garażowej.


Spełnij marzenia o nowym mieszkaniu.
Zainteresowany? Zadzwoń , napisz

Monika Skotarczak. +48798601102

ZERO prowizji, brak PCC

...
Oferta wystawiona przez Biuro nieruchomości Falcon Estate.
Prezentowane w serwisie oferty nie stanowią oferty handlowej w rozumieniu art. 66 Kodeksu Cywilnego i mogą być nieaktualne.
Lokalizacja
Poznań
dzielnica Podolany
wielkopolskie
Informacje
Powierzchnia: 67 m2
3 pokoje
5 pięter w budynku
Rok budowy: 2025
Numer oferty: FE938509
Zalety
domofon
Media
kanalizacja
Wyposażenie
balkon/taras
Kontakt
Falcon Estate
Monika Skotarczak
798601102

Podobne oferty

 Poznań   Święty Marcin

Mieszkanie

Poznań, Święty Marcin

Sprzedam mieszkanie bezpośrednio od właściciela w bardzo atrakcyjnej lokalizacji w samym centrum Poznania przy ul. Święty Marcin 25. Mieszkanie znajduje...

82 m2
3 pokoje
483 800 zł
5 900 zł/m2
 Poznań   Gwarna

Mieszkania

Poznań, Gwarna

Apartamenty w butikowej, eleganckiej kamienicy w samym sercu Poznania. Termin oddania inwestycji: Wrzesień 2025r.Zapraszam do zapoznania się z ofertą wyjątkowych...

68 m2
2 pokoje
1 021 800 zł
15 026 zł/m2
 Poznań   Klemensa Janickiego

Klimatyczne Jeżyce ogród blisko centrum

Poznań, Klemensa Janickiego

Ogłoszenie sprzedaży 2 - pokojowego mieszkania z ogrodem i tarasem w stanie deweloperskim w PoznaniuBezpośrednio od deweloperaBrak PCCBez prowizjiSkontaktuj się...

50 m2
2 pokoje
582 568 zł
11 651 zł/m2