Apartament z Antresolą Osiedle z Basenem.

Gdańsk , Turystyczna

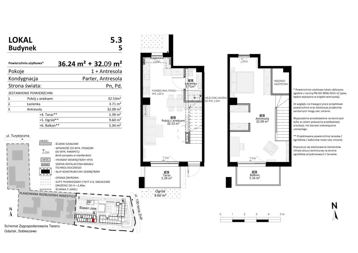
Mieszkanie
68 m2
2 pokoje

1 359 765 zł

Treść ogłoszenia

Luksusowe apartamenty, ulokowane w niskich, kameralnych budynkach na Wyspie Sobieszewskiej.
Zakup od dewelopera, bez 2% podatku PCC i prowizji.

Atuty inwestycji:
- Na terenie inwestycji znajdą się zarówno miejsca parkingowe jak i stojaki na rowery, aby zapewnić najwyższy komfort mieszkańcom.
- Inwestycja znajduje się na malowniczej Wyspie Sobieszewskiej w Gdańsku, otoczonej lasami nadmorskimi i czystymi plażami, z szybkim dostępem do centrum Gdańska. Okolica oferuje bogactwo przyrodnicze z rezerwatami Ptasi Raj i Mewia Łacha, co czyni ją idealnym miejscem dla miłośników natury.
- Budynki są zaprojektowane zgodnie z najnowszymi trendami architektonicznymi, z zastosowaniem ekologicznych materiałów budowlanych.

Układ mieszkania:
- pokój dzienny z aneksem kuchennym,
- łazienka,
- antresola,
- przedpokój,
- balkon,
- taras z ogrodem.

Dodatkowe informacje:
Na terenie inwestycji będzie 90 miejsc ogólnodostępnych.

Piętro: 0/1
Liczba pokoi: 2
Termin realizacji inwestycji: Gotowe

W razie jakichkolwiek pytań zachęcamy do kontaktu pod podany niżej numer.
Serdecznie zapraszamy na prezentacje inwestycji!

Osoba do kontaktu: Dawid Dragan
Tel. +48 733 266 466

Powyższa oferta ma charakter informacyjny i nie stanowi oferty handlowej w rozumieniu art. 66 §1 Kodeksu Cywilnego.
Lokalizacja
Gdańsk
dzielnica Sobieszewo
pomorskie
Informacje
Powierzchnia: 68 m2
2 pokoje
1 piętro w budynku
Rok budowy: 2024
Numer oferty: 782500
Wyposażenie
balkon/taras
Kontakt
Dayton Nieruchomości
Dawid Dragan
733 266 466

Podobne oferty

 Gdańsk

Mieszkanie Gdańsk Oliwa

Gdańsk

Na  sprzedaż nieruchomość w województwie pomorskim, apartament na piętrze o powierzchni 67,53m2 w nowej inwestycji deweloperskiej w Gdańsku Oliwie. Lokal...

67 m2
3 pokoje
1 543 880 zł
23 043 zł/m2
 Gdańsk   al. Rzeczypospolitej

Idealne pod inwestycje Blisko morza Balkon

Gdańsk, al. Rzeczypospolitej

GDAŃSK PRZYMORZE Na sprzedaż oferujemy dwupokojowe mieszkanie znajdującą się w Gdańsku w najbardziej pożądanej dzielnicy Przymorze. Nieruchomość mieści się na...

38 m2
2 pokoje
440 000 zł
11 579 zł/m2
 Gdańsk   Stępkarska

Dwupokojowe Mieszkanie z Loggią nad Motławą

Gdańsk, Stępkarska

Stylowe apartamenty nad Motławą, z technologią Smart House w standardzie, w świetnie skomunikowanej lokalizacji blisko Długiej i Wyspy Spichrzów.Zakup od...

40 m2
2 pokoje
870 000 zł
21 750 zł/m2