Nowe Doskonała lokalizacja Balkon Taras

Warszawa

Mieszkanie
59 m2
3 pokoje

880 000 zł

Treść ogłoszenia

NOWA NIŻSZA CENA!
___________________________
MDP Partners przedstawia:

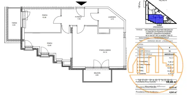
Mieszkanie w stanie deweloperskim, jasne, przestronne i funkcjonalne 3-pokojowe mieszkanie o powierzchni 59,08m² + balkon 4,62m² oraz taras 4,92m² zlokalizowane na warszawskich Bielanach.

Umowę deweloperską można podpisać już teraz.

2 lokale mieszkalne na piętrze zapewniają duża kameralność i intymność dla nowego właściciela nieruchomości. Dodatkowo mieszkania są bardzo dobrze wyciszone dzięki odpowiedniej izolacji akustycznej (grube ściany oraz 3 szybowe okna)


O MIESZKANIU
Mieszkanie składa się z dużego pokoju wraz z aneksem kuchennym, dwóch sypialni, łazienki oraz dużego balkonu.

Rozkład pokoi zapewnia dużą prywatność i komfort mieszkania.

Idealne dla rodziny z dziećmi lub jako inwestycja kapitału.

Do mieszkania przynależą dwa miejsca garażowe (platforma), zjazd do garażu za pomocą windy, dodatkowo płatne 80tys.brutto
lub
Istnieje możliwość zakupu pojedynczego miejsca naziemnego w cenie 35tys brutto

Możliwość zakupu komórki lokatorskiej (zlokalizowanej na półpiętrze) 2m² lub 3m²

OKOLICA
Cicha i spokojna okolica w doskonałej lokalizacji, dużo zieleni. Blisko komunikacji miejskiej (autobus, tramwaj, metro) Doskonała infrastruktura: liczne sklepy, punkty usługowe, szkoły, przedszkola i żłobki sprawią, że wszystko jest na wyciągnięcie ręki. W bliskim sąsiedztwie Parku Chomicza i lasów.

Standard wykończenia lokalu mieszkalnego

1. Wykończenie mieszkania „stan deweloperski” obejmuje:
- tynki gipsowe na ścianach i sufitach malowane jednokrotnie w kolorze białym
- posadzki cementowe zatarte na gładko.
2. Drzwi wejściowe do lokalu fornirowane wzmocnione z 1 zamkiem klasy C
3. Okna i drzwi balkonowe PCV (dwustronnie białe),
4. Parapety okienne zewnętrzne z blachy powlekanej kolor szary lub ciemno szary.
5. Obróbki z powlekanej blachy w kolorze ciemno szarym lub szarym.
6. Balustrada balkonowa, stalowa lakierowana proszkowo kolor szary lub ciemno szary, lub stal nierdzewna. Wypełnienie szkło mleczne.
7. Balkony - płyta żelbetowa z izolacją wodną , wykończenie płytą gresową 60x60x2cm , na stopkach regulowanych.
8. Oprawy oświetleniowe na tarasach i balkonach.
9. Instalacja kontroli dostępu - video-domofonowa.


Zapraszamy do kontaktu oraz na prezentacje
Jakub Karwowski
MDP Partners

MDP Partners oferuje nabywcom obsługę prawną transakcji i jej bezpieczną finalizację, oraz pomoc w sfinansowaniu każdego rodzaju nieruchomości.
Lokalizacja
Warszawa
dzielnica Bielany chomiczówka
mazowieckie
Informacje
Powierzchnia: 59 m2
3 pokoje
7 pięter w budynku
Rok budowy: 2024
Numer oferty: 512379
Zalety
domofon
Media
kanalizacja
Wyposażenie
balkon/taras
Kontakt
MDP Partners
Jakub Karwowski
531 620 270

Podobne oferty

 Warszawa   Kłobucka

smart trzy pokoje z klimatyzacją Służewiec

Warszawa, Kłobucka

Nowe mieszkanie na osiedlu NEXITY, urządzone w 2020 r. w komfortowy sposób ( klimatyzacja, pralko-suszarka, szafy w zabudowie). Duży salon...

72 m2
3 pokoje
1 089 000 zł
15 125 zł/m2
 Warszawa

Metro Bródno Wysoki standard z wyposażeniem

Warszawa

MDP Partners prezentuje:3 pokojowe mieszkanie zlokalizowane na Warszawskim Targówku, 6 minut na pieszo do Metro Bródno.Nieruchomość usytuowana na 4 piętrze...

61 m2
3 pokoje
1 200 000 zł
19 672 zł/m2
 Warszawa   Karola Dickensa

Konkurs ofert - ul. Karola Dickensa

Warszawa, Karola Dickensa

Syndyk masy upadłości Lilii Moshechkova – osoby fizycznej nieprowadzącej działalności gospodarczej (sygn. akt: WA2M/GUp-s/1958/2024) ogłasza konkurs ofert na nabycie z...

36 m2
2 pokoje
120 000 zł
3 333 zł/m2