Prestiżowe domy koło Lublina

Dąbrowica

Dom
236 m2
6 pokoi

1 769 999 zł

Treść ogłoszenia

Z przyjemnością przedstawiam Państwu ekskluzywną ofertę zakupu luksusowych domów w malowniczej Dąbrowicy, usytuowanej zaledwie kilka kilometrów od Lublina. 

Na nieruchomość składają się:
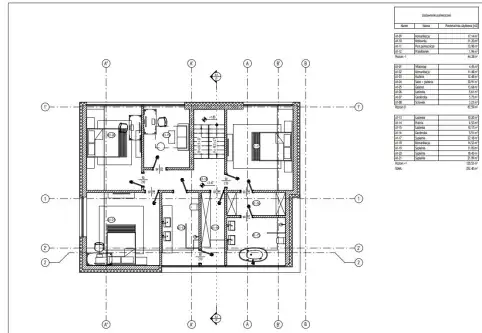
-Komunikacja o pow 17,14 m²
-Kotłownia o pow 11,20 m²
-Pom pomocnicze o pow 13,98 m²
-Przedsionek o pow 1,96 m²
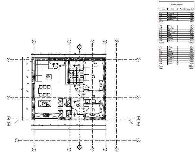
Parter
-Wiatrołap o pow 4,45 m²
-Komunikacja o pow 11,48 m²
-Kuchnia o pow 12,48 m²
-Salon+ jadalnia o pow 30,91 m²
-Gabinet o pow 13,68 m²
-Łazienka o pow 5,61 m²
-Garderoba o pow 5,75 m²
-Schowek o pow 3,23 m²
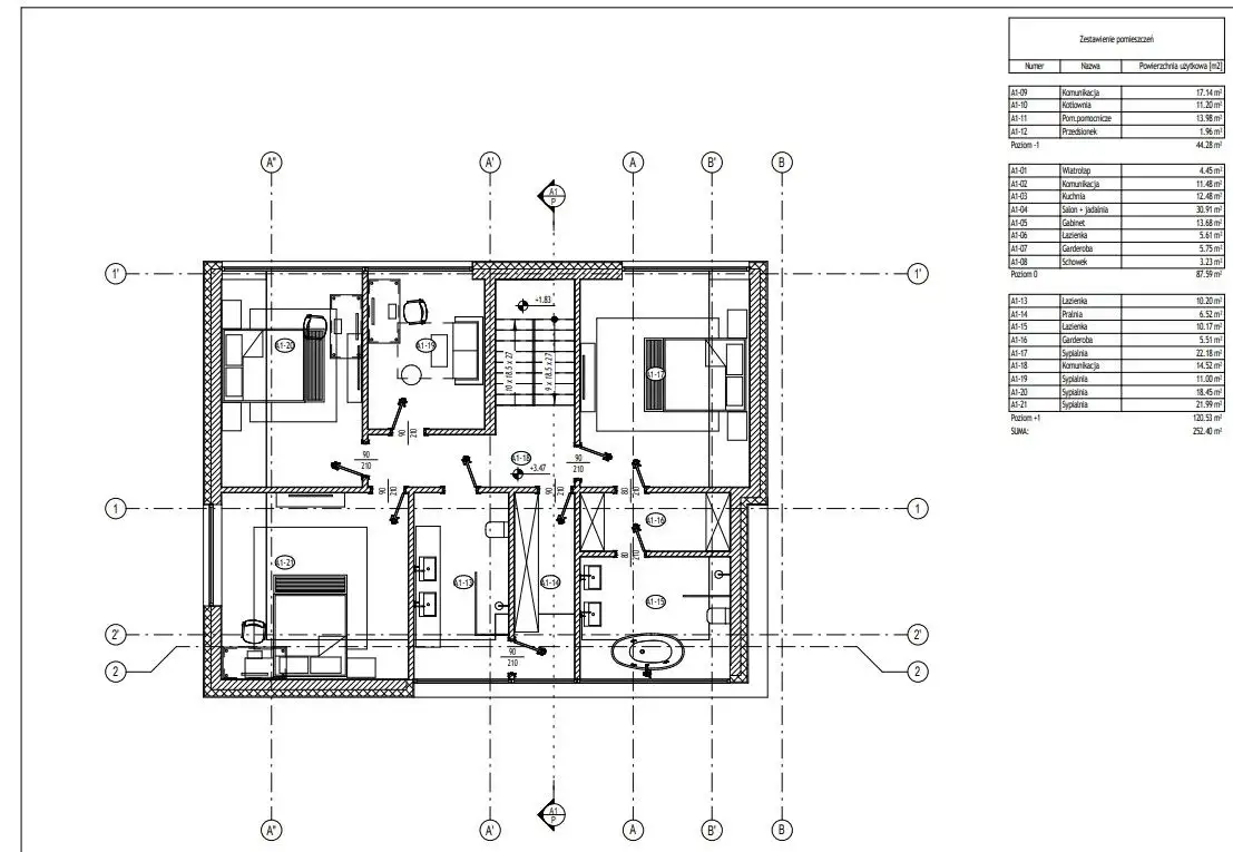
Piętro
-Łazienka o pow 10,20 m²
-Pralnia o pow 6,52 m²
-Łazienka o pow 10,17 m²
-Garderoba o pow 5,51 m²
-Sypialnia o pow 22,18 m²
-Komunikacja o pow 14,52 m²
-Sypialnia o pow 11 m²
-Sypialnia o pow 18,45 m²
-Sypialnia o pow 21,99 m²

Miejsca parkingowe w garażu podziemnym dodatkowa płatne w cenie 60000zł szt .
Każde mieszkanie ma zagwarantowane dwa niezależne miejsca postojowe na poziomie -1
Hala garażowa została wyposażona w wentylację mechaniczną z rekuperacją, co gwarantuje świeże powietrze i odpowiednią cyrkulację.
Podjazd do garaży podziemnych jest podgrzewany, eliminując konieczność odśnieżania zimą.

O nieruchomośći:
- Okna Aluminiowe Aliplast:
- Ogrzewanie podłogowe i grzejniki drabinkowe
- Drzwi Tarasowe HS (podnoszono-przesuwne) 

Istotne Instalacje:
● Wentylacja mechaniczna z rekuperacją, dbająca o świeże powietrze i efektywną wymianę ciepła, co przyczynia się do komfortu mieszkania.
● Instalacja odgromowa na każdym budynku, zapewniająca bezpieczeństwo w przypadku burz i silnych opadów.
● Fotowoltaika o mocy 5,5 kW, z możliwością rozbudowy do 10 kW, oraz falownik 10 kW Huawei, umożliwiające efektywne korzystanie z energii słonecznej.

Co więcej?
Szklane balustrady na balkonach
Oświetlenie sterowane pilotem
Prywatne przydomowe ogródki
Zewnętrzne gniazda elektryczne umieszczone w elewacji budynku umożliwiają wygodne korzystanie z prądu w ogrodzie.
System Nawadniania Trawnika

NIEZBĘDNE MEDIA 
-Instalacja Wodociągowa Miejska, Opomiarowana
-Instalacja Gazowa z Sieci Miejskiej
-Indywidualna Instalacja Kanalizacji Sanitarnej
-Ogrzewanie Własne - Kondensacyjny Kocioł Gazowy Bosch
Światłowód Podłączony do Każdego Z Budynków
Instalacja Antenowa RTV/Sat

*jeśli potrzebujesz pomocy eksperta w dobraniu finansowania zakupu nieruchomości, skontaktuj się z opiekunem oferty.

Ofertę przygotował i prezentuje:
Piotr Ryl tel. 604 711 517
Licencjonowany Pośrednik Nieruchomości
Franczewska Nieruchomości

Zapraszam do kontaktu i na prezentację nieruchomości!

Treść niniejszego ogłoszenia nie stanowi oferty handlowej w rozumieniu Kodeksu Cywilnego, ale jest zaproszeniem do współpracy. Zespół ekspertów z Franczewska Nieruchomości dokłada starań, aby każda z ofert była rzetelnie sprawdzona oraz aktualna.
Usługa jest wykonywana w profesjonalny sposób i zapewnia Państwu pełne bezpieczeństwo. Więcej unikalnych ofert w podobnych kryteriach znajdą Państwo na naszej stronie.

Lokalizacja
Dąbrowica
lubelskie
Informacje
Powierzchnia: 236 m2
6 pokoje
1 piętro w budynku
Rok budowy: 2023
Numer oferty: 909585850
Zalety
domofon
Wyposażenie
balkon/taras
Kontakt
FRANCZEWSKA NIERUCHOMOŚCI ADRIANNA FRANCZEWSKA-KRUPA SPÓŁKA KOMANDYTOWA
Piotr Ryl
604711517

Podobne oferty

 Dąbrowica

Nowoczesny dom w Dąbrowicy garaż 2-stanowiskowy.

Dąbrowica

Na sprzedaż nowy dom wolnostojący w stanie deweloperskim w Dąbrowicy . - dom będzie oddany do użytku w 2024 roku...

203 m2
4 pokoje
1 450 000 zł
7 143 zł/m2
 Dąbrowica

Oferta premium piętrowy dom wolnostojący

Dąbrowica

Oferta premium.Przestronny, komfortowy dom wolnostojący o pow. całkowitej 238,33m2, użytkowej 202,69m2 na działce o pow. 927m2 w Dąbrowicy.Parter:- pokój dzienny...

238 m2
6 pokoi
2 100 000 zł
8 824 zł/m2
 Dąbrowica

Oferta premium piętrowy dom wolnostojący

Dąbrowica

Oferta premium.Przestronny, komfortowy dom wolnostojący o pow. całkowitej 238,33m2, użytkowej 202,69m2 na działce o pow. 927m2 w Dąbrowicy.Parter:- pokój dzienny...

238 m2
6 pokoi
2 100 000 zł
8 824 zł/m2