Polanowice Ostatni gotowy do odbioru segment

Wrocław

Dom
116 m2
4 pokoje

1 190 000 zł

Treść ogłoszenia

OFERTA DEWELOPERSKA

0% PROWIZJI
0%PCC

Zapraszam do zapoznania się z ofertą sprzedaży OSTATNIEGO lokalu na kameralnej inwestycji składającej się z 5 budynków z zabudowie czterolokalowej na Wrocławskim osiedlu Polanowice

Inwestycja cechuje się wysoką jakością użytych materiałów i standardem wykonania.

Każdy segment o powierzchni 116 mkw posiada własny ogródek wielkości 66,35m² oraz dwa miejsca postojowe miejsce postojowe na podjeździe

segmenty budowane jest z wysokiej klasy materiałów
dachówka ceramiczna firmy CREATON 50 LAT GWARANCJI
okna trzyszybowe z roletami automatycznymi na piętrze
piec kondensacyjny marki De Dietrich
ogrzewanie podłogowe w całym domu
wybrukowany podjazd
kamienne parapety zewnętrzne i wewnętrzne z konglomeratu

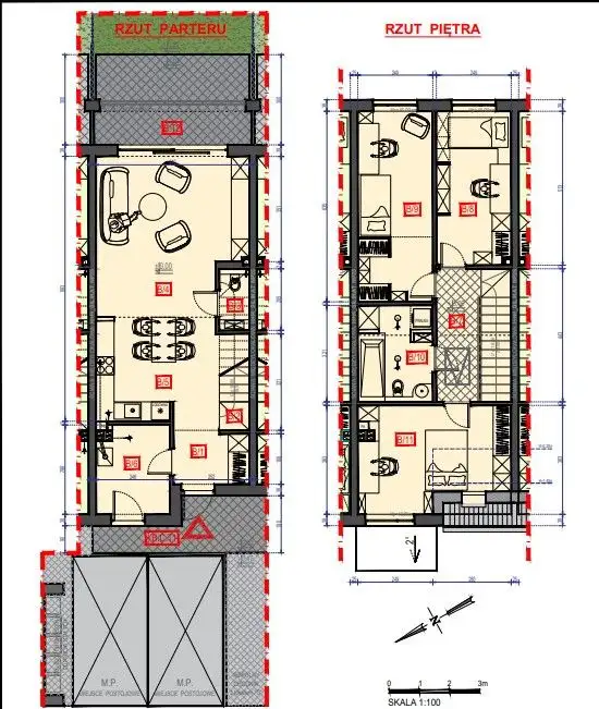
Układ lokalu:
PARTER
Wiatrołap 4,20m²
Salon 24,95m²
Kuchnia z jadalnia 14,40m²
Pomieszczeni gospodarcze 6,9m²
Toaleta 1,95m²

PIĘTRO
Korytarz 10,85m²
Pokój 13,80m²
Pokój 12,50m²
Pokój 15,55m²
Łazienka 7,8m²


Zapraszamy do zapoznania się z tą wyjątkową ofertą i dołączenia do społeczności osób ceniących komfortowe życie w nowoczesnym domu!

Skontaktuj się z nami już dziś, aby dowiedzieć się więcej i umówić na prezentację inwestycji.

Michał Cepuch
Tel./WhatsApp: 503-365-100

Pomagamy w uzyskaniu kredytu hipotecznego

Skorzystaj z kompleksowego wykończenia wnętrz wraz z projektem

...
Oferta wystawiona przez Biuro nieruchomości Falcon Estate.
Prezentowane w serwisie oferty nie stanowią oferty handlowej w rozumieniu art. 66 Kodeksu Cywilnego i mogą być nieaktualne.
Lokalizacja
Wrocław
dzielnica Psie pole
dolnośląskie
Informacje
Powierzchnia: 116 m2
4 pokoje
1 piętro w budynku
Rok budowy: 2023
Numer oferty: FE689837
Zalety
domofon
Media
kanalizacja
Dojazd
utwardzony
Kontakt
Falcon Estate
Dawid Sokół
795522532

Podobne oferty

 Wrocław

Dom Blisko centrum Cisza Inwestycyjne

Wrocław

Szukasz domu we Wrocławiu w zielonej, spokojnej okolicy z dobrą komunikacją z centrum?Ten dom jest dla Ciebie!Dom składa się z:Parter:-...

90 m2
5 pokoi
1 161 258 zł
12 903 zł/m2
 Wrocław

*JERZEMANÓW*144m²*ostatnie wolne segmenty

Wrocław

OFERTA DEWELOEPRSKA 0% PROWIZJI 0% PCCOSTATNIE DOSTĘPNE LOKALE !Zapraszam do zapoznania się z ofertą sprzedaży nowych domów na Wrocławskim osiedlu...

144 m2
6 pokoi
945 000 zł
6 563 zł/m2
 Wrocław

Dom w spokojnej okolicy - wszędzie blisko

Wrocław

Zapraszam do zapoznania się z ofertą sprzedaży domu z ogrodem.Kameralne osiedle składające się z sześciu budynków w zabudowie bliźniaczej. Powierzchnia...

95 m2
4 pokoje
969 000 zł
10 200 zł/m2