Sprzedaż Nowy Dom wolnostoj. pow.mieszkalna 94 m².

Górki

Dom
94 m2
4 pokoje

565 000 zł

Treść ogłoszenia

Sprzedaż Nowy Dom wolnostojący pow.mieszkalna 94 m². stan developerski, działka600 m². pięknie położona, Górki - gmina Prószków, 3 km. od Opola

KUPUJĄCY NIE PŁACI PROWIZJI i podatku PCC !
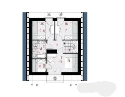
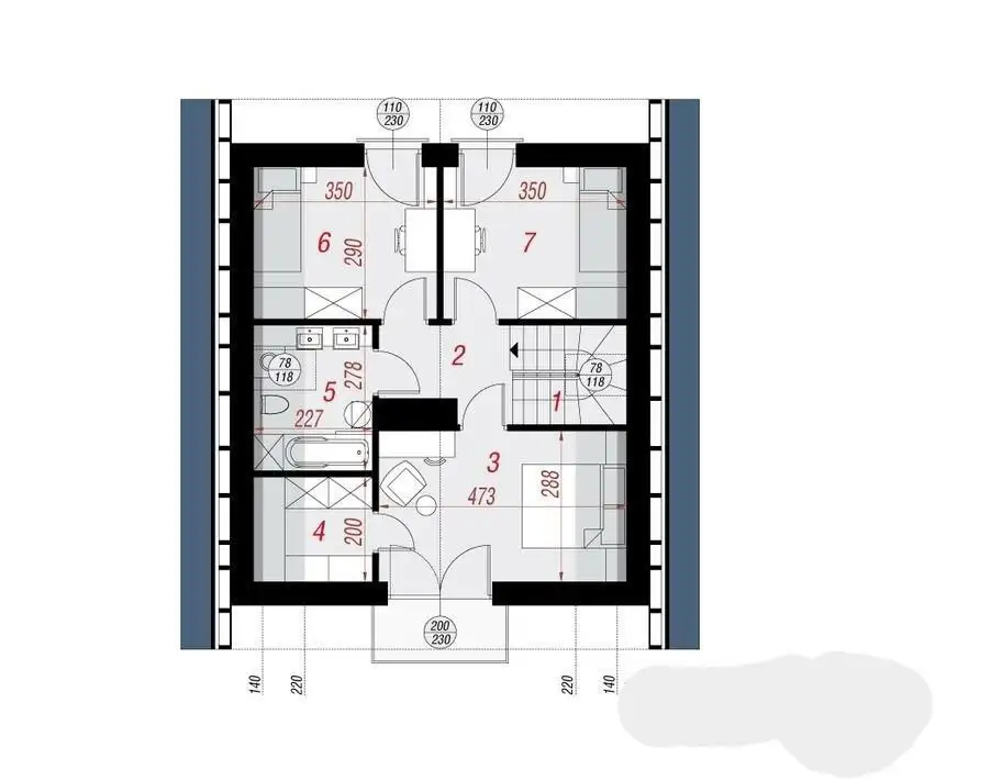
Oferujemy na sprzedaż dom jednorodzinny, niepodpiwniczony, parterowy z użytkowym poddaszem o pow. mieszkalnej 94 m².
Projekt typowy domu jednorodzinnego o nazwie "Dom na wzgórzu".
Funkcja z podziałem na strefę dzienną /parter/ i nocną /poddasze/ :
PARTER - salon z kominkiem, kuchnia z jadalnią, łazienka, komunikacja,
PODDASZE - 3 sypialnie, garderoba, łazienka, komunikacja.

Budynek wzniesiony zostanie na zlecenie kupującego z ceramiki z dachem dwuspadowym krytym dachówką cementową , orynnowanie, ocieplenie zewnętrzne ścian + tynki wewnętrzne i zewnętrzne, stolarka okienna PCV i drzwiowa zewnętrzna, wykonane instalacje wewnętrzne - ogrzewanie podłogowe .
Prosta i tradycyjna bryła, przestronne, jasne wnętrza, salon z kominkiem i tarasem.

Inwestycje realizowane są na atrakcyjnych działkach budowlanych o powierzchni od 600 do 1360 m². położonych w nieuciążliwej lokalizacji na terenie pagórkowatym w otoczeniu lasów, w kompleksie działek budowlanych zabudowanych i niezabudowanych, w cenie ok.25.000 zł/ar. Istnieje możliwość zakupu kilku sąsiednich działek o różnej wielkości.
Na zlecenie klienta istnieje możliwość realizacji kolejnych etapów budowy domu mieszkalnego "Dom na Wzgórzu" na wybranej działce:
- stan zerowy /wykonanie fundamentów i ścian fundamentowych, izolacja i ocieplenie ścian, wykonanie otoku uziemiającego, zabezpieczenie ocieplenia folią kubełkową/,
- stan surowy zamknięty /stan zerowy, wykonanie konstrukcji ścian i stropu, wykonanie konstrukcji i pokrycia dachu, montaż stolarki otworowej/,
- stan deweloperski /stan surowy zamknięty, wykonanie konstrukcji ścian i stropu, posadzki i tynki, wykonanie konstrukcji i pokrycia dachu, docieplenie ścian i dachu, montaż stolarki otworowej-okna PCV z roletami ster.elektr., instalacje wewnętrzne, przyłącza/.
Kwoty nie zawierają ceny działki.

Media : Działki uzbrojone i w trakcie uzbrajania : prąd , woda i kanalizacja miejska, gaz miejski, teren suchy, piaszczysty - nie zalewowy.
Proponowana forma ogrzewania : pompa ciepła, ogrz.gazowe.
Podana cena jest przybliżoną ceną ofertową, na życzenie klienta wykonujemy bezpłatną kalkulację kosztów budowy domu w zależności od użytych materiałów w oparciu o aktualne ceny .
DO CENY DOMU NALEŻY DOLICZYĆ CENĘ DZIAŁKI !

Szczegóły oferty :
A.Z.GWARANCJA, Opole, ul.Szarych Szeregów 34 d,
Agent: Małgorzata Kubisa, nr licencji 5216,tel. 509479557, [Email protected], www.azg.pl

Szukasz Kredytu na Zakup. Udzielimy bezpłatnej pomocy kredytowej na zakup nieruchomości, wszystko załatwisz w naszym biurze. Konsultant od wszelkich formalności kredytowych oraz zasad przyznawania kredytu, pomoże Ci wybrać najlepszą ofertę z kilkunastu Banków z którymi współpracuje. Kontakt do eksperta kredytowego: Ida Zapart tel. 668-125-594, email: [Email protected]






Ogłoszenie wysłane z programu dla biur nieruchomości ASARI CRM (asaricrm.com)



Lokalizacja
Górki
opolskie
Informacje
Powierzchnia: 94 m2
4 pokoje
1 piętro w budynku
Numer oferty: 1415/17584/ODS
Wyposażenie
balkon/taras
Kontakt
AZGWARANCJA Nieruchomości
Małgorzata Kubisa
509 479 557

Podobne oferty

 Górki

Sprzedaż dom zab.bliźn. 93 30m² stan developerski

Górki

Sprzedaż Nowy Dom w zabudowie bliźniaczej, pow.mieszkalna 93,30 m2. stan developerski, działka 450 m2. pięknie położona, Górki - gmina Prószków,...

93 m2
4 pokoje
627 000 zł
6 742 zł/m2
 Górki

Sprzedaż Nowy Dom wolnostojący pow.mieszk. 145 m².

Górki

Sprzedaż Nowy Dom wolnostojący pow.mieszkalna 145 m2. stan developerski, działka 600 m2.pięknie położona, Górki - gmina Prószków, 3 km. od...

145 m2
4 pokoje
840 000 zł
5 793 zł/m2
 Górki

Sprzedaż Nowy Dom wolnostojący pow.mieszk. 101 63m

Górki

Sprzedaż Nowy Dom wolnostojący pow.mieszkalna 101,63 m2. stan developerski, piękne położenie, Górki - gmina Prószków, 3 km. od Opola KUPUJĄCY...

101 m2
4 pokoje
660 000 zł
6 535 zł/m2