Nowoczesny Dom w Przedmościu - Inwestycja Dolna

Przedmoście , Dolna

Dom
122 m2
4 pokoje

558 000 zł

Treść ogłoszenia

Nowoczesny dom w zabudowie szeregowej - komfort, przestrzeń i prestiż

Na sprzedaż nowoczesny dom w zabudowie szeregowej o powierzchni 122,53 m², zlokalizowany w malowniczej miejscowości Przedmoście, zaledwie 7,3 km od Głogowa. Ta nieruchomość to idealne rozwiązanie dla osób ceniących spokój, komfort oraz nowoczesne rozwiązania architektoniczne. Położona w otoczeniu zieleni, w miejscu, które łączy bliskość natury z szybkim dostępem do infrastruktury miejskiej.


Przemyślany układ pomieszczeń - wygoda i funkcjonalność

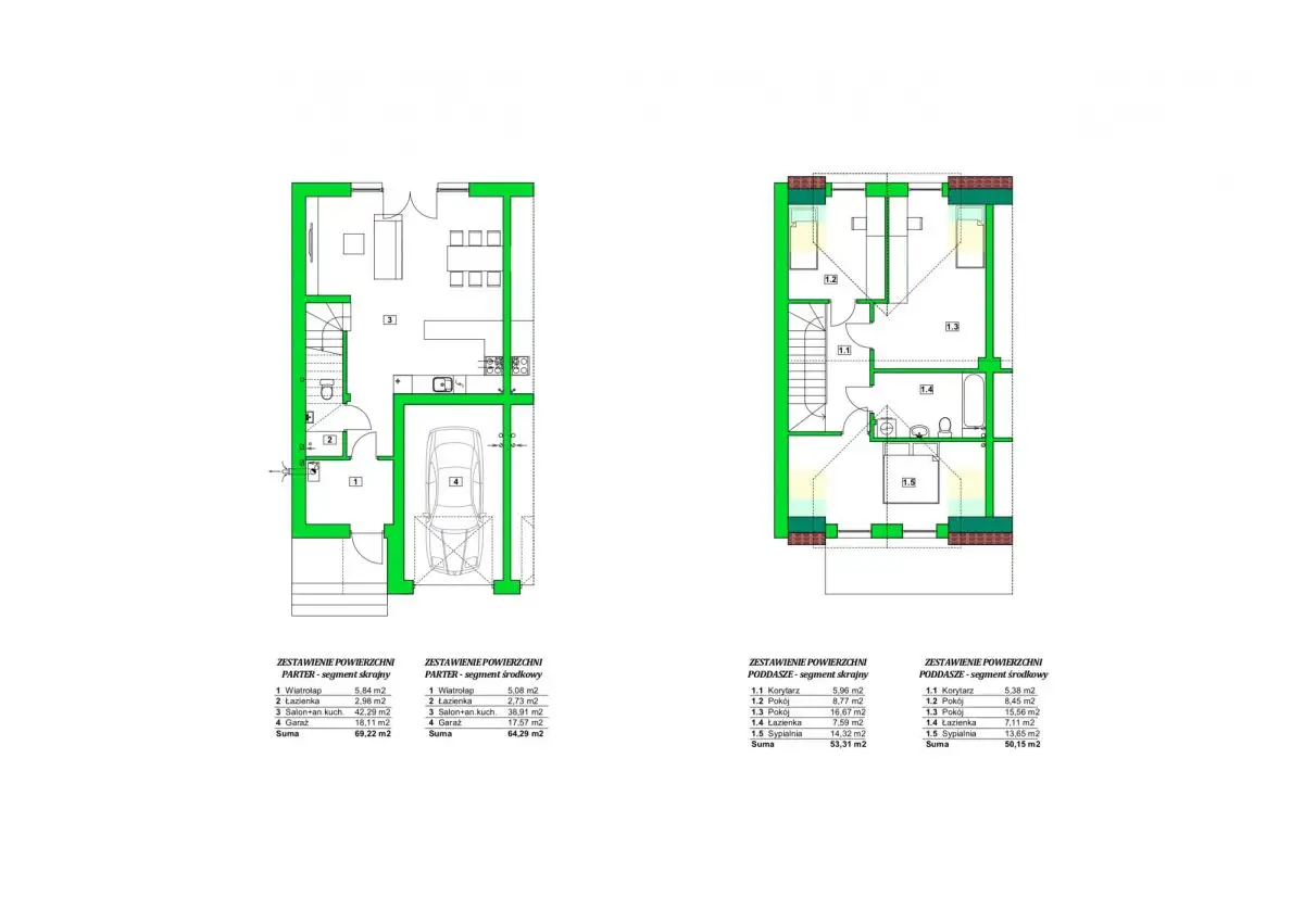
PARTER- 64,29 m²
Po wejściu do domu wita nas przestronny wiatrołap (5,08 m²), który zapewnia wygodne miejsce na przechowywanie odzieży wierzchniej. Następnie przechodzimy do przestronnego salonu z aneksem kuchennym (38,91 m²) - to serce domu, w którym dominuje otwarta, jasna przestrzeń idealna do codziennego relaksu i rodzinnych spotkań. Duże przeszklenia gwarantują doskonałe doświetlenie wnętrza, a wyjście na taras umożliwia bezpośredni kontakt z ogrodem. Na tym poziomie znajduje się również toaleta (2,73 m²) oraz garaż (17,57 m²) - niezwykle praktyczne rozwiązanie, które zapewnia wygodne parkowanie oraz dodatkową przestrzeń magazynową.

PIĘTRO - 50,15 m²
Piętro to strefa prywatna domowników, składająca się z trzech komfortowych pokoi, które można dowolnie zaaranżować - jako sypialnie, gabinet do pracy czy pokoje dla dzieci. Największa sypialnia (13,65 m²) zapewnia idealne warunki do odpoczynku, pokój 1 (15,56 m²) to doskonała przestrzeń do relaksu lub nauki, natomiast pokój 2 (8,45 m²) sprawdzi się jako pokój dziecięcy lub garderoba. Na piętrze znajduje się również duża łazienka (7,11 m²), która pozwoli na komfortową aranżację zarówno wanny, jak i kabiny prysznicowej. Korytarz (5,38 m²) łączy wszystkie pomieszczenia, zapewniając optymalne wykorzystanie przestrzeni.

Wysoki standard wykończenia - jakość, na którą zasługujesz
Dom został zaprojektowany i wybudowany zgodnie z nowoczesnymi standardami budownictwa, przy wykorzystaniu wysokiej jakości materiałów, co zapewnia trwałość i komfort użytkowania na lata.

* Solidna konstrukcja i energooszczędność - ściany wewnętrzne wykonane z tynku gipsowego maszynowego, stolarka okienna Drutex, 7-komorowe, 3-szybowe zapewnia doskonałą izolację termiczną i akustyczną
* Nowoczesne rozwiązania technologiczne - elektryczna segmentowa brama garażowa sterowana automatycznie, antywłamaniowe drzwi wejściowe Drutex
* Komfortowe wnętrza - betonowe schody wewnętrzne, posadzki zacierane na gładko
Ogrzewanie podłogowe w całym domu - ekonomiczne ogrzewanie gazowe zapewnia wygodę i niskie koszty eksploatacji
* Zagospodarowanie terenu - ogrodzenie zapewnia prywatność, podjazd oraz taras zostały wyłożone kostką brukową, co nadaje posesji estetyczny wygląd
* Dachówka cementowa - trwałe i odporne na warunki atmosferyczne pokrycie dachowe

Lokalizacja - spokój i wygoda w jednym
Przedmoście to miejscowość, która oferuje idealną równowagę między spokojnym życiem na łonie natury a bliskością miasta. Szybki dojazd do Głogowa oraz innych miast sprawia, że to doskonała lokalizacja dla rodzin i osób ceniących wygodę.

Głogów - 7,3 km
Polkowice - 20 km
Lubin - 30 km

W pobliżu znajdują się tereny rekreacyjne, które sprzyjają aktywnemu trybowi życia - ścieżki rowerowe, parki oraz tereny zielone.

Bezpieczna inwestycja - kup bezpośrednio od dewelopera
Zakup odbywa się na podstawie umowy deweloperskiej, co zapewnia pełne bezpieczeństwo transakcji i gwarancję realizacji inwestycji.

FREE HOME biuro nieruchomości Głogów - Skontaktuj się z nami i umów się na prezentację tej wyjątkowej oferty!
Lokalizacja
Przedmoście
dolnośląskie
Informacje
Powierzchnia: 122 m2
4 pokoje
1 piętro w budynku
Rok budowy: 2025
Numer oferty: FH537484
Kontakt
FREE HOME nieruchomości
Grzegorz Łukasik
+48 537 264 666

Podobne oferty

 Przedmoście   Długa

Piękny Dom Wolnostojący w ogromną działką

Przedmoście, Długa

Zapraszamy do zapoznania się z ofertą sprzedaży wyjątkowego domu w Przedmościu, położonego na przestronnej działce o powierzchni 47 arów. Ta...

250 m2
6 pokoi
880 000 zł
3 520 zł/m2
 Przedmoście   Długa

Piękny Dom Wolnostojący w ogromną działką

Przedmoście, Długa

Zapraszamy do zapoznania się z ofertą sprzedaży wyjątkowego domu w Przedmościu, położonego na przestronnej działce o powierzchni 47 arów. Ta...

250 m2
6 pokoi
880 000 zł
3 520 zł/m2
 Przedmoście   Dolna

Dom 122 m² z garażem pod klucz. Oszczędź czas i

Przedmoście, Dolna

DOM PREMIUM "POD KLUCZ"! WCHODZISZ I MIESZKASZ - BEZ STRESU I EKIP REMONTOWYCHPrezentujemy Państwu nowoczesny dom w zabudowie szeregowej o...

122 m2
4 pokoje
799 000 zł
6 549 zł/m2