Kraków? OK - dla Ciebie i rodziny stać Cię

śledziejowice

Dom
86 m2
4 pokoje

699 000 zł

Treść ogłoszenia

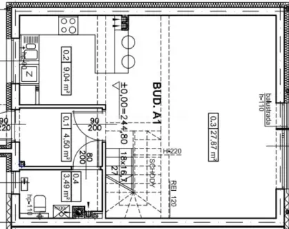
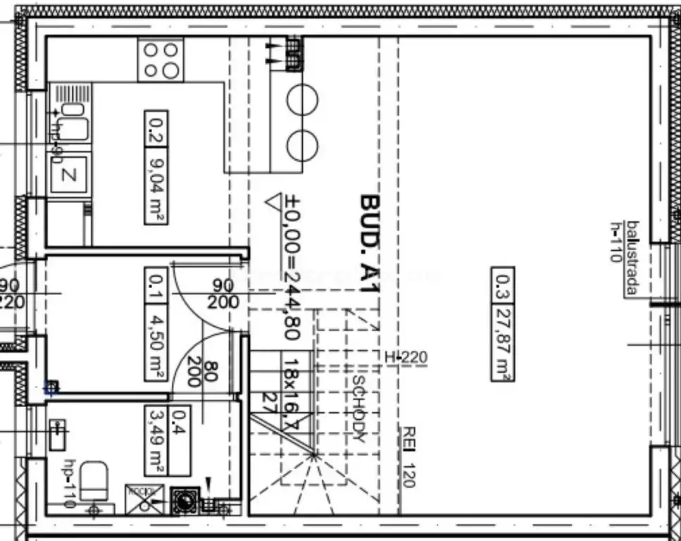
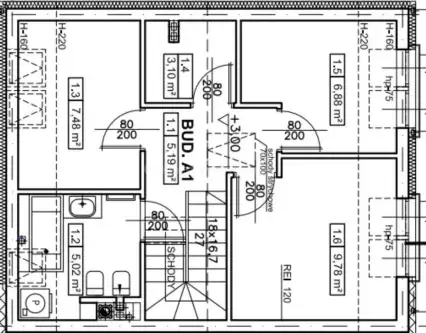
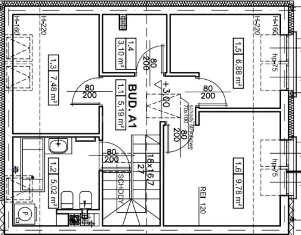
Świetny dom w kameralnej inwestycji w Śledziejowicach.Na sprzedaż segment o powierzchni 86 m². Przemyślany rozkład powierzchni, doskonałe materiały, świetne wykonanie. Płyta fundamentowa, ogrzewanie podłogowe w całym domu. Nieruchomość powstaje w przyjaznej lokalizacji, z dobrym i szybkim dojazdem do Krakowa i Wieliczki.Parter to duży salon z jadalnią, otwarta kuchnia z oknem, łazienka i wiatrołap.Na piętrze znajdują się trzy sypialnie, łazienka, garderoba oraz komunikacja. Na poddaszu jest jeszcze niewielki strych.Tradycyjna technologia - pustak ceramiczny, dachówka ceramiczna, solidne docieplenie, wysokiej klasy stolarka. Już w tej cenie 2 miejsca parkingowe, miejsce na mały ogródek i taras a wszystko to w cenie 40-metrowego mieszkania w nowych inwestycjach w Krakowie, które dzieli zaledwie kwadrans jazdy.Zapraszam na spotkanie i prezentację. Realizacja już w 1 kwartale 2026. Wkrótce nowe zdjęcia i wizualizacje. Zobacz jak możesz mieszkać, wystarczy chcieć. Zadzwoń, pomogę Ci zmienić ciasne mieszkanie na wygodny dom. Polecam


Czy wiesz, że możemy przygotować dla Ciebie prezentację on-line nieruchomości? Skontaktuj się z naszym Agentem i zapytaj o szczegóły.

Pomimo, iż Doradcy Metrohouse przykładają szczególną staranność do rzetelnego prezentowania informacji o nieruchomości, nie zawsze jest możliwa weryfikacja wszystkich danych przekazanych od osób trzecich. Niniejsza prezentacja oferty nie jest ofertą w rozumieniu Kodeksu Cywilnego i ma charakter wyłącznie informacyjny.
Lokalizacja
śledziejowice
małopolskie
Informacje
Powierzchnia: 86 m2
4 pokoje
Rok budowy: 2024
Numer oferty: SDJUVE606
Kuchnia
z oknem
Kontakt
METROHOUSE
Andrzej Turski
+48699585836