Ogłoszenie którego szukasz jest już nieaktualne. Zapraszamy do zapoznania się z podobnymi ofertami.

 Józefosław

Środkowy segment w Józefosławiu

Józefosław

Mamy do zaoferowania Państwu na sprzedaż dom w zabudowie szeregowej.Środkowy segment o powierzchni użytkowej 226 m-kw zlokalizowany w podwarszawskim Piasecznie...

226 m2
4 pokoje
1 100 000 zł
4 867 zł/m2
 Józefosław

UMOWA NA WYŁĄCZNOŚĆ

Józefosław

UMOWA NA WYŁĄCZNOŚĆ !!! Versus Property Group s.c. oferuje do sprzedaży wyjątkowy dom o powierzchni 200 m2, całkowitej 259,96 m2...

260 m2
5 pokoi
2 150 000 zł
8 269 zł/m2
 Józefosław   Sasanki

Wyjątkowy dom w Józefosławiu

Józefosław, Sasanki

Mamy do zaoferowania elegancki dom w zabudowie bliźniaczej w Józefosławiu. Dom z 2014 roku o powierzchni 250 m2 z przylegającym...

250 m2
7 pokoi
2 890 000 zł
11 560 zł/m2
Józefosław
Józefosław   2
Józefosław   3
Józefosław   4
Józefosław   5

UMOWA NA WYŁĄCZNOŚĆ

Józefosław

Dom
286 m2
5 pokoi

2 650 000 zł

Treść ogłoszenia

UMOWA NA WYŁĄCZNOŚĆ !
KUPUJĄCY NIE PŁACI PROWIZJI !

POMPA CIEPŁA, REKUPERACJA, FOTOWOLTAKIKA, MAGAZYN ENERGI!

Termin rozpoczęcia budowy III kwartał 2025 r.
Termin zakończenia budowy III kwartał 2026 r.

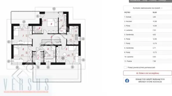
PROJEKT WILLA MIRANDA 4 G2

Versus Nieruchomości oferuje do sprzedaży wyjątkowy dom o powierzchni 222 m², całkowitej 286 m² usytuowany na działce o powierzchni 774 m², w miejscowości Józefosław przy ulicy Spacerowej (okolica Działkowej). Inwestycji w trakcie załatwiania dokumentów potrzebnych do rozpoczęcia budowy. Możliwość obejrzenia takiego projektu budowanego przez inwestora.

Materiały:
Ściany: cegła Phoroterm 25 cm, styropian 20 cm, stropy monolityczne, instalacje CO, woda, kanalizacja, elektryka, alarmowa, internetowa w każdym pokoju.

Dach: dachówka płaska grafit

Okna: 3 szybowe grafit, w salonie i jadalni HS

Ogrzewanie: pompa ciepła, w całym domu ogrzewanie podłogowe, rekuperacja, fotowoltaika ok 8KW, magazyn energii 8KW

Elewacja: tynk silikatowy biały z wstawkami lameli pionowych emitancja drewna

Ogrodzenie pełne metalowe – panel poziomy grafit malowany proszkowo, brama przesuwna z automatyką, brama garażowa z automatyką, kostka podjazdy taras.

Parter 122,60m²: wiatrołap 5,05m², toaleta 1,87m², hol 3,14m², kuchnia12,31m², salon+jadalnia 51,39m², kotłownia 7,68m², garaż 41,16m²

Piętro 99,80m²: schody 3,95m², korytarz 12,88m², pokoje 14,89m² 13,70m² 12,73m² 12,86m², łazienka 7,63m², pom. Gospodarcze 4,18m², garderoba 4,62m² 2,71m², łazienka 5,93m². pralnia 7,90m²

Komfortowa Willa Miranda 4G2 prezentuje się wyjątkowo atrakcyjnie, bryłę urozmaicają tarasy oraz nowoczesna forma zadaszenia w strefie wejściowej. Drewniana okładzina dodaje klimatycznego uroku. Charakter podkreślają liczne przeszklenia, wspaniale doświetlające wnętrza naturalnym światłem. Otwarta przestrzeń dzienna sprzyja rodzinnemu spędzaniu wolnego czasu, dostępny z różnych części parteru taras oferuje dodatkowe miejsce do wypoczynku. Został częściowo przesłonięty, dzięki czemu idealnie nadaje się na letni kącik kawowy. Komfortowy relaks przed kinem domowym w salonie uprzyjemni klimatyczny kominek, a w jadalni z panoramicznym widokiem na ogród możemy ugościć większe grono przyjaciół. Funkcjonalna kuchnia posiada barek śniadaniowy, wysoką zabudowę oraz odpowiednią ilość powierzchni do pracy i przechowywania. Na parterze nie mogło zabraknąć toalety, zlokalizowano ją w pobliżu wiatrołapu, przez który domownicy mogą szybko przejść do garażu i kotłowni. Jednobiegowe schody prowadzą na piętro do komfortowej strefy nocnej, a przesuwne przeszklenie w holu efektownie otwiera wnętrze na taras. Rodzice mają do swojej dyspozycji apartament z łazienką i garderobą oraz dostęp do mniejszego tarasu. Dwa pokoje dla dzieci zapewniają doskonale warunki do nauki, zabawy i wypoczynku. Czwarty pokój na piętrze został zaaranżowany jako gabinet. Wspólna łazienka posiada bogaty program funkcji, który obejmuje zarówno wannę, prysznic, jak i zestaw nablatowych umywalek. Zaprojektowana obok pralnia posiada miejsce do suszenia i szafy do przechowywania.





Zapraszamy do naszego biura w Piasecznie, ul. Pomorska 22. Nasi pracownicy są do Państwa dyspozycji od 9:00 do 20:00 (pon-pt), w sobotę od 10:00 do 17:00.

Kontakt telefoniczny w sprawie ofert codziennie od godziny 8:00 do 22:00 tel. 664 476 532

W celu zapoznania się z naszą pełną ofertą nieruchomości zapraszamy na naszą stronę www.versusgroup.pl

Niniejsze ogłoszenie nie stanowi oferty w rozumieniu przepisów Kodeksu Cywilnego oraz innych właściwych przepisów prawnych, a dane w niej zawarte mają jedynie charakter informacyjny.

Ogłoszenie wysłane z programu dla biur nieruchomości ASARI CRM (asaricrm.com)



Lokalizacja
Józefosław
mazowieckie
Informacje
Powierzchnia: 286 m2
5 pokoje
1 piętro w budynku
Rok budowy: 2025
Numer oferty: 4194/1880/ODS
Kuchnia
z oknem
Ogrzewanie
pompa ciepła
Media
kanalizacja
Wyposażenie
balkon/taras
Instalacje
elektryczna
wodna