Apartament w centrum - Rezydencja Ogród Saski

Lublin

Mieszkanie
30 m2
2 pokoje

2 800 zł

Treść ogłoszenia

Rezydencja Ogród Saski - kameralne i nowoczesne osiedle usytuowane w historycznej dzielnicy miasta w samym środku miasta - na Wieniawie.

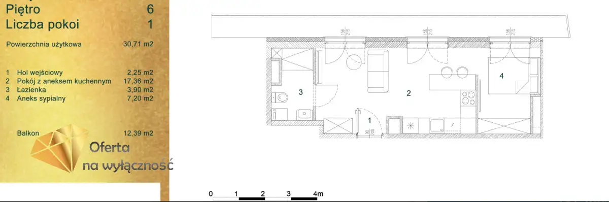
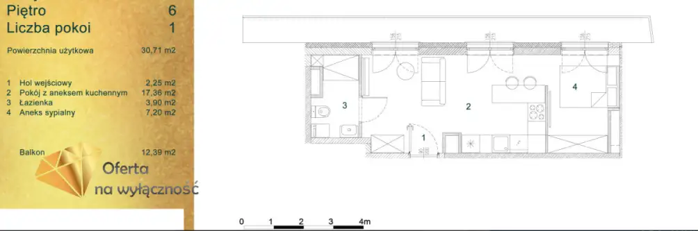
Mieszkanie o pow. 30,71 m² położone na szóstym piętrze w nowej inwestycji przy ul. Wieniawskiej 7 w Lublinie.
W skład mieszkania wchodzi:
Salon z aneksem kuchennym (pow. 17,36m²)
Łazienka z prysznicem (pow. 3,90m²)
Przedpokój (pow. 2,25m²)
Sypialnia (pow. 7,20m²)
Balkon (pow. 12,39m²)

Dodatkowe informacje:
Wystawa okien północna, mieszkanie jasne i przytulne dzięki dużym panoramicznym oknom.
Duży balkon od strony dziedzińca.
Właściciel oferuje możliwość umeblowania mieszkania według preferencji najemcy.
Kuchnia w pełni wyposażona: zmywarka, lodówka, płyta indukcyjna, okap, piekarnik.

Opłaty:
Miesięczny koszt najmu 2800zł.
Czynsz administracyjny dla Zarządcy ok. 450 zł.
Dodatkowe opłaty: prąd i ogrzewanie wg zużycia
Zabezpieczająca kaucja zwrotna, w wysokości miesięcznego kosztu najmu.
Czas trwania najmu- 12 miesięcy.

Lokalizacja:
Śródmieście - dzielnica Lublina położona w ścisłym centrum miasta.
W najbliższym sąsiedztwie znajdują się uczelnie, galerie handlowe, Plac Litewski, deptak, Brama Krakowska, Stare Miasto, Ogród Saski, wiele ośrodków kultury, klub fitness, restauracje serwujące dania z różnych stron świata i kawiarnie.

Komunikacja miejska w odległości ok. 100m
Krakowskie Przedmieście 02 linie: 3, 7, 26, 40, 55, 302
Krakowskie Przedmieście 04 linie: 2, 18, 31, 32, 57, 150
Ogród Saski 03 linie: 2,3,4,7,8,13,15,18,20,26,31,44,55,57,74,150,151,155,158,N2,N3

Cena: 2800 PLN

Ofertę przygotował i prezentuje:
Adam Bogusz
Licencjonowany Pośrednik Nieruchomości nr 30065
Franczewska Nieruchomości

Zapraszam do kontaktu oraz na prezentację nieruchomości!

Treść niniejszego ogłoszenia nie stanowi oferty handlowej w rozumieniu Kodeksu Cywilnego, ale jest zaproszeniem do współpracy. Dokładamy wszelkich starań, aby każda z ofert była rzetelnie sprawdzona oraz aktualna.
W ofercie nie są przedstawione koszty obsługi transakcji, która wykonywana jest w profesjonalny sposób i zapewnia Państwu pełne bezpieczeństwo. Więcej unikalnych ofert w podobnych kryteriach znajdą Państwo na naszej stronie.
Lokalizacja
Lublin
dzielnica śródmieście
lubelskie
Informacje
Powierzchnia: 30 m2
2 pokoje
6 pięter w budynku
Rok budowy: 2024
Numer oferty: 232416
Zalety
domofon
Media
kanalizacja
Wyposażenie
balkon/taras
Kontakt
FRANCZEWSKA NIERUCHOMOŚCI ADRIANNA FRANCZEWSKA-KRUPA SPÓŁKA KOMANDYTOWA
Adam Bogusz
511 888 881

Podobne oferty

 Lublin   Magdaleny Brzeskiej

Mieszkanie na wynajem

Lublin, Magdaleny Brzeskiej

Do wynajęcia 2-pokojowe mieszkanie na os. Prusa - niedawno wyremontowane! Strefa wejściowa z lustrzaną szafą została otwarta na pokój dzienny,...

32 m2
2 pokoje
1 600 zł
50 zł/m2
 Lublin   Legionowa

Mieszkanie na wynajem

Lublin, Legionowa

Atrakcyjne mieszkanie po remoncie w doskonałej lokalizacji! Drugie piętro zadbanego i ogrodzonego budynku z lat 50-tych na Wieniawie -możliwość parkowania...

36 m2
2 pokoje
1 700 zł
47 zł/m2
 Lublin

Najem krótko i długoterminowy w Apartamentowcu

Lublin

Ekskluzywny apartament z możliwością najmu krótkoterminowego lub długoterminowego. (do dyspozycji mniejsze lub większe metraże)Opis nieruchomości: Oferuję Państwu na wynajem luksusowy...

68 m2
3 pokoje
3 900 zł
57 zł/m2