Mikołajki promenada z dojściem do jeziora marina

Mikołajki , Michała Kajki

Działka

2 590 000 zł

Treść ogłoszenia

Mazurski dom w znakomitej lokalizacji - w Mikołajkach, w pierwszej linii zabudowy jeziora Mikołajskiego, usytuowany w spokojnej części ulicy Kajki, tuż przy EkoMarinie MKŻ. Budynek skierowany w stronę wody, z werandą, tarasem, składa się z dwóch dwupoziomowych odrębnych nieruchomości zabudowanych oraz dodatkowego mieszkania przeznaczonego na wynajem dla turystów z wejściem od ogrodu. Idealna okazja inwestycyjna pod pensjonat, także dla osób, które chciałyby na stałe zamieszkać w Mikołajkach.

Budynki nie są wpisane do ewidencji zabytków - istnieje możliwość rozbudowy oraz przebudowy.
Oferta bez prowizji od Kupującego, oględziny możliwe jedynie po uprzednim kontakcie telefonicznym.

Obejrzyj FILM:
(jeśli nie widzisz filmu skontaktuj się z pośrednikiem)

LOKALIZACJA
Nieruchomość zlokalizowana w Mikołajkach - mazurskim centrum turystyki i rekreacji. Miasto cieszy się zainteresowaniem turystów zarówno w sezonie letnim, jak i zimowym. Miejsce jest bardzo atrakcyjne turystycznie ze względu na położenie Szlaku Wielkich Jezior Mazurskich.
Dom znajduje się przy ul. Kajki 92, przy promenadzie nad brzegiem jeziora. Od ścisłego centrum Mikołajek dzieli go niecały kilometr - odległość gwarantująca ciszę i prywatność, wciąż jednak pozawalająca na swobodne korzystanie z uroków miasta . W niedalekiej odległości dostęp do sklepów, lokali gastronomicznych i usług turystycznych.
Apartament znajduje się przy promenadzie i porcie przy jeziorze Mikołajskim.
Odległość do najbliższych miast: Mrągowo 23 km, Giżycko 35 km.

DZIAŁKA
Teren o pow. 789 m² (formalnie składa się z 5 działek ewidencyjnych), ogrodzony. Działka zagospodarowana wieloletnimi drzewami, krzewami, ogrodem, z miejscem do rekreacji. Dobrze nasłoneczniona.
Dojazd do nieruchomości z dwóch stron (od strony Kajki oraz na teren posesji od strony promenady). Przed budynkiem, wzdłuż jezdni dostępne miejsca postojowe.
Działka uzbrojona: prąd, woda, gaz, kanalizacja.

BUDYNEK
Budynek wybudowany w technice murowanej, cegła oraz suporex. Wyposażony w dwa niezależne kotły węglowe - ciepło prowadzone do kaloryferów, dodatkowo kominek. Ciepła woda z bojlerów elektrycznych. Okna PCV. Dach pokryty dachówką. Budynek wymaga własnej aranżacji.

Rozkład (przybliżone metraże):
Parter:
- hall 6 m², kuchnia 9 m², salon 21 m² z wyjściem na taras 17 m²
- hall 6 m², salon 17 m², pokój 14 m², kuchnia 11 m², łazienka 7,5 m², korytarz 2 m², pokój 13 m² z wyjściem na werandę 10 m², z której można zejść bezpośrednio do grodu
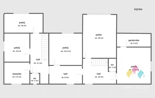
Piętro:
- hall 11 m², pokój 10 m², pokój 10 m², łazienka 7,5 m², wc, 1 m²
- hall 10 m², wc 1m², pokój 17,5 m² z garderobą 6 m², pokój 20 m², pokój 14,5 m², hall 8m 2 z możliwością przejścia do drugiej części domu
Poddasze:
- poddasze użytkowe 43 m²
- poddasze użytkowe 12 m²
Piwnica:
- kuchnia letnia 16 m², pom. gospodarcze 6 m², kotłownia 16 m², w części od jeziora, z osobnym wejściem pokój 13,5 m² z wyjściem na taras, łazienka 3,5 m²
- pomieszczenie pod werandą 6 m², piwnica pod pokojem 5,5 m², piwnica pod kuchnią 5,5 m²

ZAŁOŻENIA MIEJSCOWEGO PLANU ZAGOSPODAROWANIA PRZESTRZENNEGO:
Tereny zabudowy mieszkaniowo-usługowej
Przeznaczenie podstawowe: zabudowa mieszkaniowa lub usługowa nieuciążliwa realizowana łącznie lub zamiennie.
Przeznaczenie uzupełniające: zabudowa gospodarcza, infrastruktura techniczna, zieleń urządzona.
Zgodnie z oznaczeniami na rysunku planu w granicach terenów elementarnych zlokalizowany jest obszar i obiekty ujęte w wojewódzkim rejestrze zabytków nieruchomych, obiekty ujęte w gminnej ewidencji zabytków oraz stanowisko archeologiczne ujęte w systemie AZP, w stosunku do których obowiązują zasady zawarte w § 7 ust. 4 niniejszych ustaleń.
Zgodnie z oznaczeniami na rysunku planu część terenu położona jest w strefie oznaczonej jako front wodny (waterfront), w której obowiązują ustalenia zawarte w §7 ust.1, pkt 15.
1) adaptuje się istniejącą zabudowę,
2) minimalna powierzchnia nowo wydzielonych działek budowlanych – 500m²;
3) linie zabudowy – zgodnie z oznaczeniem na rysunku planu;
4) dopuszcza się sytuowanie budynku w odległości 1,5 m od granicy z sąsiednią działką
budowlaną, bez możliwości lokalizacji budynku bezpośrednio przy tej granicy;
5) szerokość elewacji budynku: dla przeznaczenia podstawowego – od 6 m do 23 m, dla
przeznaczenia uzupełniającego – do 14 m;
6) w granicach oznaczonej na rysunku planu strefy zieleni komponowanej obowiązuje zakaz lokalizacji budynków;
7) wysokość zabudowy:
a) od strony ulicy Kajki: dla przeznaczenia podstawowego – maksymalnie 2 kondygnacje, w tym ostatnia jako poddasze użytkowe, jednak nie więcej niż 9,0 m,
b) od strony jeziora Mikołajskiego: dla przeznaczenia podstawowego – maksymalnie 3
kondygnacje, w tym ostatnia jako poddasze użytkowe, jednak nie więcej niż 10,0 m, przy
czym wysokość zabudowy w oznaczonej na rysunku planu strefie frontu wodnego nie może być większa niż 7,0 m,
c) dla pozostałych obiektów budowlanych – nie więcej niż 6,0 m;
8) geometria dachów: dachy dwuspadowe lub wielospadowe z główną kalenicą w przybliżeniu prostopadłą lub równoległą do drogi, o symetrycznym kącie nachylenia połaci głównych zawartym w przedziale od 35 do 45 stopni;
9) w zakresie kolorystyki obiektów budowlanych, pokrycia dachów oraz detali architektonicznych należy stosować rozwiązania nawiązujące do lokalnych cech zabudowy mazurskiej zawarte w §7 ust.1, pkt 9, 10 i 11, natomiast w zakresie materiałów i kolorystyki elewacji budynków, ogrodzeń i reklam mają zastosowanie ustalenia zawarte w §7 ust.1, pkt 12, 13 i 14;
10) maksymalny udział powierzchni zabudowy do powierzchni działki: 0,50;
11) intensywność zabudowy: od 0,20 do 1,50;
12) obowiązuje zachowanie nie mniej niż 10% powierzchni działki budowlanej jako powierzchni biologicznie czynnej;
13) miejsca do parkowania należy lokalizować w granicach własnej działki lub na terenie, do której inwestor posiada tytuł prawny w liczbie nie mniejszej niż 1,0 miejsca na 1 lokal mieszkalny plus 1 miejsce na każde rozpoczęte 100 m² powierzchni użytkowej usług;
14) ustala się dopuszczalny poziom hałasu w środowisku jak dla terenów mieszkaniowo-
usługowych zgodnie z przepisami odrębnymi.

STAN PRAWNY/DOSTĘPNOŚĆ
Własność z KW, bez obciążeń, jeden właściciel.
Niskie koszty utrzymania budynków.
Termin przekazania w posiadanie do uzgodnienia.

POŚREDNIK:
Łukasz Wróbel
tel. 664031061
mail: [Email protected]
Licencja pośrednika nr 31498.

Przedstawiona oferta cenowa ma charakter informacyjny, nie stanowi oferty handlowej w rozumieniu art.66 § 1 Kodeksu Cywilnego.



Właścicielem ogłoszenia wraz z jej elementami jest NewHouse Łukasz Wróbel oraz podmioty współpracujące.
Wszelkie prawa są zastrzeżone, kopiowanie, rozpowszechnianie oraz korzystanie z niniejszych składowych materiałów ogłoszenia w jakikolwiek inny sposób wykraczający poza dozwolony użytek określony przepisami ustawy z 4 lutego 1994 r. o prawie autorskim i prawach pokrewnych (Dz. U. 1994, nr 24 poz. 83 z późn. zm.) bez zgody NewHouse Łukasz Wróbel lub podmiotów współpracujących jest zabronione i może stanowić podstawę odpowiedzialności cywilnej oraz karnej.
Niniejsze materiały stanowią tajemnicę firmy NewHouse Łukasz Wróbel lub podmiotów współpracujących w rozumieniu ustawy z dnia 16 kwietnia 1993 r. o zwalczaniu nieuczciwej konkurencji (Dz. U. z 2003 r., Nr 153, poz. 1503 z późn. zm.).
Niniejsze ogłoszenie nie stanowi oferty w rozumieniu Kodeksu Cywilnego, lecz ma charakter informacyjny.

Ogłoszenie wysłane z programu dla biur nieruchomości ASARI CRM (asaricrm.com)



Lokalizacja
Mikołajki
warmińsko-mazurskie
Informacje
Numer oferty: 1861/6682/OGS
Okolica
szkoła podstawowa
restauracja
jezioro
las
Media
prąd
gaz
Kontakt
NewHouse Łukasz Wróbel
Łukasz Wróbel
664031061

Podobne oferty

 Mikołajki

Mikołajki działka z możliwością zabudowy

Mikołajki

Atrakcyjna działka położona w spokojnej części Mikołajek - od strony wyjazdu na Giżycko, Ryn, niespełna 2 km od centrum. Z...

m2
349 000 zł
 Mikołajki   Michała Kajki

Mikołajki promenada z dojściem do jeziora marina

Mikołajki, Michała Kajki

Mazurski dom w znakomitej lokalizacji - w Mikołajkach, w pierwszej linii zabudowy jeziora Mikołajskiego, usytuowany w spokojnej części ulicy Kajki,...

m2
2 985 000 zł
 Mikołajki   Papieża Jana Pawła II

Działka inwestycyjna w samym sercu Mikołajek

Mikołajki, Papieża Jana Pawła II

Na sprzedaż atrakcyjna działka inwestycyjna o powierzchni 117 m², położona w ścisłym centrum Mikołajek – jednej z najbardziej rozpoznawalnych i...

m2
499 000 zł